NEU - Großzügige 5-Zimmer-Maisonette mit Garten, Terrasse & Tiefgarage in 1220 Wien

Wohnung zum Kauf in 1220 Wien - Kaufpreis: 679.900 € / Objektnummer: 15713
Ausstattung: Boden Wohnküche / offene Küche Bad Gäste-WC Garage Parkplatz Abstellraum Fernwärme Loggia Terrasse Garten

Preisinformationen

Kaufpreis:
679.900 €
Betriebskosten netto:
480,33 € / Monat
Vermittlungsprovision:
Ja
Provision:
3% des Kaufpreises zzgl. 20% USt.

Fakten

Objektnummer:
15713
Objekttyp:
Wohnung
Terrasse:
1
Loggia:
1
Wohnfläche:
97 m²
Loggia Fläche:
3,17 m²
Nutzfläche:
107 m²
Gartenfläche:
48,92 m²
Zimmer:
5
Badezimmer:
1
Toilette:
1
Baujahr:
1996
Neubau:
Ja
Verfügbarkeit:
Verfügbar

Beschreibung

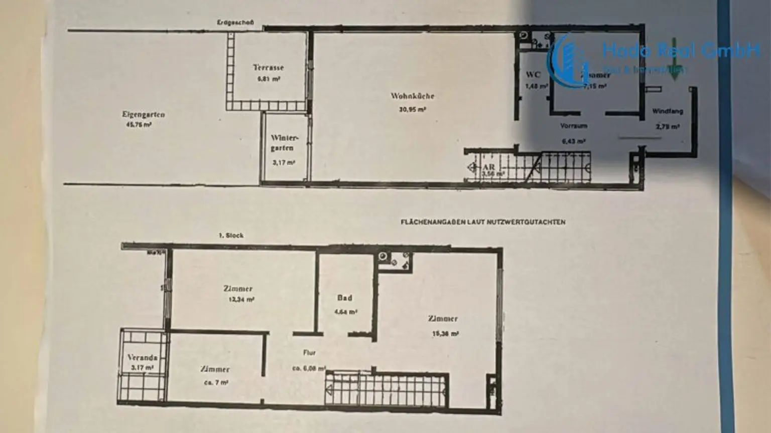
Zum Verkauf gelangt eine attraktive 5-Zimmer-Maisonettewohnung auf zwei Ebenen (Erdgeschoss und Obergeschoss) in ruhiger Wohnlage der Ullreichgasse im 22. Bezirk.
Die Wohnung befindet sich in einer gepflegten Wohnhausanlage aus dem Jahr ca. 1996 und überzeugt durch ihre familienfreundliche Raumaufteilung sowie großzügige Außenflächen.

-------------

WOHNKONZEPT & RAUMAUFTEILUNG

Die Wohnung erstreckt sich über zwei Ebenen und bietet viel Platz für Familien oder alle, die Wohnen und Arbeiten gut kombinieren möchten.

Erdgeschoss

*
Helle Wohnküche mit ca. 30,95 m² und direktem Zugang zu den Außenflächen

*
Zimmer mit ca. 7,15 m²

*
Vorraum ca. 6,43 m²

*
Separates WC

*
Abstellraum innerhalb der Wohnung

*
Wintergarten

*
Terrasse

*
Zugang zum großzügigen Eigengarten

Obergeschoss

*
Drei gut geschnittene Zimmer

*
Flur

*
Badezimmer

*
Veranda

-------------

FLÄCHEN

*
Wohnfläche (Innenfläche inkl. Abstellraum): ca. 96–97 m²

*
Außenflächen gesamt: ca. 58,9 m², bestehend aus:

*
Eigengarten

*
Terrasse

*
Wintergarten

*
Veranda

_(Außenflächen werden gemäß gängiger Praxis separat ausgewiesen und nicht voll zur Wohnfläche gerechnet.)_

-------------

AUSSTATTUNG

*
Parkett- und Fliesenböden

*
Küche vorhanden (nachträglich eingebaut)

*
Badezimmer mit allem drum und dran

*
Beheizung über Heizkörper

*
Kunststofffenster (Originalausstattung)

*
Einlagerungsraum vorhanden

-------------

STELLPLATZ

Ein Tiefgaragenstellplatz ist der Wohnung zugeordnet und im Eigentum.
Der Stellplatz ist separat im Grundbuch ausgewiesen.

-------------

LAGE

Die Wohnung liegt in einer ruhigen Wohngegend der Donaustadt und bietet gleichzeitig eine sehr gute Infrastruktur.
Einkaufsmöglichkeiten, Schulen, Kindergärten sowie öffentliche Verkehrsanbindungen sind bequem erreichbar. Grünflächen und Freizeitangebote befinden sich ebenfalls in der näheren Umgebung.

-------------

ECKDATEN AUF EINEN BLICK

*
Baujahr Wohnhaus: ca. 1996

*
Wohnungseigentum

*
5 Zimmer

*
Maisonette (EG + OG)

*
Eigengarten, Terrasse, Wintergarten & Veranda

*
Tiefgaragenstellplatz im Eigentum

*
Beziehbar: nach Vereinbarung

-------------

 

Kontakt:
Herr Aldin Dacic
Konz. Immobilienmakler & BM (BGT)
Geschäftsführer der Hada Real GmbH
Pappenheimgasse 47 Top 1–2, 1200 Wien
🌐 www.hada-real.eu
📞 +43 664 10 20 156 [tel:+436641020156]

-------------

_BITTE NEHMEN SIE ZUR KENNTNIS, DASS WIR NUR ANFRAGEN MIT VOR- UND NACHNAME UND TELEFONNUMMER ENTGEGENNEHMEN KÖNNEN. DIE ANGABEN ERFOLGEN AUFGRUND VON INFORMATIONEN UND UNTERLAGEN, DIE UNS VOM EIGENTÜMER/MIETER UND/ODER VON DRITTEN ZUR VERFÜGUNG GESTELLT WURDEN UND SIND OHNE GEWÄHR. WIR ÜBERNEHMEN KEINERLEI GEWÄHR ODER HAFTUNG FÜR DIE TATSÄCHLICHE ENERGIEEFFIZIENZ DER ANGEBOTENEN IMMOBILIE. WIR MÖCHTEN DARAUF HINWEISEN, DASS WIR ALS DOPPELMAKLER TÄTIG SIND UND EIN WIRTSCHAFTLICHES UND FAMILIÄRES NAHVERHÄLTNIS ZUM ABGEBER BESTEHT. MANCHE BILDER WURDEN AI MODIFIZIERT. MACHEN SIE SICH AM BESTEN SELBST EIN BILD VON DER ANGEBOTENEN IMMOBILIE._

Wir weisen darauf hin, dass zwischen dem Vermittler und dem zu vermittelnden Dritten ein familiäres oder wirtschaftliches Naheverhältnis besteht.

Der Vermittler ist als Doppelmakler tätig.

Infrastruktur / Entfernungen

Gesundheit
Arzt <500m
Apotheke <500m
Klinik <3.000m
Krankenhaus <3.000m

Kinder & Schulen
Schule <500m
Kindergarten <500m
Universität <500m
Höhere Schule <1.000m

Nahversorgung
Supermarkt <500m
Bäckerei <1.000m
Einkaufszentrum <1.500m

Sonstige
Geldautomat <1.000m
Bank <1.000m
Post <1.000m
Polizei <1.500m

Verkehr
Bus <500m
U-Bahn <1.000m
Straßenbahn <500m
Bahnhof <1.000m
Autobahnanschluss <2.500m

Angaben Entfernung Luftlinie / Quelle: OpenStreetMap
Beschreibung weiterlesen

Lage und Verkehrsanbindung

1220 Wien

Energieeffizienz

HWB:
67,92 kWh/(m²*a)
HWB Klasse:
C
fGEE:
2,32
fGEE Klasse:
D
Energieausweisart:
Energiebedarfs-ausweis
Gültig bis:
07.11.2022

Grundriss

Lageplan

1220 Wien | Wien 22., Donaustadt

Lade...
Herr Aldin Dacic

Herr Aldin Dacic
Konz. Immobilienmakler & BM (BGT)

Hada Real

Lade...

Fotomix

Bild 1 Bild 2 Bild 3 Bild 4 Bild 5 Bild 6 Bild 7 Bild 8 Bild 9 Bild 10 Bild 11 Bild 12 Bild 13 Bild 14 Bild 15 Bild 16 Bild 17 Bild 18 Bild 19 Bild 20 Bild 21 Bild 22 Bild 23