NEU - Großzügiges Geschäftslokal in Zentrumslage - Neusiedl am See

Einzelhandel zur Miete in 7100 Neusiedl am See / Objektnummer: 1679
Ausstattung: Boden Zentralheizung

Preisinformationen

Gesamtmiete (exkl. USt.):
2.990,00 € / Monat
Preisinfos:
inkl. BK u. MwSt. - zzgl. Strom, Gas u. Müll
Kaution:
3 Bruttomonatsmieten
Vermittlungsprovision:
Ja
Provision:
3 Bruttomonatsmieten zzgl. 20% USt.

Fakten

Objektnummer:
1679
Objekttyp:
Einzelhandel
Nutzfläche:
310 m²
Zustand:
Gepflegt
Verfügbarkeit:
Verfügbar
Verfügbar ab:
01.01.2024

Beschreibung

Großzügiges Geschäftslokal in Zentrumslage - Neusiedl am See

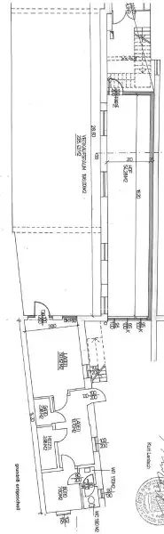
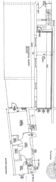
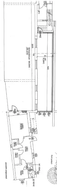
* 310 m2 Gesamtnutzfläche
* 235 m2 Verkaufsraum
* 75 m2 Lager u. Sozialräume

 

Miete: € 2.990 inkl. 20% USt & BK.
zzgl. Strom, Heizung u. Müll

3 Bruttomonatsmieten Kaution
3 Bruttomonatsmieten zzgl. 20% MwSt. Provision

Wenn Sie nun neugierig geworden sind und sich gerne selbst ein Bild dieser Immobilie machen möchten, dann zögern Sie nicht und vereinbaren Sie noch heute einen Besichtigungstermin.

Ich freue mich auf Ihren Anruf und stehe für all Ihre Fragen zur Verfügung.

Herr Christian Rittsteuer, MSc. Bakk. akad. IM

+43 (0)664 / 425 32 99
office@seereal.at

Der Vermittler ist als Doppelmakler tätig.

Infrastruktur / Entfernungen

Gesundheit
Arzt <500m
Apotheke <500m

Kinder & Schulen
Kindergarten <1.500m
Schule <1.000m

Nahversorgung
Supermarkt <500m
Bäckerei <500m
Einkaufszentrum <3.000m

Sonstige
Bank <500m
Geldautomat <500m
Post <500m
Polizei <3.500m

Verkehr
Bus <500m
Autobahnanschluss <3.500m
Bahnhof <500m

Angaben Entfernung Luftlinie / Quelle: OpenStreetMap
Beschreibung weiterlesen

Lage und Verkehrsanbindung

zentrum

Energieeffizienz

HWB:
107 kWh/(m²*a)
HWB Klasse:
C
Energieausweisart:
Energiebedarfs-ausweis

Grundriss

Lageplan

7100 Neusiedl am See | Neusiedl am See

Lade...
Christian Rittsteuer, MSc

Christian Rittsteuer, MSc
konzessionierter Immobilienmakler

Seereal Immobilien KG

Lade...