NEU - Grünes Cumberland – Revitalisierter Altbau nahe Schönbrunn | Nur noch 4 Einheiten verfügbar

Wohnung zum Kauf in 1140 Wien - Kaufpreis: 457.504 € / Objektnummer: 7398/127301
Ausstattung: Barrierefrei Boden Fahrstuhl Bad Fußbodenheizung Terrasse Garten

Preisinformationen

Kaufpreis:
457.504 €
Kaufpreis/m²
5.848,19 €
Betriebskosten netto:
107,95 € / Monat
Vermittlungsprovision:
Ja
Provision:
3% des Kaufpreises zzgl. 20% USt.

Fakten

Objektnummer:
7398/127301
Objekttyp:
Wohnung
Terrasse:
1
Wohnfläche:
48,97 m²
Nutzfläche:
78,23 m²
Gartenfläche:
74,33 m²
Zimmer:
2
Badezimmer:
1
Toilette:
1
Altbau:
Ja
Zustand:
Erstbezug
Verfügbarkeit:
Verfügbar
Verfügbar ab:
sofort

Beschreibung

In begehrter Lage des 14. Wiener Gemeindebezirks präsentiert sich dieses stilvoll revitalisierte Altbauprojekt als gelungene Verbindung aus klassischer Gründerzeitarchitektur und modernem Wohnkomfort.

Das prachtvolle Zinshaus in der Cumberlandstraße wurde umfassend und hochwertig generalsaniert. Historische Elemente der Bauperiode wurden behutsam erhalten und mit moderner Technik sowie eleganter Ausstattung kombiniert. Das Dachgeschoss wurde ausgebaut, die Steigleitungen erneuert, das Stiegenhaus saniert sowie eine Liftanlage errichtet.

Der Großteil der Wohnungen wurde bereits abverkauft – aktuell stehen nur noch vier Einheiten zur Verfügung.

Bis auf die Dachgeschosswohnung sind sämtliche Einheiten vollständig fertiggestellt und bezugsbereit. Die Dachgeschosswohnung wird unmittelbar nach Kaufabschluss hochwertig fertiggestellt und im Erstbezugszustand übergeben.

Eine seltene Gelegenheit in dieser gefragten Lage nahe Schloss Schönbrunn.

Lage – urban, grün und bestens angebunden

Die Cumberlandstraße liegt in Alt-Penzing, einer ruhigen und gewachsenen Wohngegend im Westen Wiens. Die Nähe zum Areal rund um Schloss Schönbrunn bietet außergewöhnlichen Freizeit- und Erholungswert.

Öffentliche Anbindung:

* Bahnhof Wien Penzing
* U4 Hietzing
* Straßenbahnlinie 52
* Buslinie 51A

Ausstattung – moderner Wohnkomfort im Altbau

* Eichenparkett
* Fußbodenheizung
* Raumthermostate
* hochwertig ausgestattete Sanitärräume
* Video-Gegensprechanlage
* Klimaanlage im DG
* moderne Fenster mit Mehrfachverglasung
* Personenaufzug

DIE GEGENSTÄNDLICHE  W O H N U N G :

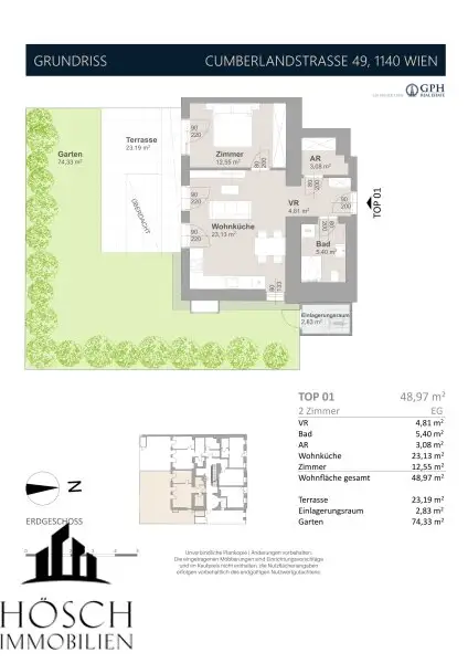
Gartenwohnung | ca. 48,97 m² Wohnnutzfläche

Attraktive 2-Zimmer-Gartenwohnung im Erdgeschoss mit hervorragender Freiflächenqualität.

Eckdaten:

* Wohnfläche ca. 48,97 m²
* Terrasse ca. 23,19 m²
* Garten ca. 74,33 m²
* 2 Zimmer
* Bad mit WC
* Abstellraum
* Einlagerungsraum
* Fertigstellung unmittelbar nach Kauf
 

Kaufpreis: € 457.504,-

Erfolgshonorar: 3% vom Kaufpreis zzgl. 20% USt.

Als Vertragserrichterin und Treuhänderin wird Frau Mag. Alexandra Serek, Fichtegasse 2A, 1010 Wien, bestellt. Das Honorar der Treuhänderin für die Errichtung des Kaufvertrages und die treuhändige Abwicklung und Einverleibung des Eigentumsrechtes beträgt 1,5 % des Gesamtkaufpreises zzgl. 20 % USt.

Für Rückfragen oder zur Vereinbarung eines Besichtigungstermins steht Ihnen
Herr David Hösch gerne unter +43 660 37 91 75 9 zur Verfügung.

Wir weisen darauf hin, dass zwischen dem Vermittler und dem zu vermittelnden Dritten ein familiäres oder wirtschaftliches Naheverhältnis besteht.

Der Vermittler ist als Doppelmakler tätig.

Infrastruktur / Entfernungen

Gesundheit
Arzt <500m
Apotheke <500m
Klinik <500m
Krankenhaus <1.500m

Kinder & Schulen
Schule <500m
Kindergarten <500m
Universität <1.000m
Höhere Schule <2.500m

Nahversorgung
Supermarkt <500m
Bäckerei <500m
Einkaufszentrum <1.500m

Sonstige
Geldautomat <500m
Bank <500m
Post <1.000m
Polizei <1.000m

Verkehr
Bus <500m
U-Bahn <500m
Straßenbahn <500m
Bahnhof <500m
Autobahnanschluss <4.000m

Angaben Entfernung Luftlinie / Quelle: OpenStreetMap
Beschreibung weiterlesen

Lage und Verkehrsanbindung

Schloss Schönbrunn
U4 Hietzing

Schloss Schönbrunn

Energieeffizienz

HWB:
27,4 kWh/(m²*a)
HWB Klasse:
B
fGEE:
0,62
fGEE Klasse:
A+
Energieausweisart:
Energiebedarfs-ausweis

Grundriss

Lageplan

1140 Wien | Wien 14., Penzing

Lade...
David-Gabriel Hösch

David-Gabriel Hösch

Hösch Immobilien GmbH

Lade...

Fotomix

Bild 1 Bild 2 Bild 3 Bild 4 Bild 5 Bild 6 Bild 7 Bild 8 Bild 9 Bild 10 Bild 11 Bild 12 Bild 13 Bild 14 Bild 15 Bild 16 Bild 17