NEU - Grundsolides Investment und Spekulationsobjekt – unbefristet als Praxis vermietete Neubauwohnung

Wohnung zum Kauf in 1080 Wien - Kaufpreis: 254.000 € / Objektnummer: 247/09893
Ausstattung: Boden Fahrstuhl
Zimmer II
Zimmer I
Wohnraum
Aussicht
Zimmer
Küche
Hausansicht V
Vorraum
Bad
Hausansicht IV
Hausansicht I
Kellerabteil
Waschküche
Plan
Lageplan

Preisinformationen

Kaufpreis:
254.000 €
Kaufpreis/m²
5.430,83 €
Preisinfos:
GrESt 3,5% + Grundbucheintragung 1,1% des Gesamtkaufpreises /Vertragserrichtung 1,5% + Barauslagen, Beglaubigungs-, ggf. Treuhandkosten bei Finanzierung +USt. (Dr. Elke Hule-Medek, RA) / Provision 3% + USt. des Kaufprei…
Vermittlungsprovision:
Ja
Provision:
3%

Fakten

Objektnummer:
247/09893
Objekttyp:
Wohnung
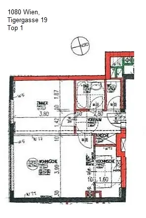
Wohnfläche:
46,77 m²
Zimmer:
2
Badezimmer:
1
Toilette:
1
Baujahr:
1996/Neubau
Neubau:
Ja
Verfügbarkeit:
Verfügbar

Beschreibung

Diese unbefristet vermietete 2-Zimmer-Wohnung in der Tigergasse ist ein Zukunftsinvestment in den lebenswerten 8. Bezirk. Die ca. 47 m² große Neubauwohnung liegt im 1. Obergeschoss eines gepflegten Hauses in der ruhig gelegenen Tigergasse. Die Highlights: - Parkettboden vorhanden - hervorragender Grundriss - Wärmeversorgung und Warmwasseraufbereitung erfolgt per Gas-Zentralheizung ­- Waschküche vorhanden - Aufzug vorhanden - praktischer Abstellraum am Gang - unbefristet vermietet - Umsatzsteuerbefreit vermietet (Physiotherapie-Praxis) - derzeit monatliche Mieteinnahmen netto/brutto € 630,96 (Betriebskosten nicht inkludiert) Die Lage: Die Tigergasse im 8. Bezirk (Josefstadt) überzeugt durch ihre zentrale Lage und ihr charmantes Grätzl-Flair. In direkter Umgebung laden der Tigerpark und mehrere kleine Parks zum Entspannen ein, während gemütliche Cafés, trendige Lokale und vielfältige Restaurants für kulinarische Abwechslung sorgen. Kulturelle Highlights wie das Theater in der Josefstadt und die Piaristenkirche sind fußläufig erreichbar. Dank der Nähe zur U2 und mehreren Straßenbahnlinien ist die Anbindung ausgezeichnet – urban, grün und voller Leben. Vereinbaren Sie noch heute einen Besichtigungstermin und lassen Sie sich von dieser besonderen Immobilie verzaubern. Diesbezüglich freuen wir uns über Ihre geschätzte Anfrage per Mail. Tipp: Es stehen mehrere Wohnungen des Hauses zum Verkauf. Vermietet oder leerstehend: es ist für jeden Zweck etwas dabei. Fragen Sie uns nach weiteren Objekten bzw. Paketangeboten! Wir möchten darauf hinweisen, dass unsere Antwort möglicherweise in Ihrem Spamordner landen könnte. Bitte kontrollieren Sie diesen, wenn Sie keine Rückmeldung auf Ihre Anfrage erhalten haben. Wir freuen uns auf Ihre Anfrage und einen gemeinsamen Besichtigungstermin!
Beschreibung weiterlesen

Lage und Verkehrsanbindung

Hamerlingpark, Josefstädter Straße

Energieeffizienz

HWB:
48,3 kWh/(m²*a)
HWB Klasse:
B
fGEE:
1,06
fGEE Klasse:
C

Grundrisse

Bernhard Stachl

Bernhard Stachl

IMV Immobilienmakler

Lade...

Fotomix

Zimmer II Zimmer I Wohnraum Aussicht Zimmer Küche Hausansicht V Vorraum Bad Hausansicht IV Hausansicht I Kellerabteil Waschküche