NEU - Haus 7/Top 2- ANLAGEOBJEKT - Leben und genießen - stillvolle Doppelhaushälfte mit großem Garten wartet auf Sie!

Haus zum Kauf in 2630 Ternitz - Kaufpreis: 372.000 € / Objektnummer: 531
Ausstattung: Zentralheizung Terrasse

Preisinformationen

Kaufpreis:
372.000 €
Provision:
3.00 %

Fakten

Objektnummer:
531
Objekttyp:
Haus
Terrasse:
2
Wohnfläche:
141 m²
Zimmer:
5
Badezimmer:
1
Toilette:
2
Verfügbarkeit:
Verfügbar

Beschreibung

EINE OASE DER RUHE IN HERRLICHER UMGEBUNG - ANLAGEOBJEKT - Haus 7/Top 2

In herrlich sonniger und ruhiger Lage, stehen 6 Doppelhaushälften zum Verkauf.
> 2 Doppelhaushälften sind Anlageobjekte und derzeit vermietet
> 4 Doppelhaushälften können zur Eigennutzung oder als Anlageobjekt erworben werden
VORSTEUERABZUGSBERECHTIGUNG - bei Kauf als Anlageobjekt für Investoren!

Diese Doppelhaushälfte, mit einer großzügigen Wohnfläche von ca. 141 m², bietet ein durchdachtes Raumkonzept und wird Sie begeistern.
Der Wohnraum lädt zum Verweilen ein und führt in den privaten Eigengarten – ein fließender Übergang zwischen Innen- und Außenraum.

Ein besonderes Highlight ist der traumhafte und ebenerdige Garten.
Dort finden Sie wunderbare Plätze im Grünen, die für Ruhe und Erholung, aber auch für Freizeitspaß sorgen können. Ein Teil davon kann auch als vielseitiger Nutzgarten für Obst, Gemüse und Blumen genutzt werden.
Zudem bietet eine Terrasse im Obergeschoss einen weiteren gemütlichen Platz im Freien.

DETAILS und HIGHLIGHTS - HAUS 7/Top 2:
> Gartenfläche - ca. 692 m²
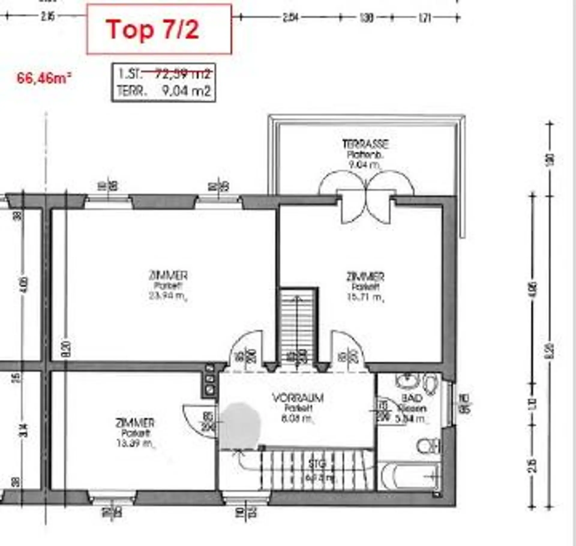
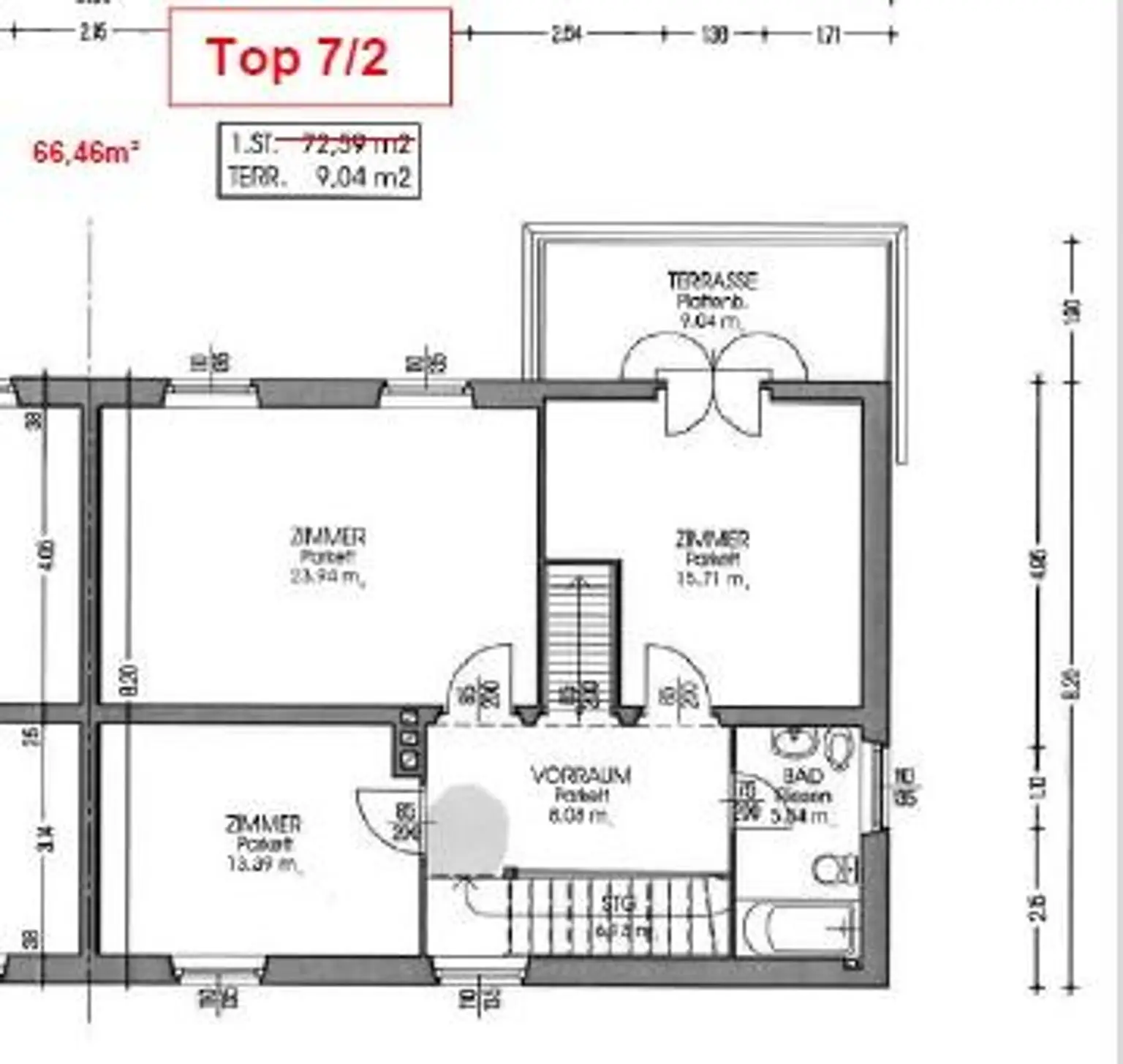
> Wohnfläche - ca. 141 m²
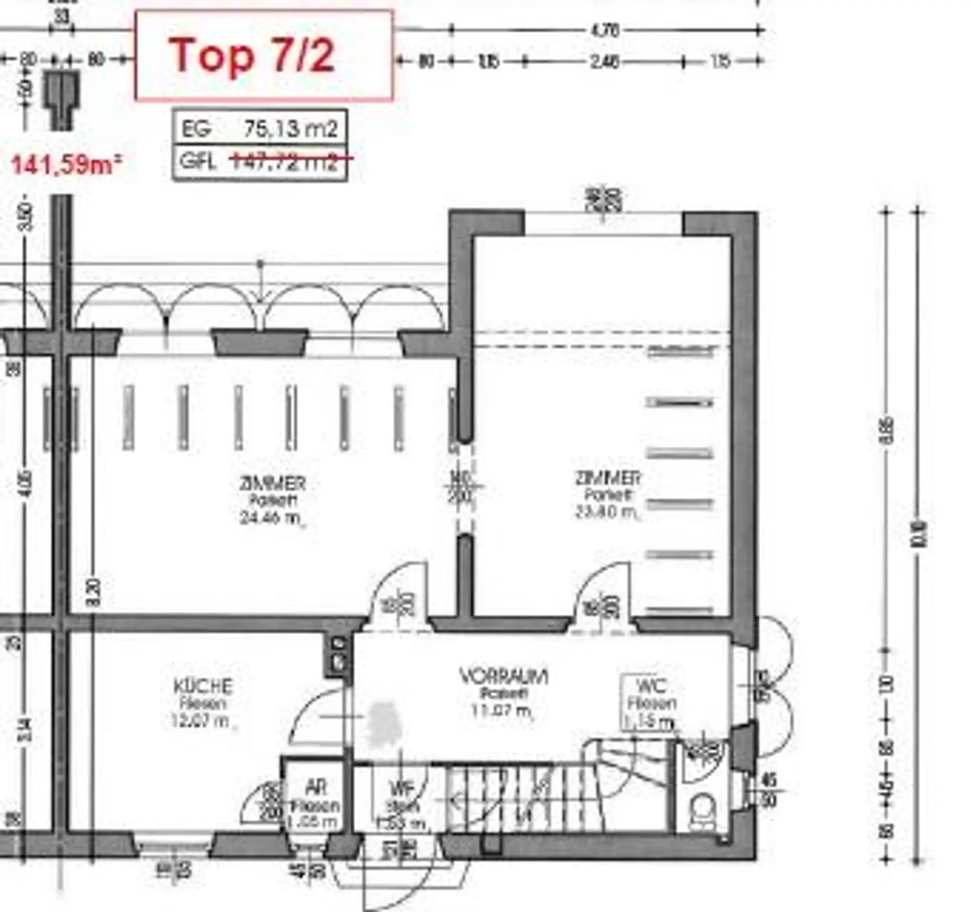
> Erdgeschoss - ca. 75 m²
> Obergeschoss - ca.66 m²
> Keller - ca. 56 m²
> Dachboden - ca. 76 m²
> Garten
> derzeit vermietet

RAUMAUFTEILUNG UND WOHNKOMFORT:
ERDGESCHOSS:
Das Erdgeschoss bildet den zentralen Wohnbereich des Hauses.
> Windfang
> Vorraum
> Küche mit integriertem Abstellraum
> Wohnbereich mit Zugang zur Terrasse und Garten
> ein weiteres Zimmer
> separates WC
> Terrasse

OBERGESCHOSS:
Das Obergeschoss ist als privater Rückzugsort bestens geeignet.
> Vorraum
> Zimmer mit Zugang zum Balkon
> 2 weitere Zimmer
> Badezimmer und WC
> Terrasse

LAGEBESCHREIBUNG und INFRASTRUKTUR:
Die Liegenschaft befindet sich in der idyllischen Gemeinde Pottschach im Schwarzatale, ein Ortsteil von Ternitz.

Im näheren Wohnumfeld liegen Wohnhausanlagen, Einfamilienhäuser, vor allem aber grüne Wiesen und Felder.
Das Wohnumfeld ist ruhig, jedoch erreichen Sie mit kurzen Wegen fußläufig wichtige Einrichtungen des täglichen Lebens wie Lebensmittelgeschäfte, Schule, Kindergarten, Arzt, Apotheke, Bank, Gastronomiebetriebe, etc..
Naherholungsgebiet liegt vor der Haustüre.

Verkehrstechnisch ist das Objekt öffentlich gut erreichbar.
Eine Bushaltestelle ist in kurzer Distanz vorhanden und auch der Bahnhof ist fußläufig erreichbar.
Die nahe gelegene Bundesstraße B17 bietet die direkte Anbindung an die Auffahrt zur S6 - Semmeringschnellstaße.

Jetzt Besichtigungstermin vereinbaren und diese Immobilie vor Ort erleben!
Ich freue mich auf Sie!

Die Gartenhütte ist nicht inkludiert und wird entfernt!

Hinweis gemäß Energieausweisvorlagegesetz: Ein Energieausweis wurde vom Eigentümer bzw. Verkäufer, nach unserer Aufklärung über die ab 1.12.2012 geltende generelle Vorlagepflicht, sowie Aufforderung zu seiner Erstellung noch nicht vorgelegt. Daher gilt zumindest eine dem Alter und der Art des Gebäudes entsprechende Gesamtenergieeffizienz als vereinbart. Wir übernehmen keinerlei Gewähr oder Haftung für die tatsächliche Energieeffizienz der angebotenen Immobilie.

Gerne kümmern wir uns um Ihre Finanzierung. Unsere Finanzexperten arbeiten mit verschiedenen Banken und können für Sie daher unverbindliche Angebote vorbereiten. Sprechen Sie Ihren Makler/in aktiv an.

Die Angaben zum Objekt basieren auf uns zur Verfügung gestellten Informationen.
Eine Haftung unsererseits ist hierfür ausgeschlossen. Detailfragen werden im Zuge von Besichtigungen besprochen, geklärt oder nachgereicht.

Wir bitten um Verständnis, dass wir aufgrund der Nachweispflicht gegenüber dem Eigentümer, nur Anfragen mit vollständigen Kontaktdaten (Name, Anschrift, TelefonNr., E-Mail) beantworten können.

Wir informieren Sie darüber, dass wir bei diesem Objekt eine Doppelmaklertätigkeit ausüben. (§ 5 Abs. 3 MaklerG).

Dieses Angebot ist unverbindlich und einer Zwischenverwertung vorbehalten.

Nebenkosten Kaufvertrag:
3 % vom Kaufpreis Provision zzgl. Mwst.
3,5 % Grunderwerbsteuer
1,1 % Grundbuchseintragungsgebühr
Kaufvertragserrichtung und Treuhandschaft lt. Tarifordnung des Vertragserrichters.
Beschreibung weiterlesen
Franz Wukovits

Franz Wukovits

RE/MAX Harmony

Lade...

Fotomix

Titelbild - Beispielfoto Wohnraum - Beispielfoto Küche - Beispielfoto Zimmer- Beispielfoto Zimmer - Beispielfoto Stiegenaufgang - Beispielfoto Zimmer - Beispielfoto Zimmer - Beispielfoto Zimmer - Beispielfoto Vorraum - Beispielfoto Badezimmer - Beispielfoto WC- Beispielfoto Terrasse im Obergeschoss - Beispielfoto Keller - Beispielfoto Keller - Beispielfoto Dachboden - Beispielfoto Blick in den Garten - Beispielfoto Terrasse - Beispielfoto Garten - Beispielfoto Grundriss Grundriss Aussenansicht