NEU - Helle 3-Zimmer-Loggia-Wohnung im 7. Liftstock mit schönem Fernblick bis zum Schneeberg!

Wohnung zum Kauf in 2230 Gänserndorf - Kaufpreis: 169.000 € / Objektnummer: 5585/197
Ausstattung: Boden Fahrstuhl Bad Gäste-WC Fahrradraum Abstellraum Zentralheizung Loggia WG geeignet

Preisinformationen

Kaufpreis:
169.000 €
Kaufpreis/m²
2.364,96 €
Betriebskosten netto:
201,74 € / Monat
Heizkosten netto:
106,87 €
Vermittlungsprovision:
Ja
Provision:
6.084,00 € inkl. 20% USt.

Fakten

Objektnummer:
5585/197
Objekttyp:
Wohnung
Loggia:
1
Keller Fläche:
2,14 m²
Wohnfläche:
71,46 m²
Loggia Fläche:
5,68 m²
Zimmer:
3
Badezimmer:
1
Toilette:
1
Baujahr:
1973
Neubau:
Ja
Zustand:
Sanierungsbedürftig
Verfügbarkeit:
Verfügbar
Verfügbar ab:
sofort

Beschreibung

IHR NEUES ZUHAUSE – AUSBLICK, DER INSPIRIERT!

Diese helle Wohnung begeistert mit einem seltenen Extra: einem Fernblick bei klarer Sicht sogar bis zum malerischen Schneeberg, ein Panorama, das Sie täglich aufs Neue verzaubern wird! 

Willkommen in dieser charmanten Loggia Wohnung. Ob als gemütliches Nest für Singles sowie Paare oder als idealer Startpunkt für junge Familien: Diese Wohnung bietet die perfekte Basis für Ihren nächsten Lebensabschnitt.

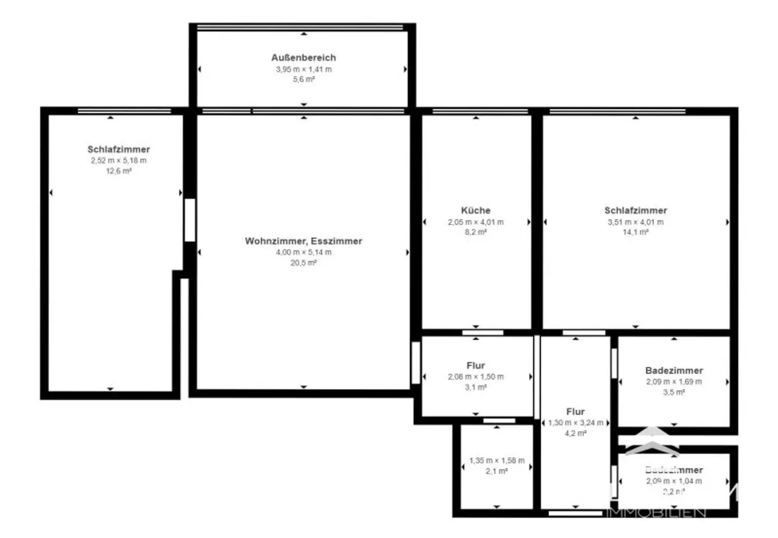
Auf rund 71,46 m² entfaltet sich ein durchdachtes Wohnkonzept mit drei flexibel nutzbaren Räumen – ob als Wohn- und Schlafbereich, Kinderzimmer oder Homeoffice. Ein Badezimmer mit Badewanne, ein separates WC sowie ein im Abstellraum integrierter Tresor ergänzen dieses attraktive Wohnangebot auf durchdachte Weise. Das Highlight der Wohnung ist die ca. 5,68 m² verglaste Loggia: ein Ort, an dem sich das ganze Jahr über die Sonne genießen lässt. Ob beim Morgenkaffee mit Weitblick oder bei einem Glas Wein in den Abendstunden, hier erleben Sie stimmungsvolle Sonnenuntergänge und einen Ausblick, der begeistert.

Die Wohnung befindet sich in einem renovierungsbedürftigen Zustand – und genau darin liegt Ihre Chance: Gestalten Sie Ihr neues Zuhause ganz nach Ihren persönlichen Vorstellungen und Ihrem Geschmack! Wer selbst Hand anlegt oder handwerkliches Geschick mitbringt, kann hier mit überschaubarem Aufwand ein tolles Wohnambiente schaffen.

 

HIGHLIGHTS

* Traumhafter Fernblick bis zum Schneeberg
* Westlich ausgerichtete Loggia 
* Energieeffizient – niedriger HWB-Wert
* Tresor im Abstellraum 

 

HARD FACTS

* 3 Wohnräume, ideal für Singles, Paare & junge Familien
* Separate Küche
* Laminatboden in den Wohnräumen
* Badezimmer mit Badewanne & separates WC
* Energieeffiziente 3-fach-verglaste Kunststofffenster (2011) 
* Holzfenster zur verglasten Loggia
* Gaszentralheizung 
* Zwei Waschküchen
* Fahrradraum

 

INFRASTRUKTUR

Gänserndorf überzeugt mit einer hervorragend ausgebauten Infrastruktur, die den Alltag besonders angenehm gestaltet, vieles davon bequem fußläufig erreichbar. Einkaufsmöglichkeiten wie Billa, Eurospar und Hofer, Drogerien wie Bipa und dm sowie Bank, Post, Trafik, Apotheken und medizinische Versorgung sind vor Ort vorhanden. Auch Grund- und Mittelschulen und Kindergärten befinden sich in der Nähe. Ergänzt wird das Angebot durch die Gastronomie- und Freizeitlandschaft. Das Heurigenlokal Storch und das Gasthaus Hansy, die mit regionalen Spezialitäten für genussvolle Momente sorgen, verwöhnen zudem Ihren Gaumen.

 

ÖFFENTLICHE ANBINDUNG

* Lokalbahnhof Gänserndorf S1, REX 1 mit direktem Anschluss nach Wien 
* Buslinie 535 bis zum Bahnhof
* Anbindung an die Schnellstraße B8 und S2
* Fahrradfreundliche Umgebung mit Radwegen

 

SONSTIGES

Diese Wohnung bietet eine wunderbare Gelegenheit, mit überschaubarem Budget den Grundstein für Ihr eigenes Zuhause zu legen – und dabei täglich einen beeindruckenden Ausblick zu genießen. Überzeugen Sie sich selbst bei einer persönlichen Besichtigung!

KAUF-NEBENKOSTEN-ÜBERSICHT

* Grundbuchseintragungsgebühr 1,1 %
* Grunderwerbsteuer 3,5 %
* Kaufvertragserrichtung 1 bis 3 % zzgl. USt. & Barauslagen
* Maklerhonorar 3 % zzgl. 20 % USt.

Nutzen Sie die Gelegenheit und profitieren Sie zudem von der Gebührenbefreiung bis zu EUR 500 000,- Kaufpreis (1,1% Grundbuch-Eintragungsgebühr, 1,2% Eintragungsgebühr der Pfandurkunde) beim Kauf vom Eigenheim! Sie sparen diese Gebühren im Zeitraum vom 01. Juli 2024 bis nur noch 30. Juni 2026. In der neuen Liegenschaft melden Sie für die nächsten fünf Jahre Ihren Hauptwohnsitz an.

Bitte haben Sie Verständnis, dass wir aufgrund der Nachweispflicht gegenüber dem Eigentümer nur Anfragen mit vollständiger Anschrift und Telefonnummer beantworten können.

Die Daten stammen direkt vom Eigentümer. Eine Haftung für deren Richtig- oder Vollständigkeit kann nicht übernommen werden. Änderungen und Irrtümer vorbehalten.

Haben Sie eine Immobilie zu vermieten oder zu verkaufen? Vereinbaren Sie noch heute Ihren kostenlosen Beratungstermin unter 0660 34 69 538 oder unter www.feeling-home.at [http://www.feeling-home.at].

»Zusätzlich bieten Ihnen meine Geschäftspartner eine kompetente Finanzierungsbegleitung zu aktuellen Bestkonditionen an. Fragen Sie mich sehr gern danach!«

Der Vermittler ist als Doppelmakler tätig.

Infrastruktur / Entfernungen

Gesundheit
Arzt <250m
Apotheke <750m
Klinik <1.500m

Kinder & Schulen
Kindergarten <250m
Schule <500m

Nahversorgung
Supermarkt <500m
Bäckerei <750m

Sonstige
Geldautomat <500m
Bank <500m
Post <500m
Polizei <1.500m

Verkehr
Bus <250m
Bahnhof <1.500m

Angaben Entfernung Luftlinie / Quelle: OpenStreetMap
Beschreibung weiterlesen

Lage und Verkehrsanbindung

Gänserndorf vereint die Vorzüge naturnahen Wohnens mit der Nähe zur Großstadt: Nur etwa 30 km nordöstlich von Wien im Herzen des Marchfelds gelegen, genießen Sie hier frische Luft und weite Landschaften. Die ausgezeichnete Verkehrsanbindung ermöglicht komfortables Pendeln – sowohl in die Wiener Innenstadt als auch in die umliegenden Regionen. Über die S2 erreichen Sie Wien, während die geplante S8 künftig für eine noch effizientere Verbindung sorgen wird. Trotz der stadtnahen Lage überzeugt Gänserndorf mit ruhigen Wohngebieten, die Erholung und Lebensqualität in den Mittelpunkt stellen. Zahlreiche Grünflächen und Naherholungsgebiete in der Umgebung laden zu vielfältigen Freizeit- und Outdoor-Aktivitäten ein und machen diesen Standort besonders attraktiv.

Heurigenlokal Storch

Energieeffizienz

HWB:
35,2 kWh/(m²*a)
HWB Klasse:
B
fGEE:
1,04
fGEE Klasse:
C
Energieausweisart:
Energiebedarfs-ausweis
Gültig bis:
28.05.2031

Grundriss

Lageplan

2230 Gänserndorf | Gänserndorf

Lade...
Helene Christiani

Helene Christiani
Geschäftsführerin

FEELING HOME IMMOBILIEN

Virtuelle Tour

Lade...

Fotomix

Bild 1 Bild 2 Bild 3 Bild 4 Bild 5 Bild 6 Bild 7 Bild 8 Bild 9 Bild 10 Bild 11 Bild 12 Bild 13 Bild 14 Bild 15