Herrliche 2-Zimmer-Gartenwohnung in Kalsdorf mit Tiefgaragenparkplatz

Wohnung zur Miete in 8401 Kalsdorf bei Graz - Gesamtmiete: 786,55 € / Objektnummer: 5971/4717
Ausstattung: Barrierefrei Boden Fahrstuhl Tiefgarage Parkplatz Fußbodenheizung Terrasse Garten

Preisinformationen

Gesamtmiete:
786,55 € / Monat
Nettomiete:
516,15 € / Monat
Betriebskosten netto:
127,98 € / Monat
Weitere Kosten netto:
65,00 €
Monatliche Kosten USt.:
77,42 €
Umsatzsteuer:
77,42 €
Kaution:
2 Bruttomonatsmieten
Provision:
Gemäß Erstauftraggeberprinzip bezahlt der Abgeber die Provision.

Fakten

Objektnummer:
5971/4717
Objekttyp:
Wohnung
Terrasse:
1
Terrassenfläche:
20 m²
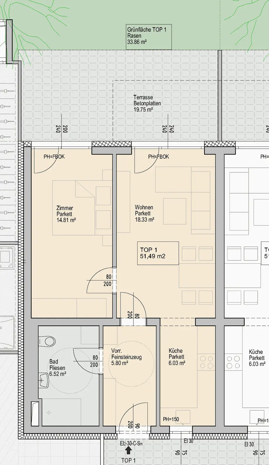
Wohnfläche:
52 m²
Gartenfläche:
40 m²
Zimmer:
2
Stockwerk:
EG
Baujahr:
2022
Neubau:
Ja
Zustand:
Neuwertig
Verfügbarkeit:
Verfügbar

Beschreibung

EINZUGSDATUM: ab sofort! 

Bruttomiete inkl. Betriebskosten und einem Tiefgaragenplatz: € 786,04

PROVISIONSFREI 

Weitere Informationen unter 0043 664 500 92 10

Verbrauchsabhängige Kosten EXTRA!

 

Adresse: Bahnhofstraße 36, 8401 Kalsdorf      Top 01

Südlich von Graz liegt Kalsdorf, die am stärksten wachsende Gemeinde der Steiermark. Hier liegt ein modernen Wohnbau mit äußerst hochwertig ausgestatteten Wohneinheiten. Allesamt verfügen über vorteilhafte Grundrisse und großzügige Freiflächen, wie Eigengarten, Terrasse oder Balkon und sind natürlich per Lift in allen Stockwerken erreichbar. Die perfekte Infrastruktur und ausgesprochene gute Anbindung machen dieses Wohnobjekt für Sie als Mieter mit Sicherheit sehr attraktiv. Nicht zuletzt deshalb, weil heutzutage einerseits die Lage im Grünen gesucht wird und andererseits nicht auf die Nähe zur Landeshauptstadt verzichtet werden möchte. 

Diese Wohnung ist im Erdgeschoss und hat einen kleinen, aber feinen und pflegeleichten Eigengarten. Die Küche ist getrennt zugänglich. 

AUSSTATTUNG 

  • Feinsteinfließen
  • Eichenparkett
  • Fenster mit 3-fach-Verglasung
  • elektrische Rollläden
  • moderne Einbauküche 
  • Fußbodenheizung/Fernwärme 
  • Balkon, Terrasse oder Eigengarten 
  • Kellerabteil, Lift, Tiefgarage, Stellplätze, Fahrradabstellplätze 

Weitere Informationen unter: 0043 664 500 92 10

Der Immobilienmakler erklärt, dass er – entgegen dem in der Immobilienwirtschaft üblichen Geschäftsgebrauch des Doppelmaklers – einseitig nur für den Vermieter tätig ist.

Beschreibung weiterlesen

Lage und Verkehrsanbindung

- Hauptplatz Kalsdorf
- Bahnhof Kalsdorf
- Kalsdorf
- Schwarzlsee und Freizeitzentrum Copacabana
- tolle Verkehrsanbindung (Autobahn A9/A2)
- Zug im Viertelstundentakt nach Graz

Energieeffizienz

HWB:
34,2 kWh/(m²*a)
HWB Klasse:
B
fGEE:
0,84
fGEE Klasse:
A
Energieausweisart:
Energiebedarfs-ausweis
Gültig bis:
21.02.2028

Lageplan

8401 Kalsdorf bei Graz | Graz-Umgebung

Lade...
Hr. Trabi

Hr. Trabi

Immotura Consulting GmbH

Lade...

Fotomix

Bild 1 Bild 2 Bild 3 Bild 4 Bild 5 Bild 6 Bild 7 Bild 8