NEU - Hochwertige Familienwohnung mit 4 Zimmern und südseitigem Balkon - im Zentrum von St. Pölten!

Wohnung zur Miete in 3100 St. Pölten - Gesamtmiete: 1.309,59 € / Objektnummer: 247/02374
Ausstattung: Barrierefrei Boden Fahrstuhl Abstellraum Fußbodenheizung Balkon

Preisinformationen

Gesamtmiete:
1.309,59 € / Monat
Nettomiete:
930,50 € / Monat
Betriebskosten netto:
260,04 € / Monat
Umsatzsteuer:
119,05 €
Preisinfos:
Abwicklung und Durchführung Mietvertrag: € 349,-
Kaution:
3.950,00 €

Fakten

Objektnummer:
247/02374
Objekttyp:
Wohnung
Balkon:
1
Wohnfläche:
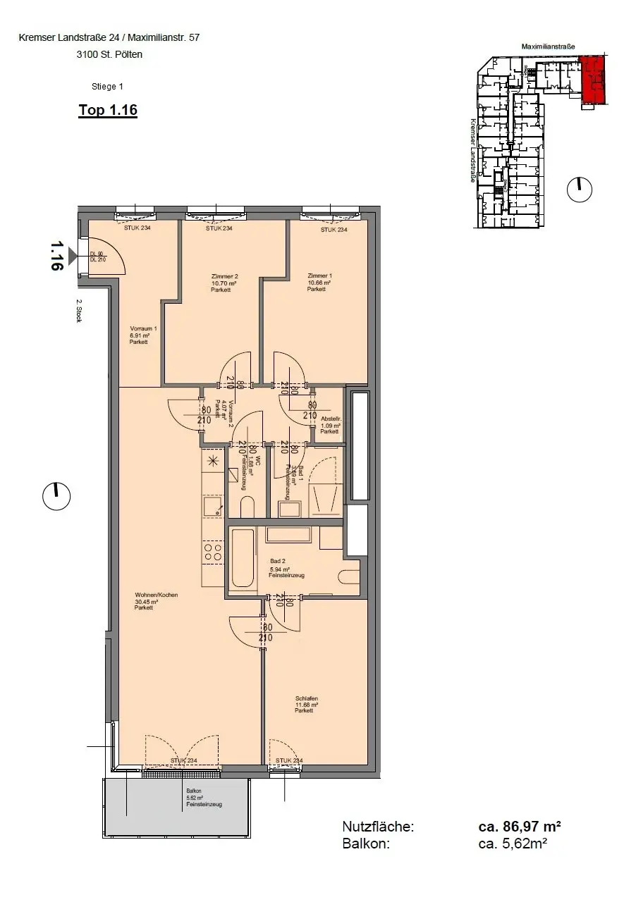
86,97 m²
Zimmer:
4
Badezimmer:
2
Toilette:
2
Stockwerk:
2
Baujahr:
2017/Neubau
Neubau:
Ja
Verfügbarkeit:
Verfügbar
Verfügbar ab:
nach Absprache

Beschreibung

Zum Bezug nach Absprache steht in einer Seitengasse in zentraler Lage von St. Pölten diese helle 3-Zimmer-Neubauwohnung mit einer Wohnnutzfläche von ca. 87 m², für Sie bereit. Bitte beachten: Die Fotos aus dem Archiv wurden aus Rücksicht auf die derzeitigen Mieter verwendet. Besichtigungstermine sind nur nach Freigabe durch den aktuellen Mieter möglich – wir bitten um etwas Geduld. Im 2. Obergeschoss erwartet Sie die Immobilie mit einer hochwertigen Ausstattung und einer durchdachten Raumaufteilung. Die Wohnung gliedert sich in einen Vorraum, eine großzügige Wohnküche, einen Abstellraum, drei Zimmer, zwei Badezimmer - eines davon mit Toilette und eine separate Toilette. Einige Highlights: - hochwertigen Ausstattung und einer durchdachten Raumaufteilung - moderne, voll ausgestattete Küche - ca. 6m² südseitig, in den Innenhof, ausgerichtete Balkon - Badezimmer mit Badewanne, Toilette und Waschmaschinenanschluss - 2. Badezimmer mit Dusche - Parkettböden, Kunststofffenstern und Außenjalousien - Fernwärme mit Fußbodenheizung - ca. 1.5 m² großes Kellerabteil - gute öffentliche Anbindungen (u.a. Buslinien: 480, 470 und 475) - Restaurants, Cafés und Einkaufsmöglichkeiten in unmittelbarer Nähe Selbstverständlich stehen sowohl Fernseh- als auch Internetanschluss sowie ein Kellerabteil zur Verfügung. Der monatliche Gesamtmietzins dieser Wohnung beläuft sich auf Euro 1.309,59 inklusive Betriebskosten und Umsatzsteuer. Die Heiz- und Warmwasserversorgung erfolgt per Fernwärmeheizung und ist im Mietpreis nicht inkludiert. Wir bitten Sie, für Anfragen das Kontaktformular der Immobilienplattformen zu nutzen. Nach Erhalt unserer E-Mail antworten Sie bitte direkt auf dieses E-Mail mit Ihrem Besichtigungswunsch. Wir möchten darauf hinweisen, dass unsere Antwort möglicherweise in Ihrem Spamordner landen könnte. Wir freuen uns auf Ihre Anfrage und einen gemeinsamen Besichtigungstermin!
Beschreibung weiterlesen

Lage und Verkehrsanbindung

St. Pölten Zentrum, Hauptbahnhof

Energieeffizienz

HWB:
32,01 kWh/(m²*a)
HWB Klasse:
B
fGEE:
0,83
fGEE Klasse:
A

Grundrisse

Vivienne Spicak

Vivienne Spicak

IMV Immobilienmakler

Lade...

Fotomix

Loggia Wohnraum Wohnraum II Wohnraum I Küche Zimmer III Aussicht Bad Bad I Aussicht I Gang Vorraum Zimmer Zimmer I Zimmer II Hausansicht