NEU - HOFSEITIGE ALTBAUWOHNUNG mit neuer Küche und neuem Badezimmer - Nähe Ungargasse (Balkonanbau ca. 7m2 möglich!)

Wohnung zum Kauf in 1030 Wien - Kaufpreis: 495.000 € / Objektnummer: 15439
Ausstattung: Boden Fahrstuhl Bad Fahrradraum Etagenheizung Balkon

Preisinformationen

Kaufpreis:
495.000 €
Kaufpreis/m²
7.887,19 €
Betriebskosten netto:
154,13 € / Monat
Vermittlungsprovision:
Ja
Provision:
3% des Kaufpreises zzgl. 20% USt.

Fakten

Objektnummer:
15439
Objekttyp:
Wohnung
Balkon:
1
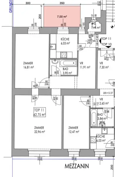
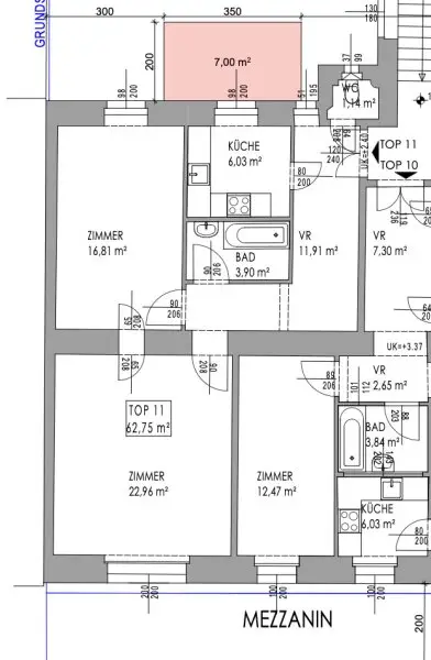
Balkonfläche:
7 m²
Keller Fläche:
4,34 m²
Wohnfläche:
62,76 m²
Zimmer:
2
Badezimmer:
1
Toilette:
1
Stockwerk:
1
Zustand:
Gepflegt
Verfügbarkeit:
Verfügbar

Beschreibung

NEULINGGASSE - WIENER CHARME & MODERNES WOHNEN 

Willkommen in der Neulinggasse im Herzen des 3. Bezirks von Wien – ein zeitloser Altbau aus der Wiener Gründerzeit (Baujahr 1913), der durch eine umfassende Sanierung und einen modernen Dachgeschoßausbau (2021) in neuem Glanz erstrahlt.

Dieses sanierte Schmuckstück verbindet historische Eleganz mit zeitgemäßem Komfort. Der Eingangsbereich beeindruckt mit edlen Holzverkleidungen und einem modernen digitalen schwarzen Brett, das die Bewohner stets auf dem Laufenden hält. Die renovierten Lichthöfe sorgen für ein helles und freundliches Ambiente. Ein Lift ist selbstverständlich vorhanden und bietet bequemen Zugang zu allen Stockwerken.

Im Innenhof stehen Fahrradabstellmöglichkeiten zur Verfügung, und jeder Wohnung ist ein praktisches Kellerabteil zugeordnet.

Wohncharme im Wiener Altbaustil

Die Wohnungen vereinen klassische Details der Gründerzeit mit modernem Wohnen. Freuen Sie sich auf:

* Hohe Räume, die ein luftiges Wohngefühl schaffen
* Fischgrätparkettböden für einen edlen Touch
* Wiener Kastenfenster
* Zeitlose Kassettentüren
* inkl. vollausgestatteter Küchen

Im Haus stehen aktuell großzügige 2- bis 5-Zimmer-Wohnungen mit Größen zwischen 56 und 123 m² zur Verfügung. Der moderne Dachgeschoßausbau bietet zusätzlich Wohnungen mit Freiflächen, ideal für all jene, die urbanes Wohnen mit einem Hauch von Grün genießen möchten.

 

Neu genehmigt: private Balkonoasen im Innenhof
Die Baubewilligung für Balkonanbauten wurde soeben erteilt. Künftige Eigentümerinnen und Eigentümer können – auf eigene Kosten – großzügige Balkone von ca. 6 bis 8 m² errichten lassen und sich damit eine wertvolle private Freifläche schaffen. Eine Seltenheit bei einem Wiener Altbau und ein Plus für Lebensqualität und Wertsteigerung.

 

Perfekte Lage und Infrastruktur

Die Neulinggasse liegt in einer der begehrtesten Lagen Wiens und bietet eine hervorragende Infrastruktur:

* Einkaufsmöglichkeiten: Galleria Landstraßer Hauptstraße und Wien Mitte „The Mall“
* Kulinarik und Märkte: Der charmante Rochusmarkt lädt zum Genießen ein
* Natur & Freizeit: Arenbergpark mit Hundezone und der nahegelegene Stadtpark
* Öffentliche Verkehrsanbindung: Exzellente Anbindung an das öffentliche Verkehrsnetz

 

Öffentliche Verkehrsmittel

- Straßenbahn:  O
- Bus: 4A
- U Bahn: U3
- Schnellbahn: Bahnhof Wien Rennweg 

 

_Nebenkosten: _

Grundbucheintragung: 1,1% des Kaufpreises

Grunderwerbssteuer: 3,5% des Kaufpreises

Maklerprovision: 3% des Kaufpreises + 20% USt. 

Kaufvertragshonorar: 1,2% des Kaufpreises zzgl. USt und Barauslagen I Kaufvertragserstellung erfolgt durch die Kanzlei Tiefenthaler & Gnesda Rechtsanwälte

 

Bei ernsthaftem Interesse stellen wir Ihnen selbstverständlich gerne weitere Unterlagen zur Verfügung, darunter beispielsweise:

*
Grundbuchsauszug

*
Wohnungseigentumsvertrag

*
Nutzwertgutachten

*
Protokolle von Eigentümerversammlungen (sofern vorhanden) u. v. m.

 

Unser Rundum-Service für Sie:
Sollten Sie sich für diese Immobilie entscheiden, begleiten wir Sie kompetent durch den gesamten Kaufprozess – beginnend beim Kaufanbot über die Abstimmung individueller Wünsche und die Vertragsunterzeichnung bis hin zur Übergabe der Immobilie. Auch bei organisatorischen Schritten wie der Ummeldung von Strom, Gas oder Fernwärme stehen wir Ihnen unterstützend zur Seite. Selbstverständlich stellen wir Ihnen dafür alle notwendigen Formulare und Unterlagen bereit.

Darüber hinaus helfen wir Ihnen gerne bei der Finanzierung Ihrer Wunschimmobilie und erarbeiten gemeinsam mit unseren erfahrenen Finanzierungspartnern optimale Lösungen zu attraktiven Konditionen.

 

Sie möchten Ihre Immobilie verkaufen?
Dann sind Sie bei uns bestens aufgehoben! Wir bieten Ihnen eine unverbindliche und kostenfreie Erstberatung inklusive fundierter Bewertung Ihrer Immobilie sowie einer transparenten Darstellung aller relevanten Faktoren.

 

_Maklervereinbarung: _Wir ersuchen um Verständnis, dass wir bei Anfragen zur Objektadresse, bzw. Besichtigungstermin  aufgrund neuer gesetzlicher Bestimmungen Unterlagen erst dann zusenden können, wenn Sie vorab bestätigen, dass Sie unser sofortiges Tätigwerden wünschen und über Ihre Rücktrittsrechte aufgeklärt wurden. Sie bekommen nach Ihrer schriftlichen Anfrage mit vollständiger Angabe des Namens, Anschrift und Telefonnummer ein Email, in dem Sie diese Punkte bestätigen müssen.

 

_Haftungsausschluss:  _Wir weisen darauf hin, dass sämtliche Daten im vorliegenden Angebot sowie die von unserem Büro an Sie weitergegebenen Auskünfte, vom Eigentümer der Immobilie zur Verfügung gestellt wurden. Ebenso sind Informationen von Dritten (z.B. behördliche Informationen) eingeholt worden, auch für diese können wir unsererseits keinerlei Haftung für deren uneingeschränkte Richtigkeit übernehmen.

Wir weisen darauf hin, dass zwischen dem Vermittler und dem zu vermittelnden Dritten ein familiäres oder wirtschaftliches Naheverhältnis besteht.

Der Vermittler ist als Doppelmakler tätig.

Infrastruktur / Entfernungen

Gesundheit
Arzt <500m
Apotheke <500m
Klinik <500m
Krankenhaus <500m

Kinder & Schulen
Schule <500m
Kindergarten <500m
Universität <500m
Höhere Schule <500m

Nahversorgung
Supermarkt <500m
Bäckerei <500m
Einkaufszentrum <1.000m

Sonstige
Geldautomat <500m
Bank <500m
Post <500m
Polizei <1.000m

Verkehr
Bus <500m
U-Bahn <1.000m
Straßenbahn <500m
Bahnhof <500m
Autobahnanschluss <2.000m

Angaben Entfernung Luftlinie / Quelle: OpenStreetMap
Beschreibung weiterlesen

Lage und Verkehrsanbindung

- Neulinggasse
- Ruhige Wohngegend und guter Infrastruktur
- Gute Anbindung an öffentliche Verkehrsmittel, nur wenige Minuten in die Innenstadt
- Viele Restaurants, Cafés und Geschäfte in der Umgebung
- Die Wohnung befindet sich in einem modernen Mehrfamilienhaus mit Aufzug

Ungargasse

Energieeffizienz

HWB:
100 kWh/(m²*a)
HWB Klasse:
C
fGEE:
1,91
fGEE Klasse:
D
Energieausweisart:
Energiebedarfs-ausweis
Gültig bis:
09.10.2032

Dokumente

Grundrisse

Lageplan

1030 Wien | Wien 3., Landstraße

Lade...
Anita Ochsenhofer

Anita Ochsenhofer
Immobilienberaterin

Moritz Immobilien

Lade...

Fotomix

Bild 1 Bild 2 Bild 3 Bild 4 Bild 5 Bild 6 Bild 7 Bild 8 Bild 9 Bild 10 Bild 11 Bild 12 Bild 13 Bild 14 Bild 15 Bild 16 Bild 17 Bild 18 Bild 19 Bild 20 Bild 21 Bild 22 Bild 23 Bild 24 Bild 25 Bild 26