NEU - Ideal für Stadtliebhaber | Altbauwohnung mit Balkon

Wohnung zum Kauf in 1150 Wien - Kaufpreis: 275.000 € / Objektnummer: 2040
Ausstattung: Boden Wohnküche / offene Küche Bad Fahrradraum Fußbodenheizung Balkon WG geeignet

Preisinformationen

Kaufpreis:
275.000 €
Betriebskosten netto:
78,61 € / Monat
Vermittlungsprovision:
Ja
Provision:
3% des Kaufpreises zzgl. 20% USt.

Fakten

Objektnummer:
2040
Objekttyp:
Wohnung
Balkon:
1
Balkonfläche:
6,97 m²
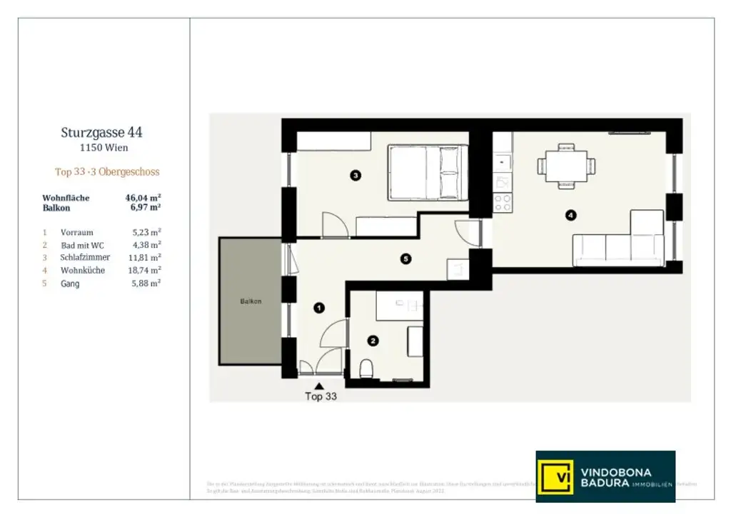
Wohnfläche:
46,06 m²
Zimmer:
2
Badezimmer:
1
Toilette:
1
Stockwerk:
3
Baujahr:
1900
Altbau:
Ja
Letzte Sanierung:
2024
Zustand:
Erstbezug
Verfügbarkeit:
Verfügbar

Beschreibung

Dieses sorgfältig revitalisierte Gründerzeithaus aus der Jahrhundertwende verbindet den Charme klassischer Wiener Architektur mit den Anforderungen modernen Wohnens. Die stilvoll erneuerte Fassade sowie die hochwertig gestalteten Allgemeinbereiche unterstreichen den hochwertigen Gesamteindruck des Hauses mit drei Regelgeschoßen.

Die Wohnung Top 33 zählt zu den hochwertig sanierten Einheiten des Hauses und wird als Erstbezug angeboten. Sie überzeugt durch klassische Altbau-Elemente, helle Räume und einen effizient geplanten Grundriss, der vielfältige Nutzungsmöglichkeiten eröffnet.

Die räumliche Gestaltung bietet eine ausgewogene Mischung aus offenem Wohnbereich und ruhigem Rückzugsraum. Der Grundriss eignet sich ideal für Singles, Paare oder als kompakte, hochwertige Anlagewohnung.

 

HARD FACTS:

* Wohnfläche: 42,36 m²
* Zimmeranzahl: 2 Zimmer (Wohnbereich mit offener Wohnküche, Schlafzimmer)
* Stockwerk: 3. Obergeschoss (KEIN Lift)

 

TOP FEATURES: 

* Hochwertiger Eichen-Vollholzparkett in Fischgrätverlegung – klassischer Altbau-Stil mit eleganter Optik.
* Vollholz-Kassettentüren und typische Altbau-Elemente verleihen dem Zuhause Atmosphäre und Charakter.
* Fußbodenheizung und moderne Heiztechnik sorgen für ein angenehmes Raumklima.
* Sanitärausstattung: modernes Bad mit hochwertiger Ausstattung, separate Toilette, zeitgemäße Installationen und Armaturen – Umsetzung im Zuge der Sanierung.
* Küche: offene Wohnküche – ideal zum Kochen, Essen und Wohnen in einem hellen, offenen Raum.
* Technik & Infrastruktur: Kabel-/Sat-TV oder DVB-T, digitale Anschlüsse, Fahrradraum im Haus vorhanden.
* Flexibilität: gut geschnittener Grundriss mit sehr guten Voraussetzungen für Eigennutzung oder Vermietung.

 

Die Wohnung liegt in einer sehr lebendigen und gut angebundenen Wohngegend im 15. Bezirk (Rudolfsheim-Fünfhaus). Die Anbindung an den öffentlichen Verkehr ist ausgezeichnet – die nächstgelegene U-Bahn-Station U3 (Wiener Linien) „Johnstraße“ sowie weitere öffentliche Verbindungen sind fußläufig erreichbar. Der nahe Meiselmarkt bietet frische Lebensmittel, sowie ein klassisches Markterlebnis.

 

Hinweis:
_Sollte diese Wohnung nicht Ihren individuellen Vorstellungen entsprechen, bieten wir Ihnen gerne attraktive Alternativen an. Wir verfügen über Zugriff auf ein umfangreiches Portfolio von derzeit rund 750 Wohneinheiten in unterschiedlichen Lagen, Größen und Ausstattungsvarianten in Wien._

_Sprechen Sie uns gerne an – wir finden gemeinsam die passende Immobilie für Sie._

-------------

IHRE FINANZIERUNG IST GESICHERT?

Ein gutes Geschäft haben Sie erst gemacht, wenn alles zusammenpasst. Die Immobilie, der Kaufpreis, die Finanzierung und die Abwicklung. Damit Sie ihr neues Zuhause auch genießen können kommt es gerade auf die ideale Finanzierung an.
Wir vermitteln Ihnen nicht nur die passende Immobilie, wir verhelfen Ihnen auch zur maßgeschneiderten Finanzierung.
Nützen Sie unser kostenloses Finanzservice! Sie werden begeistert sein! Unverbindliche Finanzierungsangebote erhalten Sie innerhalb von 3-5 Werktage ab Erhalt aller notwendigen Unterlagen!

 

Wir weisen darauf hin, dass zwischen dem Vermittler und dem zu vermittelnden Dritten ein familiäres oder wirtschaftliches Naheverhältnis besteht.

Der Vermittler ist als Doppelmakler tätig.

Infrastruktur / Entfernungen

Gesundheit
Arzt <500m
Apotheke <500m
Klinik <1.000m
Krankenhaus <2.000m

Kinder & Schulen
Schule <500m
Kindergarten <500m
Universität <1.000m
Höhere Schule <1.500m

Nahversorgung
Supermarkt <500m
Bäckerei <500m
Einkaufszentrum <500m

Sonstige
Geldautomat <500m
Bank <500m
Post <500m
Polizei <500m

Verkehr
Bus <500m
U-Bahn <500m
Straßenbahn <500m
Bahnhof <500m
Autobahnanschluss <5.000m

Angaben Entfernung Luftlinie / Quelle: OpenStreetMap
Beschreibung weiterlesen

Energieeffizienz

HWB:
185,4 kWh/(m²*a)
HWB Klasse:
E
fGEE:
2,91
fGEE Klasse:
E
Energieausweisart:
Energiebedarfs-ausweis
Gültig bis:
06.01.2030

Grundriss

Lageplan

1150 Wien | Wien 15., Rudolfsheim-Fünfhaus

Lade...
Thomas Nawara

Thomas Nawara
Zertifizierter Immobilienexperte

Badura Immobilien GmbH

Lade...

Fotomix

Bild 1 Bild 2 Bild 3 Bild 4 Bild 5 Bild 6 Bild 7 Bild 8