NEU - Ideal für Verkaufs-, Büro- oder Dienstleistungsgewerbe - Smart Office Living - U4 fußläufig erreichbar - Tiefgaragenstellplatz

Immobilie zur Miete in 1130 Wien / Objektnummer: 8513
Ausstattung: Barrierefrei

Preisinformationen

Gesamtmiete (exkl. USt.):
2.747,12 € / Monat
Umsatzsteuer:
549,42 €
Kaution:
4 Bruttomonatsmieten
Vermittlungsprovision:
Ja
Provision:
3 Bruttomonatsmieten zzgl. 20% USt.

Fakten

Objektnummer:
8513
Bürofläche:
203,49 m²
Zimmer:
1
Toilette:
1
Neubau:
Ja
Verfügbarkeit:
Verfügbar

Beschreibung

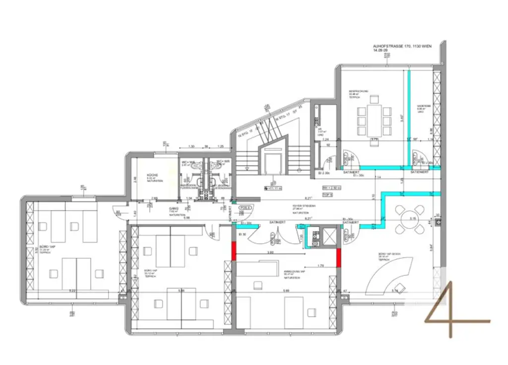
Zur Vermietung gelangt eine moderne Gewerbefläche im 4. Obergeschoss mit ca. 203,49 m², ideal als Büro-, Verkaufs- oder Dienstleistungsfläche. Die großzügige straßenseitige Fensterfront sorgt für beste Sichtbarkeit und ein helles, repräsentatives Arbeitsumfeld. Alle Bereiche sind barrierefrei über die zentrale Liftanlage sowie das lichtdurchflutete Stiegenhaus bequem erreichbar und zusätzlich optimal über den zentralen Gangbereich erschlossen. Die moderne Deckenklima- und Heizlösung garantiert ein angenehmes Raumklima ohne störenden Luftzug, Tiefgaragenplätze im Haus können separat angemietet werden.

Eckdaten:

* Stockwerk: 4.OG
* Mietfläche: ca. 203,49 m²
* Mietzins: € 2747,12 exkl. USt und BK
* Betriebskosten: € 1.360,66 (inkl. Betriebskosten, Heizkosten, Klima & Ust.)
* Gesamtmiete inkl. BK und USt: € 4.657,2
* Kaution: 4 BMM
* Bezug: ab sofort

Lage:
Auhofstraße 170, 1130 Wien (Hietzing), in unmittelbarer Nähe zur U4 (Unter St. Veit, Ober St. Veit, Hütteldorf).
Gute Anbindung durch mehrere Buslinien, Wientalradweg und Westausfahrt (A1).

Gerne steht Ihnen Herr Michael Hellebrand für weitere Fragen bzw. flexibel gestaltbare Besichtigungstermine unter 0664 75346995 [tel:066475346995] zur Verfügung.  

www.4immobilien.at

Wir weisen ausdrücklich auf unser wirtschaftliches Naheverhältnis mit dem Abgeber/der Abgeberin und auf unsere Vermittlungstätigkeit als Doppelmakler hin. 

Irrtum und Änderungen vorbehalten!

Hinweis gemäß Energieausweisvorlagegesetz: Ein Energieausweis wurde vom Eigentümer bzw. Verkäufer, nach unserer Aufklärung über die generell geltende Vorlagepflicht, sowie Aufforderung zu seiner Erstellung noch nicht vorgelegt. Daher gilt zumindest eine dem Alter und der Art des Gebäudes entsprechende Gesamtenergieeffizienz als vereinbart. Wir übernehmen keinerlei Gewähr oder Haftung für die tatsächliche Energieeffizienz der angebotenen Immobilie.

Wir weisen darauf hin, dass zwischen dem Vermittler und dem zu vermittelnden Dritten ein familiäres oder wirtschaftliches Naheverhältnis besteht.

Der Vermittler ist als Doppelmakler tätig.
Beschreibung weiterlesen

Grundriss

Lageplan

1130 Wien | Wien 13., Hietzing

Lade...
Michael Hellebrand

Michael Hellebrand
Immobilienmakler Wien - Niederösterreich

4immobilien

Lade...

Fotomix

Bild 1 Bild 2 Bild 3 Bild 4 Bild 5 Bild 6