NEU - Idyllisches Baugrundstück in Aussichtslage am Attendorfberg/ absolute Ruhelage/ Nähe Seiersberg

Grundstück zum Kauf in 8151 Hitzendorf - Kaufpreis: 169.000 € / Objektnummer: 1434
Zielfoto
Ansicht
Ansicht 2
Ansicht 3
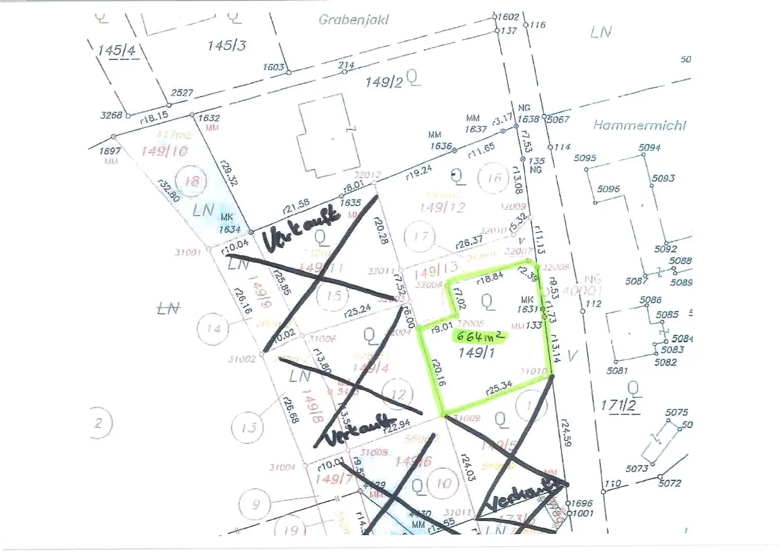
Lageplan markiert 664 m²

Preisinformationen

Kaufpreis:
169.000 €
Provision:
3.60 %

Fakten

Objektnummer:
1434
Objekttyp:
Grundstück
Grundstücksfläche:
664 m²
Verfügbarkeit:
Verfügbar

Beschreibung

Obj. Nr. 57, Idyllisches Baugrundstück in Aussichtslage am Attendorfberg/ absolute Ruhelage
mit 664 m² Grundstücksfläche, 0,2-0,4 Baudichte, Satteldach,
kein Bebauungsplan, voll aufgeschlossen, wunderbare Aussichtslage
Kaufpreis € 169.000,-
Info: Frau Elisabeth Resch 0664-975 86 84, resch@immoresch.at

Das angebotene Grundstück befindet sich in Attendorfberg, einer idyllischen und ländlich geprägten Gegend südwestlich von Graz. Die Liegenschaft besticht durch ihre absolut ruhige Lage – fernab vom Durchzugsverkehr, eingebettet in die sanften Hügel der Weststeiermark. Das Grundstück ist voll aufgeschlossen – sämtliche Anschlüsse wie Strom, Wasser, Kanal, befinden sich direkt an der Grundstücksgrenze.

Nähe: Hitzendorf, Seiersberg, Tobelbad, Lieboch, Mantscha
Beschreibung weiterlesen

Lageplan

8151 Hitzendorf | Voitsberg

Lade...
Elisabeth Resch

Elisabeth Resch

Immobilien Resch GmbH

Lade...

Fotomix

Zielfoto Ansicht Ansicht 2 Ansicht 3 Lageplan markiert 664 m²