NEU - Ihr neues Zuhause in Floridsdorf – Top Lage Prager Straße - JETZT ANFRAGEN!

Wohnung zur Miete in 1210 Wien - Gesamtmiete: 1.623,00 € / Objektnummer: 1762968
Ausstattung: Boden Fahrstuhl Bad Gäste-WC Rollladen Tiefgarage Parkplatz Fahrradraum Fernwärme Terrasse

Preisinformationen

Gesamtmiete:
1.623,00 € / Monat
Betriebskosten netto:
266,08 € / Monat
Umsatzsteuer:
147,55 €
Kaution:
3 Bruttomonatsmieten
Provision:
Gemäß Erstauftraggeberprinzip bezahlt der Abgeber die Provision.

Fakten

Objektnummer:
1762968
Objekttyp:
Wohnung
Terrasse:
2
Wohnfläche:
84,43 m²
Nutzfläche:
109,74 m²
Gesamtfläche:
109,74 m²
Zimmer:
3
Badezimmer:
1
Toilette:
2
Stockwerk:
5
Baujahr:
2019
Neubau:
Ja
Zustand:
Neuwertig
Verfügbarkeit:
Verfügbar

Beschreibung

Moderne Neubauwohnungen in unmittelbarer Nähe zum SCN, Lorettowiese und mit ausgezeichneter Anbindung an öffentliche Verkehrsmittel – Straßenbahnlinie 26 und S-Bahn Jedlersdorf in Gehweite!

Im Jahr 2019 wurde dieses hochwertige Wohngebäude entlang der Prager Straße errichtet. Es überzeugt durch seine ausgezeichnete Anbindung an öffentliche Verkehrsmittel, die Nähe zu attraktiven Naherholungsgebieten und eine hervorragende Infrastruktur in der unmittelbaren Umgebung.

Nur wenige Minuten zu Fuß vom Gebäude entfernt, hält die Straßenbahnlinie 26, die den 21. und 22. Bezirk miteinander verbindet. Sie bietet eine schnelle Verbindung in nur vier Stationen zur U6 und der S-Bahn in Floridsdorf sowie in acht Stationen zur U1 in Kagran, von wo aus Sie direkten Zugang zum DONAUZENTRUM, einem beliebten Einkaufs- und Freizeitbereich, haben. Die Linie verläuft zudem bis zur Stadtgrenze nach Strebersdorf und führt in eine landschaftlich schöne Region. Auch die S-Bahn-Station Jedlersdorf ist in weniger als zehn Minuten zu Fuß erreichbar, wo die Linien S3, S4 und S7 halten.

Dank der zentralen Lage an der gut frequentierten Prager Straße profitieren die Bewohner von einer ausgezeichneten Infrastruktur und umfangreichen Einkaufsmöglichkeiten. Direkt gegenüber befindet sich ein BILLA, während auch eine Apotheke, verschiedene Werkstätten und zahlreiche Restaurants schnell zu erreichen sind. Für größere Einkäufe bietet sich das Shopping Center Nord an, das nur zwei Busstationen entfernt liegt.

Für Aktivitäten im Freien bieten sich die nahegelegene Lorettowiese – mit einer Fläche von rund 4 Fußballfeldern – sowie der angrenzende Aupark Jedlesee an. Diese bieten zahlreiche Freizeitmöglichkeiten wie einen Abenteuerspielplatz, einen Skaterpark, Sitzgelegenheiten, Beachvolleyballplatz, Fußballplatz und eine Hundezone. Auch die Neue Donau mit ihren Grillplätzen und ausgedehnten Radwegen ist schnell erreichbar.

Das Gebäude selbst zeichnet sich durch moderne Architektur und eine hochwertige Ausstattung aus. Es wurden großzügige Allgemeinflächen sowie effiziente Energiesparmaßnahmen berücksichtigt. Beheizt wird die Anlage mittels effizienter Fernwärme über Heizkörper. In den beiden begrünten Innenhöfen befinden sich Spielgeräte für Kinder. Jede Wohnung verfügt über ein Kellerabteil als zusätzlichen Stauraum sowie Zugang zu einem Fahrrad- und Kinderwagenabstellraum. Stellplätze in der hauseigenen Tiefgarage können optional angemietet werden.

Die Wohnungen bieten eine hohe Lebensqualität dank durchdachter Grundrisse und hochwertiger Ausstattung. In den Wohnbereichen wurde edler Eichenholzparkett verlegt, und die offenen Wohnküchen sind mit modernen Einbauküchen und Elektrogeräten ausgestattet. Die Fenster sind mit außenliegendem Sonnenschutz versehen, der über eine Kurbel bedient wird. Die Badezimmer sind mit weißen Fliesen ausgestattet und verfügen über einen Waschmaschinenanschluss, einen Spiegel, ein Spülbecken sowie einen Handtuchheizkörper. Je nach Wohnung ist entweder eine Badewanne oder eine Duschkabine integriert. Ein weiteres Highlight ist die Sprechanlage mit Kamera-Display in jeder Wohnung.

Die Wohnungen werden mit einer Befristung auf 5 Jahre vermietet.

 

Highlights:

* Hervorragende Infrastruktur in unmittelbarer Umgebung: BILLA gegenüber, Apotheke in Gehweite, Restaurants, Kindergärten und Schulen
* Shopping Center Nord in nur einer Busstation erreichbar
* Begrünter Innenhof mit Spielplatz
* Fahrradraum, Kinderwagenraum und Kellerabteile verfügbar
* Straßenbahnlinie 26 in 2 Gehminuten erreichbar
* 8 Straßenbahn-Stationen zur U1 Kagran und DONAUZENTRUM
* S-Bahn Jedlersdorf in Gehweite
* Nur 4 Straßenbahn-Stationen zur U6 und S-Bahn Floridsdorf
* Naherholungsgebiete Lorettowiese und Aupark Jedlesee in Gehweite
* Tiefgarage mit optionalen Stellplätzen
* Postboxen vorhanden

 

Ausstattungsstandard:

* Einbauküche mit Elektrogeräten inklusive
* Außenbeschattung an den Fenstern
* Moderner Neubau
* Eichenparkettboden
* Fernwärme-Heizung

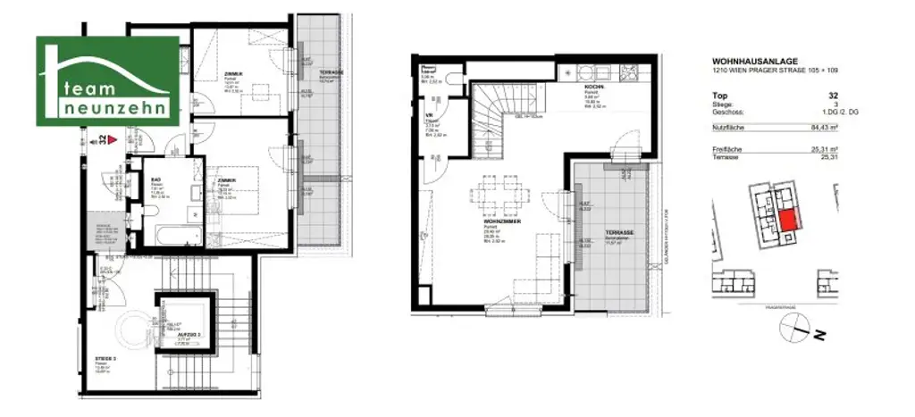
Wohnung Stiege 3 Top 32:

Die 3-Zimmer-Wohnung mit ca.  84,43 m² Wohnfläche sowie mit ca. 25,31 m² Terrasse befindet sich im 1. Dachgeschoss - 2. Dachgeschoss und orientiert sich Richtung Osten.

* 1. Vorraum: ca. 8,86 m²
* Bad mit Toilette, Badewanne, Handwaschbecken u. WMA: ca. 7,61 m²
* 1. Schlafzimmer: ca. 12,01 m²
* 2. Schlafzimmer: ca. 16,23 m²
* Wohnzimmer mit Kochnische: ca. 35,06 m²
* 2. Vorraum: ca. 3,10 m²
* separate Toilette: ca. 1,56 m² 

Die angebotene Wohnung ist ab 01.07.2026 verfügbar. 

 

Wir weisen höflichst darauf hin, dass es sich bei den Fotos anbei um Musterfotos handelt. Die Wohnung wird gleich oder gleichwertig übergeben.

Einige Bilder des Inserats wurden zum Zweck der besseren Visualisierung digital mit KI möbliert. Die Wohnung wird unmöbliert übergeben.

 

Kostenübersicht

Der monatliche Mietpreis inklusive Betriebskosten und USt. beläuft sich auf € 1.623,00.

* Kaution: 3 Bruttomonatsmieten
* Provision: keine

 

Der angegebene Mietpreis versteht sich als Bruttokaltmiete, Energiekosten wie für Heizung, Warmwasser und Strom sind somit nicht inkludiert und fallen gesondert, basierend auf Ihrem Verbrauch, an. 

 

Bei Bedarf besteht auch die Möglichkeit einen Stellplatz in der hauseigenen Tiefgarage anzumieten.

Der Mietpreis für den PKW-Stellplatz beläuft sich auf 115 Euro (inkl. BK und USt.).

 

Infrastruktur:

In wenigen Gehminuten erreichen Sie die Straßenbahnlinie 26, die die Bezirke 21 und 22 miteinander verbindet. In nur vier Stationen gelangen Sie zur U6 und zur S-Bahn in Floridsdorf, während es nur acht Stationen bis zur U-Bahn U1 Kagran sind – dem Tor zu einem Shopping- und Entertainmentparadies im DONAUZENTRUM! Die S-Bahn-Station Jedlersdorf ist ebenfalls fußläufig erreichbar, und in weniger als zehn Minuten stehen Ihnen die Linien S3, S4 und S7 zur Verfügung.

Die Lage an der Prager Straße bietet Ihnen eine ausgezeichnete Nahversorgung. Praktisch direkt vor der Tür finden Sie einen BILLA, eine Apotheke (nur 250 m entfernt), zahlreiche Werkstätten und ein vielfältiges Gastronomieangebot. Für ausgiebige Shoppingtouren ist das Shopping-Center-Nord, nur zwei Busstationen entfernt, ideal. Für Freizeitaktivitäten und Erholung laden die nahegelegene Lorettowiese, die sich über vier Fußballfelder erstreckt, sowie der angrenzende Aupark Jedlesee ein. Hier erwarten Sie ein Abenteuerspielplatz, ein Skaterpark, Beachvolleyballplätze und viele Grünflächen. Fußballbegeisterte können sich zudem auf den SC Columbia Floridsdorf und den FAC-Platz freuen. Auch die Neue Donau mit ihren Grillplätzen und Radwegen ist schnell erreicht.

 

Energieausweis:

Der Referenz-Heizwärmebedarf beträgt 30,93 kWh/m²a und entspricht somit der Klasse B.

Der fGEE beträgt 0,83 und entspricht somit sogar der Klasse A. 

 

Für Fragen bzw. Besichtigungen steht Ihnen Herr Stefan Djukic sehr gerne unter 0664 536 84 47 oder via E-Mail unter Djukic@teamneunzehn.at zur Verfügung.

Wir weisen darauf hin, dass zwischen dem Vermittler und dem zu vermittelnden Dritten ein familiäres oder wirtschaftliches Naheverhältnis besteht.

Der Immobilienmakler erklärt, dass er – entgegen dem in der Immobilienwirtschaft üblichen Geschäftsgebrauch des Doppelmaklers – einseitig nur für den Vermieter tätig ist.

"Leben braucht Raum" * T19-RE Real Estate GmbH & Co KG * www.teamneunzehn.at [https://www.teamneunzehn.at]

Doppelmakler

Wir werden als Immobilienmakler kraft bestehenden Geschäftsgebrauchs als Doppelmakler tätig und haben sohin beide Seiten des Vertrages (Verkäufer-Käufer, Vermieter-Mieter) zu unterstützen.

Wirtschaftliches Naheverhältnis

Es wird bekannt gegeben, dass folgendes wirtschaftliches Naheverhältnis zwischen der teamneunzehn-Gruppe und dem Verkäufer/der vermietenden Partei besteht: ständige und dauerhafte Beauftragung mit der Vermittlung des bestehenden Immobilienportfolios

Haftungserklärung zum Inserat

Irrtum und Änderungen vorbehalten! Sofern es sich bei Bildern um Visualisierungen handelt, können Abänderungen zur tatsächlichen Ausführung resultieren. Wir weisen ausdrücklich darauf hin, dass das auf Fotos oder Visualisierungen ersichtliche Mobiliar bzw. Inventar nicht Bestandteil des inserierten Preises ist.

 

 

Infrastruktur / Entfernungen

Gesundheit
Arzt <100m
Apotheke <300m
Klinik <1.225m
Krankenhaus <1.250m

Kinder & Schulen
Schule <325m
Kindergarten <100m
Universität <2.025m
Höhere Schule <1.100m

Nahversorgung
Supermarkt <125m
Bäckerei <225m
Einkaufszentrum <675m

Sonstige
Geldautomat <925m
Bank <925m
Post <425m
Polizei <1.125m

Verkehr
Bus <200m
U-Bahn <1.625m
Straßenbahn <200m
Bahnhof <550m
Autobahnanschluss <550m

Angaben Entfernung Luftlinie / Quelle: OpenStreetMap
Beschreibung weiterlesen

Lage und Verkehrsanbindung

Nähe: Prager Straße, Anton-Bosch-Gasse, Deublergasse, FAC Platz, Lorettowiese, Aupark Jedlesee, Neue Donau, S-Bahn Jedlersdorf, Straßenbahn Linie 26 Hopfengasse

Shopping Center Nord, Bahnhof Floridsdorf, Denglerpark

Energieeffizienz

HWB:
30,75 kWh/(m²*a)
HWB Klasse:
B
fGEE:
0,83
fGEE Klasse:
A
Energieausweisart:
Energiebedarfs-ausweis

Grundriss

Lageplan

1210 Wien | Wien 21., Floridsdorf

Lade...
Stefan Djukic

Stefan Djukic
Immobilienvermittlung

teamneunzehn-Gruppe

Lade...

Fotomix

Bild 1 Bild 2 Bild 3 Bild 4 Bild 5 Bild 6 Bild 7 Bild 8 Bild 9 Bild 10 Bild 11 Bild 12 Bild 13 Bild 14 Bild 15 Bild 16 Bild 17 Bild 18 Bild 19 Bild 20 Bild 21 Bild 22 Bild 23 Bild 24