NEU - Klein, fein & voller Chancen – Ihr Einstieg in den 17. Bezirk Sanierungsbedürftig

Wohnung zum Kauf in 1170 Wien - Kaufpreis: 69.000 € / Objektnummer: 247/21220
Ausstattung: Fahrstuhl Fernwärme
Haus II
Zimmer 1
Vorraum 1
Zimmer 1_1
Dusche
Zimmer 1_2
Vorraum 1_1
Haus I
Innenhof
Lift
Stiegenhaus
Stiegenhaus III
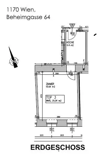
Plan Top 3
Lageplan

Preisinformationen

Kaufpreis:
69.000 €
Kaufpreis/m²
2.755,59 €
Preisinfos:
GrESt 3,5% + Grundbucheintragung 1,1% des Gesamtkaufpreises / Vertragserrichtung 1,5% + Barauslagen, Beglaubigungs-, ggf. Treuhandkosten bei Finanzierung +USt. (WeiKes RA) / WE-Begründungsbeitrag € 500 +USt. / Provisio…
Vermittlungsprovision:
Ja
Provision:
3%

Fakten

Objektnummer:
247/21220
Objekttyp:
Wohnung
Wohnfläche:
25,04 m²
Zimmer:
1
Badezimmer:
1
Baujahr:
1900/san.Altbau
Altbau:
Ja
Verfügbarkeit:
Verfügbar

Beschreibung

In attraktiver Lage des 17. Bezirks gelangen in der Beheimgasse mehrere Wohnungen zum Einzelabverkauf. Das Angebot umfasst überwiegend unbefristet und befristet vermietete sowie einige leerstehende Einheiten mit Wohnflächen von ca. 25 m² bis 112 m²; Dachgeschosswohnungen verfügen über Freiflächen. Die ca. 25 m² große 1-Zimmer-Wohnung (Vorraum mit Küche und Dusche, 1 Zimmer) befindet sich im Erdgeschoss eines gepflegten Gründerzeithauses, das 2008 saniert und ausgebaut wurde. Sie bietet – kurz-, mittel- und langfristig eine absolute Vorteilslage! Die Hardfacts: - praktische Raumaufteilung - Küche mit Duschgelegenheit - Gang-WC (Kategorie D) - Aufzug vorhanden, barrierefrei erreichbar - Kellerabteil, ca. 5 m² - Kinderwagen- und Fahrradraum - Fernwärmeheizung - sofort verfügbar / Leerstand Lage-Highlights: - Grün & Erholung: Christine-Nöstlinger-Park direkt ums Eck – ideal für Spaziergänge, Sport und Freizeit - Öffentliche Anbindung: Straßenbahnlinien 43 und 9 in Gehweite, schnelle Verbindung ins Stadtzentrum - Nahversorgung & Alltag: Supermärkte, Bäckereien, Apotheken, Cafés und Restaurants zu Fuß erreichbar - Lokale Atmosphäre: Ruhige Wohnstraße mit typischem 17. Bezirk-Charme und lebendiger Nachbarschaft Der Kaufpreis für diese in ausgezeichneter Lage und Infrastruktur befindliche Eigentumswohnung beträgt Euro 69.000,-. Vereinbaren Sie noch heute einen Besichtigungstermin und lassen Sie sich von dieser besonderen Immobilie verzaubern. Diesbezüglich freuen wir uns über Ihre geschätzte Anfrage per Mail. Tipp: Die gesamte Anlage wird gerade parifiziert und abverkauft. Fragen Sie uns nach weiteren Objekten bzw. Paketangeboten! Wir möchten darauf hinweisen, dass unsere Antwort möglicherweise in Ihrem Spamordner landen könnte. Bitte kontrollieren Sie diesen, wenn Sie keine Rückmeldung auf Ihre Anfrage erhalten haben. Wir freuen uns auf Ihre Anfrage und einen gemeinsamen Besichtigungstermin!
Beschreibung weiterlesen

Lage und Verkehrsanbindung

Elterleinplatz

Energieeffizienz

HWB:
103,2 kWh/(m²*a)
HWB Klasse:
D
fGEE:
1,79
fGEE Klasse:
D

Grundrisse

Ruschitzka-Schilhorn Marion

Ruschitzka-Schilhorn Marion

IMV Immobilienmakler

Lade...

Fotomix

Haus II Zimmer 1 Vorraum 1 Zimmer 1_1 Dusche Zimmer 1_2 Vorraum 1_1 Haus I Innenhof Lift Stiegenhaus Stiegenhaus III