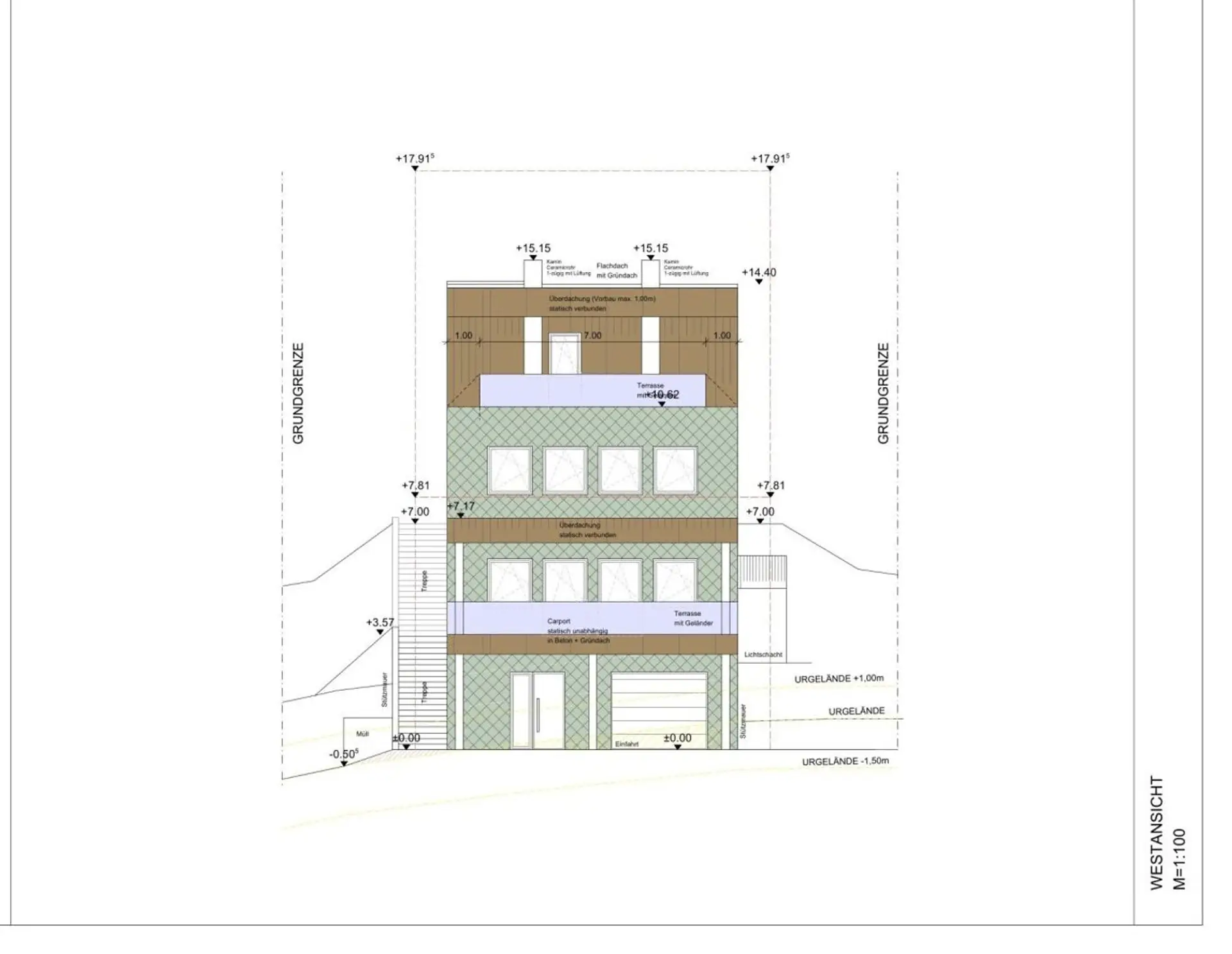
Klosterneuburg - Nähe Wien: Grundstück mit Baubewilligung für eine Luxusvilla in begehrter Lage im Wienerwald!

Grundstück zum Kauf in 3400 Klosterneuburg - Kaufpreis: 1.390.000 €
Ausstattung: Außenparkplatz

Preisinformationen

Kaufpreis:
1.390.000 €
Vermittlungsprovision:
Ja

Fakten

Objekttyp:
Grundstück
Nutzfläche:
300 m²
Grundstücksfläche:
1.528 m²
Neubau:
Ja
Verfügbarkeit:
Verfügbar

Beschreibung

Grundstück mit bereits baubewilligter Einreichplanung für eine Villa in Klosterneuburg! Möchten Sie gerne mitten im beliebten Wienerwaldgebiet, eingebettet in ein großes parkähnliches Grundstück, mit dem höchsten Ma…

Immobilien-Galerie

Lade...

Fotomix

Bild 1 Bild 2 Bild 3 Bild 4 Bild 5