NEU - Lebenswert wohnen mitten in Ohlsdorf (Top 6)

Wohnung zum Kauf in 4694 Ohlsdorf - Kaufpreis: 495.900 € / Objektnummer: 1068/4960
Ausstattung: Fahrstuhl Terrasse Garten

Preisinformationen

Kaufpreis:
495.900 €

Fakten

Objektnummer:
1068/4960
Objekttyp:
Wohnung
Terrasse:
1
Keller Fläche:
3,86 m²
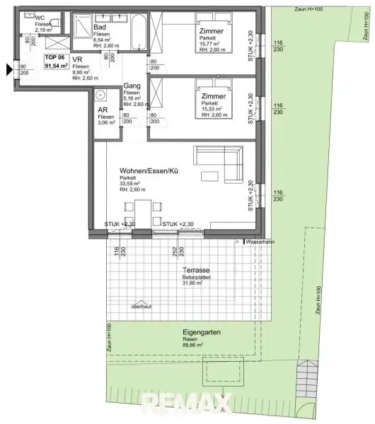
Wohnfläche:
91,54 m²
Gartenfläche:
89,86 m²
Zimmer:
3
Badezimmer:
1
Toilette:
1
Baujahr:
2025
Zustand:
Erstbezug
Verfügbarkeit:
Verfügbar

Beschreibung

_Zentral. Zeitgemäß. Zuhause. – 12 Neubauwohnungen in Ohlsdorf, Angerweg 2_
 

Zur Wohnung:

Top 6 ist eine großzügige 3-Zimmer-Wohnung im Erdgeschoss, die mit einem großen Garten und einer großzügigen Terrasse punktet. Der offene Wohn-Küchenbereich schafft eine moderne und lichtdurchflutete Atmosphäre. Mit einer attraktiven Ost-West-Ausrichtung profitieren Sie von optimaler Belichtung. Das Badezimmer ist mit sowohl einer Dusche als auch einer Badewanne ausgestattet, das WC ist separat. Ein Abstellraum mit Waschmaschinenanschluss bietet praktischen Stauraum.

Zum Projekt:

Wer zeitgemäßes Wohnen in Gehweite zum Ohlsdorfer Zentrum sucht, wird am Angerweg fündig. Das Projekt umfasst 12 hochwertige Wohnungen, die durch ihre intelligente Raumaufteilung und die ruhige, aber dennoch zentrale Lage überzeugen. Ein ideales Zuhause für alle, die kurze Wege im Alltag lieben.

Was Sie erwartet:
• Zentrale Lage: In wenigen Gehminuten mitten im Ortskern – Einkauf, Schule, Nahversorger direkt ums Eck
• Moderne Ausstattung: Edle Parkettböden, stilvolle Fliesen

• Fußbodenheizung & energieeffiziente Luftwärmepumpe
• Wohnkomfort für jeden Anspruch: Von 42 m² bis 110 m² – ideal für Singles, Paare oder Familien
• Großzügige Terrassen oder Eigengärten für entspannte Stunden im Grünen
• Komfortabel & barrierefrei: Lift in alle Etagen, Tiefgarage für stressfreies Parken
• Gestaltungsfreiraum: Jetzt noch mitplanen und Ihre Wünsche einbringen
• Baustart bei 50 % Verkaufsquote – jetzt vor Baustart sichern und noch mitgestalten!

Lebenswert wohnen – mitten in Ohlsdorf
Wohnen Sie naturnah und dennoch bestens angebunden: Die Autobahn erreichen Sie in wenigen Minuten, Erholung bieten Traunsee, Traunstein und zahlreiche Freizeitangebote der Region.

Direkt vom Bauträger – provisionsfrei für Käufer
Jetzt informieren und Wohntraum sichern:
📞 Persönlich berät Sie Sabine Wenzel (0676 300 40 62) und Christian Sammer (0650 31 71 003)
🌐 Alle Details unter: www.angerweg-zwei.at

Zuhause ankommen. Im Herzen von Ohlsdorf.

Infrastruktur / Entfernungen

Gesundheit
Arzt <500m
Apotheke <2.500m
Krankenhaus <5.500m
Klinik <3.000m

Kinder & Schulen
Schule <500m
Kindergarten <500m

Nahversorgung
Supermarkt <500m
Bäckerei <500m
Einkaufszentrum <4.500m

Sonstige
Bank <500m
Geldautomat <500m
Post <500m
Polizei <3.000m

Verkehr
Bus <500m
Straßenbahn <4.500m
Bahnhof <4.000m
Autobahnanschluss <4.000m
Flughafen <5.500m

Angaben Entfernung Luftlinie / Quelle: OpenStreetMap
Beschreibung weiterlesen

Lage und Verkehrsanbindung

Angerweg

Energieeffizienz

HWB:
40 kWh/(m²*a)
Energieausweisart:
Energiebedarfs-ausweis

Grundrisse

Lageplan

4694 Ohlsdorf | Gmunden

Lade...
Christian Sammer

Christian Sammer
staatl. geprüfter Immobilientreuhänder - Makler

Traunsee Immobilien

Lade...

Fotomix

Visualisierung Visualisierung Visualisierung Zentrale Lage! Visualisierung Innenansicht Visualisierung Innenansicht Visualisierung Badezimmer Top 6 Visualisierung Badezimmer Top 6 Visualisierung Badezimmer Top 6