Lindengasse: Großzügige 97m² Lagerfläche Nähe Spittelberg - 1070 Wien

Lager zur Miete in 1070 Wien / Objektnummer: 7795
Ausstattung:

Preisinformationen

Gesamtmiete (exkl. USt.):
864,30 € / Monat
Betriebskosten netto:
184,30 € / Monat
Umsatzsteuer:
172,86 €
Kaution:
3.200,00 €

Fakten

Objektnummer:
7795
Objekttyp:
Lager
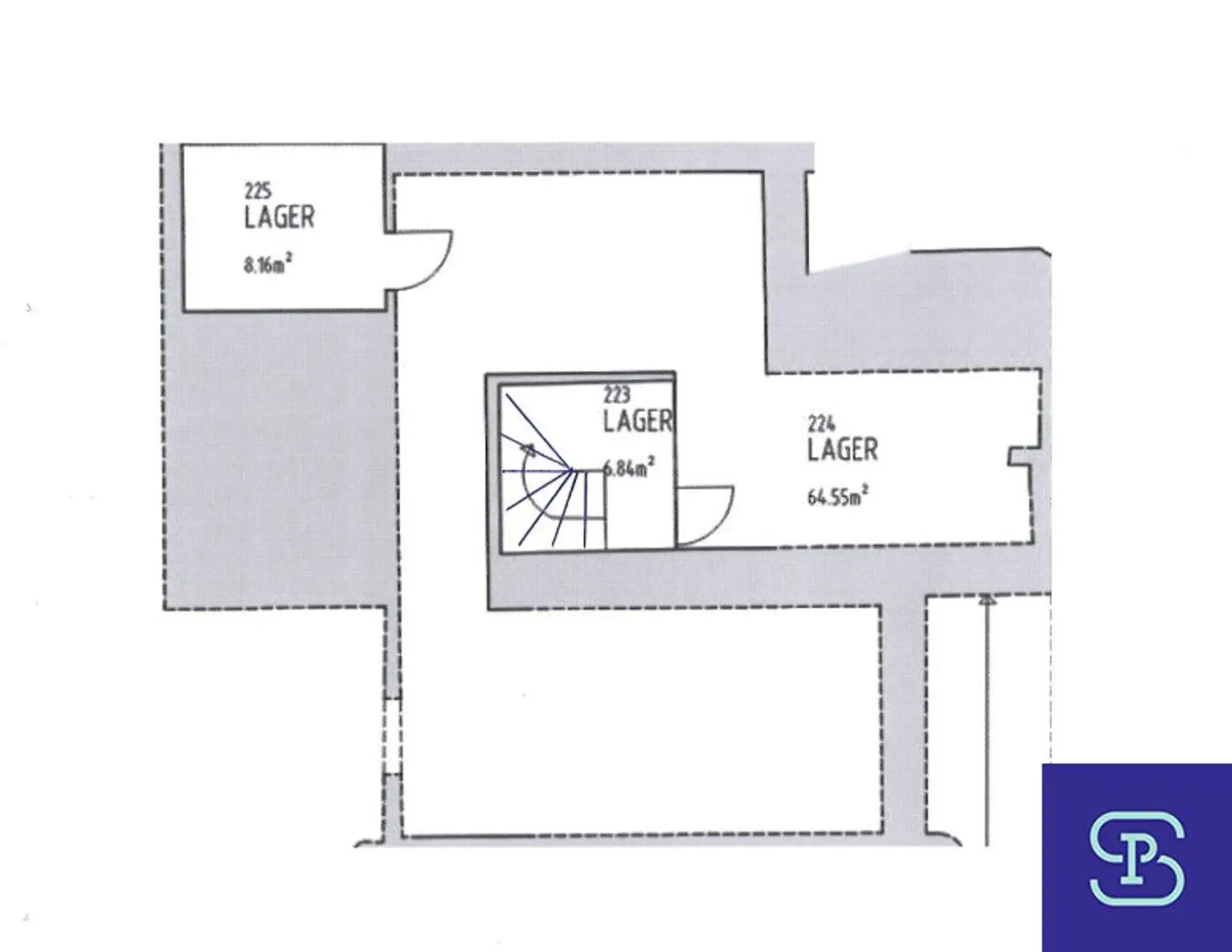
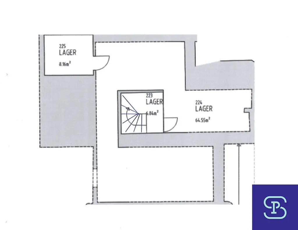
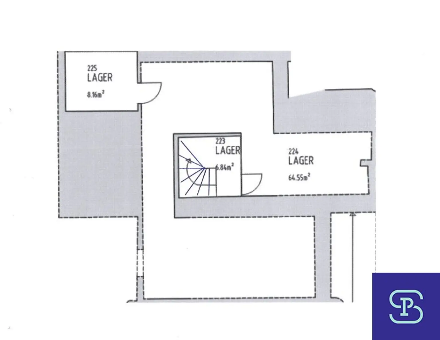
Nutzfläche:
97 m²
Lagerfläche:
97 m²
Stockwerk:
-1
Baujahr:
1910
Altbau:
Ja
Zustand:
Gepflegt
Verfügbarkeit:
Verfügbar
Verfügbar ab:
sofort

Beschreibung

Gepflegte 97m² Lagerfläche Nähe Mariahilfer Straße und Spittelberg! 

Die angebotene Lagerfläche mit hofseitigem Zugang befindet sich im Souterrain eines gepflegten Stilaltbaus in der Lindengasse, nur wenige Schritte von der Stiftgasse und vom Spittelberg entfernt. Der Zugang zum Vorraum im EG erfolgt über eine Rampe, die Lagerfläche im Souterrain ist danach über eine Stiege erreichbar. 

Sehr gute und zentrale Lage zwischen Spittelberg und Mariahilfer Straße. Hervorragende Infrastruktur durch die Nähe zur Mariahilfer Straße mit allen Einkaufsmöglichkeiten und sehr guter öffentlicher Verkehrsanbindung durch U3/U2 in Gehweite, Autobus 13A, 48A sowie der Straßenbahnlinie 49.

Bitte geben Sie bei Ihrer Anfrage unbedingt die geplante Nutzung/Branche an!

Die Lagerfläche wird ab sofort in befristeter Hauptmiete (10 Jahre) vermietet.
Gesamtmiete inkl. Bk und 20% USt. € 1.037,16
(HMZ € 680,- + Bk € 184,30 + 10% USt. € 172,86)
Kaution € 3.200,-
Vermittlungshonorar 3MM (€ 2.592,90 zuzügl. 20% USt.) 

KONTAKT: Anfragen bitte nur per Email-Anfragefunktion! Keine telefonische Terminvergabe!

Besuchen Sie für unsere weiteren Angebote bitte auch unsere Homepage: www.sitarz.at [http://www.sitarz.at] _ _

_Der Mieter zahlt im Erfolgsfall an die Firma Sitarz & Partner Immobilien GmbH eine Maklerprovision in Höhe von 1 Nettomonatsmiete zzgl. 20% USt. bei einer Befristung von weniger als 2 Jahren, bzw. 2 Nettomonatsmieten zzgl. 20% USt. bei einer Befristung von mehr als 2 Jahren, jedoch nicht mehr als 3 Jahren. Bei einer Befristung über 3 Jahren sowie bei unbefristeten Verträgen sind 3 Nettomonatsmieten zzgl. 20% USt. fällig. Die Provision errechnet sich aus der im Mietvertrag vereinbarten Nettomiete inkl. Betriebskosten. Ausdrücklich vereinbart wird dieser Provisionsanspruch in gleicher Höhe auch für die in § 15 MaklerG vorgesehenen Fälle (Unterlassung eines notwendigen Rechtsaktes wider Treu und Glauben, Abschluss eines zweckgleichen Geschäftes, Abschluss mit einem Dritten aufgrund der Weitergabe der Abschlussmöglichkeit, Ausübung eines Vorkaufs-, Wiederkaufs- oder Eintrittsrechtes). Falls Ihnen dieses Objekt bereits als verkauf- oder vermietbar bekannt ist, ersuchen wir innerhalb von 3 Werktagen um Ihre schriftliche Nachricht, ansonsten gilt die Provisionsregelung als vereinbart. Bei den Größen und Ertragsangaben handelt es sich um die von Abgeber/in (Eigentümer/in bzw. Hausverwaltung) zur Verfügung gestellten Informationen. Die Angaben wurden von uns kontrolliert, eine Gewähr für die Richtigkeit, Vollständigkeit und Letztstand müssen wir allerdings ausschließen. Es wird darauf hingewiesen, dass zwischen dem Abgeber und dem Immobilienmakler ein wirtschaftliches bzw. familiäres Nahverhältnis besteht und der Immobilienmakler auch für diesen tätig ist (Doppelmakler)._

Hinweis gemäß Energieausweisvorlagegesetz: Ein Energieausweis wurde vom Eigentümer bzw. Verkäufer, nach unserer Aufklärung über die generell geltende Vorlagepflicht, sowie Aufforderung zu seiner Erstellung noch nicht vorgelegt. Daher gilt zumindest eine dem Alter und der Art des Gebäudes entsprechende Gesamtenergieeffizienz als vereinbart. Wir übernehmen keinerlei Gewähr oder Haftung für die tatsächliche Energieeffizienz der angebotenen Immobilie.

Wir weisen darauf hin, dass zwischen dem Vermittler und dem zu vermittelnden Dritten ein familiäres oder wirtschaftliches Naheverhältnis besteht.

Der Vermittler ist als Doppelmakler tätig.

Infrastruktur / Entfernungen

Gesundheit
Arzt <500m
Apotheke <500m
Klinik <500m
Krankenhaus <1.500m

Kinder & Schulen
Schule <500m
Kindergarten <500m
Universität <500m
Höhere Schule <1.000m

Nahversorgung
Supermarkt <500m
Bäckerei <500m
Einkaufszentrum <500m

Sonstige
Geldautomat <500m
Bank <500m
Post <500m
Polizei <500m

Verkehr
Bus <500m
U-Bahn <500m
Straßenbahn <500m
Bahnhof <500m
Autobahnanschluss <4.500m

Angaben Entfernung Luftlinie / Quelle: OpenStreetMap
Beschreibung weiterlesen

Lage und Verkehrsanbindung

Lindengasse

Stiftgasse

Grundrisse

Lageplan

1070 Wien | Wien 7., Neubau

Lade...
Anna Sitarz

Anna Sitarz

Sitarz & Partner Immobilien GmbH

Lade...

Fotomix

Bild 1 Bild 2 Bild 3 Bild 4 Bild 5 Bild 6 Bild 7 Bild 8 Bild 9 Bild 10 Bild 11 Bild 12 Bild 13