NEU - Logistikflächen in top Lage zu mieten

Lager zur Miete in 2460 Bruck an der Leitha / Objektnummer: 17617
Ausstattung:

Preisinformationen

Miete/m² netto:
6,50 €
Vermittlungsprovision:
Ja

Fakten

Objektnummer:
17617
Objekttyp:
Lager
Nutzfläche:
15.994 m²
Bürofläche:
600 m²
Lagerfläche:
13.396 m²
Gesamtfläche:
15.994 m²
Verfügbarkeit:
Verfügbar

Beschreibung

Der Logistik Park Bruck A4 ist eine moderne Logistikentwicklung auf einem ehemaligen Industrieareal. Das Projekt wurde unter Berücksichtigung ökologischer Standards realisiert und verfügt über eine Zertifizierung nach ÖGNI Gold.

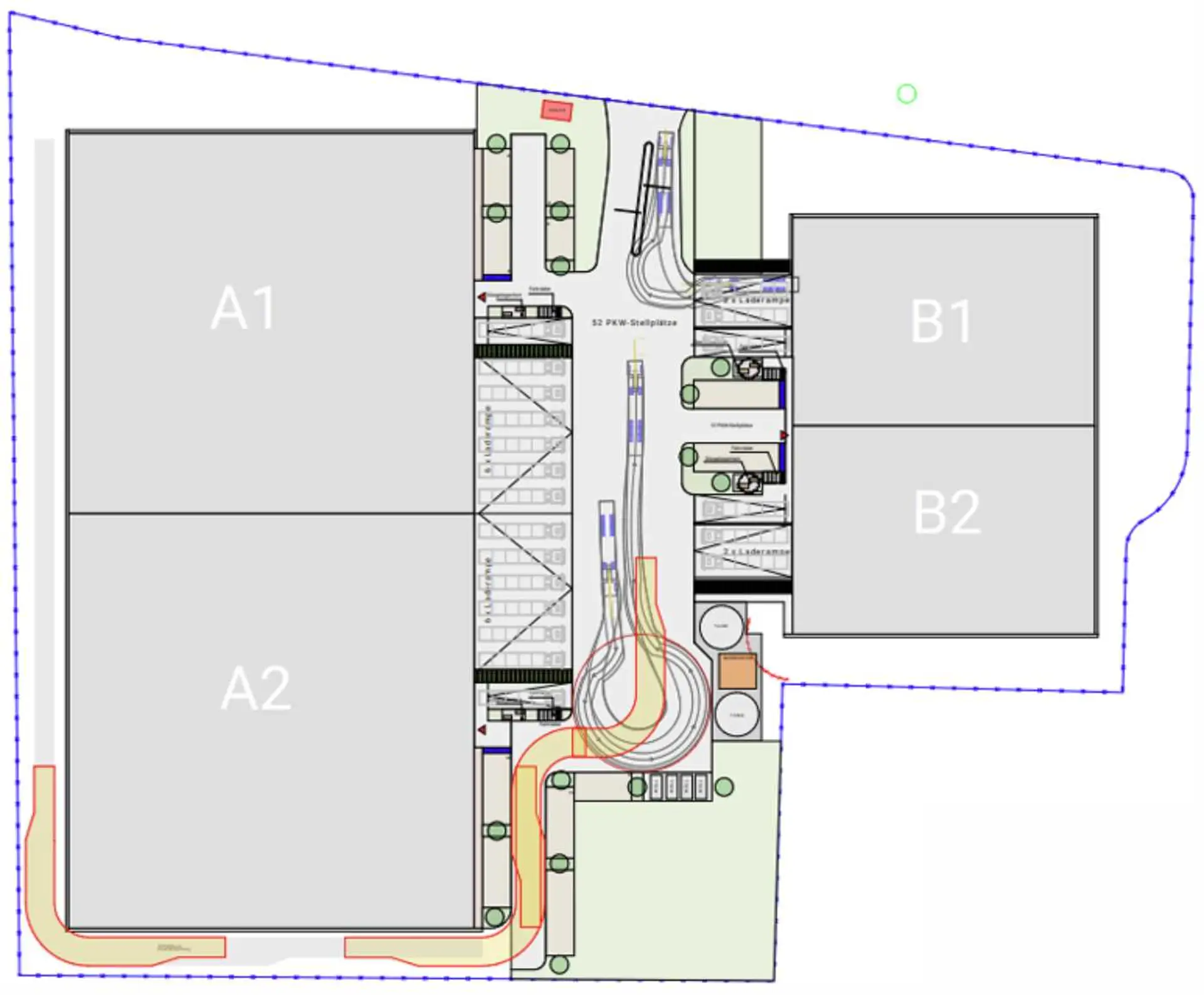
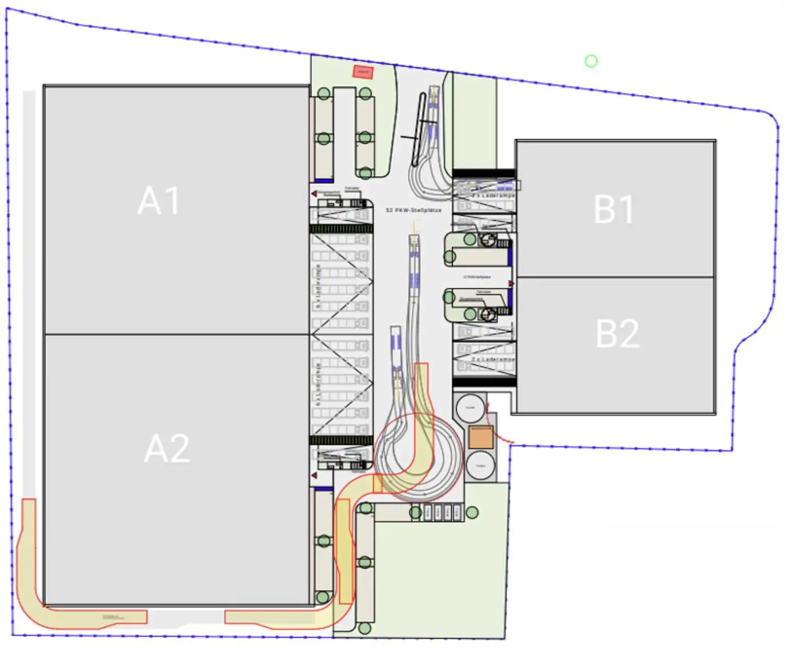
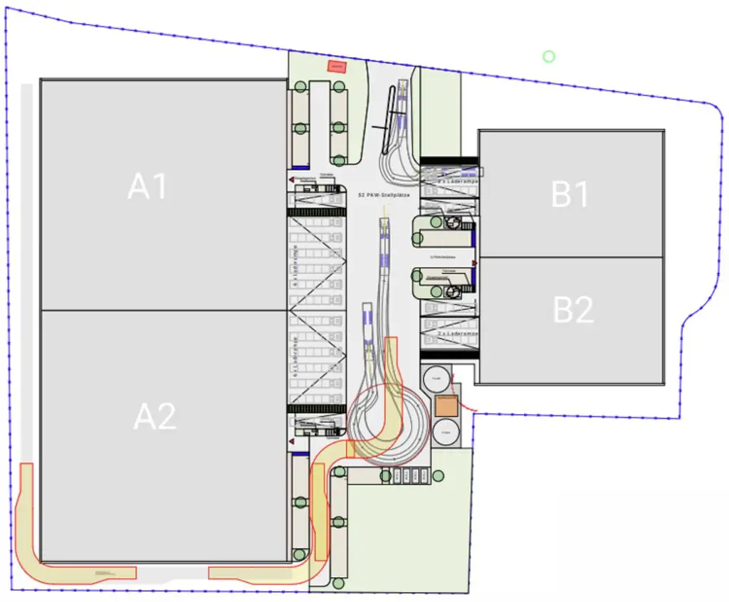
Die Anlage besteht aus zwei Gebäuden, die insgesamt vier Einheiten umfassen. In den Hallen können Größen von ca. 1.800m bis hin zu ca. 9.500m realisiert werden. Neben den Lagerflächen bietet das Objekt integrierte Mezzanine-Ebenen sowie moderne Büro- und Sozialflächen. Die Gestaltung der Außenanlagen ist auf die Förderung der lokalen Biodiversität sowie die Qualität des Arbeitsumfelds ausgerichtet.
Beschreibung weiterlesen

Lage und Verkehrsanbindung

Die Liegenschaft befindet sich im Industriegelände West in Bruck an der Leitha. Die strategische Bedeutung des Standorts ergibt sich aus der Lage unmittelbar am Knotenpunkt der Ostautobahn A4 und der Nordostautobahn A6. Diese Positionierung macht den Standort zu einer zentralen Schnittstelle im Wirtschaftsdreieck Wien Bratislava Budapest.

Verkehrsanbindung:
Autobahn: Die Anschlussstelle zur A4 ist in ca. 3 Minuten erreichbar und bietet eine direkte Verbindung zum überregionalen Autobahnnetz (A1, A2 und S1).
Flughafennähe: Der Flughafen Wien-Schwechat liegt etwa 15 Minuten entfernt, der Flughafen Bratislava rund 39 Minuten.
Zentren: Die Wiener Innenstadt ist in ca. 32 Minuten erreichbar, Bratislava in ca. 34 Minuten.

Grundrisse

Fabian Muzik

Fabian Muzik

Modesta Real Estate

Lade...

Fotomix

Bild 1 Bild 2 Bild 3 Bild 4 Bild 5 Bild 6 Bild 7 Bild 8 Bild 9 Bild 10 Bild 11 Bild 12