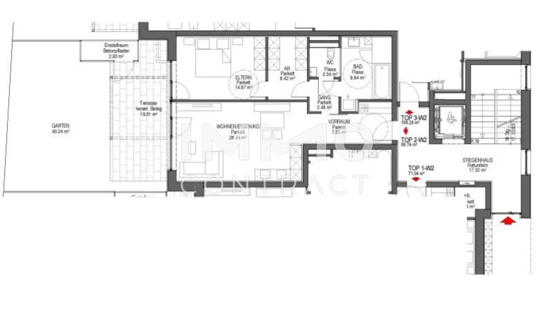
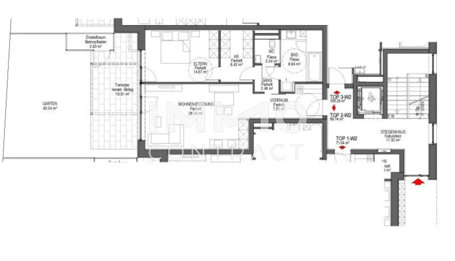
NEU - Mehr Als Wohnen ENTFALTEN SIE IHRE WOHNTRÄUME Wohnung WB 2 Top 2 EG 68,74 m² mit Terrasse u. Garten

Wohnung zum Kauf in 3251 Purgstall - Kaufpreis: 279.000 € / Objektnummer: 1939/129409
Ausstattung: Barrierefrei Boden Fahrstuhl Abstellraum Fernwärme Fußbodenheizung Terrasse Garten
2
1
3
4
Bilder für Willhaben neutral_neu3
5
6
7
8
9
10
11
12
Plan
Bilder für Willhaben neutral_neu2

Preisinformationen

Kaufpreis:
279.000 €
Kaufpreis/m²
3.558,67 €
Provision:
Provision bezahlt der Abgeber.

Fakten

Objektnummer:
1939/129409
Objekttyp:
Wohnung
Terrasse:
1
Keller Fläche:
14,79 m²
Wohnfläche:
68,74 m²
Gartenfläche:
40 m²
Zimmer:
2
Badezimmer:
1
Toilette:
1
Baujahr:
2022
Zustand:
Erstbezug
Verfügbarkeit:
Verfügbar

Beschreibung

Mehr Als Wohnen
ENTFALTEN SIE IHRE WOHNTRÄUME

Die sehr gut aufgeteilten 2 bis 4 Zimmerwohnungen können von der hauseigenen Tiefgarage, barrierefrei erreicht werden. Nach einem anstrengenden Arbeitstag, können Sie auf der großzügigen Wohnungseigenenterrasse die Seele baumeln lassen. Die Fassadenbegrünung der Wohnhäuser ist ein echter Blickfang.

Vorteile im Überblick
WOHNEN IN PURGSTALL

Modernste Bauweise: Niedrige Betriebskosten
Ihre zukünftige Wohnung verfügt über eine Wohnraumlüftung mit Wärmerückgewinnung, biogene Fernwärme und einer Photovoltaikanlage für geringe Kosten bei höchstem Lebensstandard! Dachgeschosswohnungen mit Klimaanlage ausgestattet.

Mit Terrasse oder Garten
Erleben Sie das Beste aus beiden Welten: Eine Eigentumswohnung mit Terrasse/Loggia oder Garten für jede Einheit.

TOP Ausstattung
Die Wohnungen verfügen über hochwertige Ausstattung wie Balkon oder Terrasse, Holz/Alu Fenster, Fahrstuhl, hochwertige Parkettböden, schneller Glasfasernetzwerk und Spielplatz, Garagenplatz gegen Mehrpreis.

Auch als Anlageobjekt
Sorgen Sie mit Immobilien zur Weitervermietung vor und profitieren Sie von den regelmäßigen Einnahmen durch Mieterträge und Renditen.

Lage - Mitten im Grünen
Ein Teil der Wohnung hat direkten Ausblick auf den Ötscher bzw. Maria Taferl und alles in Gehweite (Arzt, Zug, Restaurants, Bars, Supermärkte, Schule, und Kindergarten etc.)

Entdecken Sie eine exklusive Auswahl an traumhaften Eigentumswohnungen: Genaue Informationen bei schriftlicher Anfrage!
Von stilvollen Studios bis hin zu großzügigen Penthouse-Suiten bieten wir Ihnen vielfältige Wohnmöglichkeiten mit modernem Design, hochwertigen Ausstattungen und atemberaubenden Ausblicken.
Wohnung WB 2 Top 2 mit Garten
Zimmer 2
Wohnfläche 68,64 m²
Geschoss EG
Gartenhütte + Terrasse + Garten
Garten 40 m² Terrasse 19 m²
Kellerabteil 14,79 m² und Müllraum vorhanden
Grundriss in der Beilage
Garagenplätze und Stellplätze können zusätzlich erworben werden!

Kaufpreis: € 279.000,-

Infrastruktur / Entfernungen

Gesundheit
Arzt <500m
Apotheke <1.000m
Krankenhaus <6.000m
Klinik <500m

Kinder & Schulen
Schule <500m
Kindergarten <1.000m
Universität <9.000m

Nahversorgung
Supermarkt <500m
Bäckerei <500m
Einkaufszentrum <500m

Sonstige
Bank <500m
Geldautomat <500m
Post <1.000m
Polizei <1.000m

Verkehr
Bus <500m
Bahnhof <500m
Autobahnanschluss <8.000m

Angaben Entfernung Luftlinie / Quelle: OpenStreetMap
Beschreibung weiterlesen

Lage und Verkehrsanbindung

Zentrum von Purgstall

Energieeffizienz

HWB:
51 kWh/(m²*a)
HWB Klasse:
A
fGEE:
0,51
fGEE Klasse:
A
Energieausweisart:
Energiebedarfs-ausweis
Gültig bis:
09.10.2034

Lageplan

3251 Purgstall | Scheibbs

Lade...
Josef Brunner

Josef Brunner
Regionalmanager NÖ West - Immobilienmakler

IMMOcontract Immobilien Vermittlung GmbH

Lade...

Fotomix

2 1 3 4 Bilder für Willhaben neutral_neu3 5 6 7 8 9 10 11 12 Plan Bilder für Willhaben neutral_neu2