NEU - Modernes, helles, barrierefreies Büro mit zentralem Besprechungsraum

Immobilie zur Miete in 1140 Wien / Objektnummer: 6651
Ausstattung: Barrierefrei Rollstuhlgerecht Boden Fahrstuhl Klimaanlage Fernwärme

Preisinformationen

Gesamtmiete (exkl. USt.):
3.789,60 € / Monat
Betriebskosten netto:
866,36 € / Monat
Umsatzsteuer:
757,92 €
Kaution:
3 Bruttomonatsmieten
Vermittlungsprovision:
Ja
Provision:
3 Bruttomonatsmieten zzgl. 20% USt.

Fakten

Objektnummer:
6651
Nutzfläche:
228 m²
Zimmer:
5
Toilette:
2
Stockwerk:
1
Baujahr:
2013
Neubau:
Ja
Zustand:
Neuwertig
Verfügbarkeit:
Verfügbar

Beschreibung

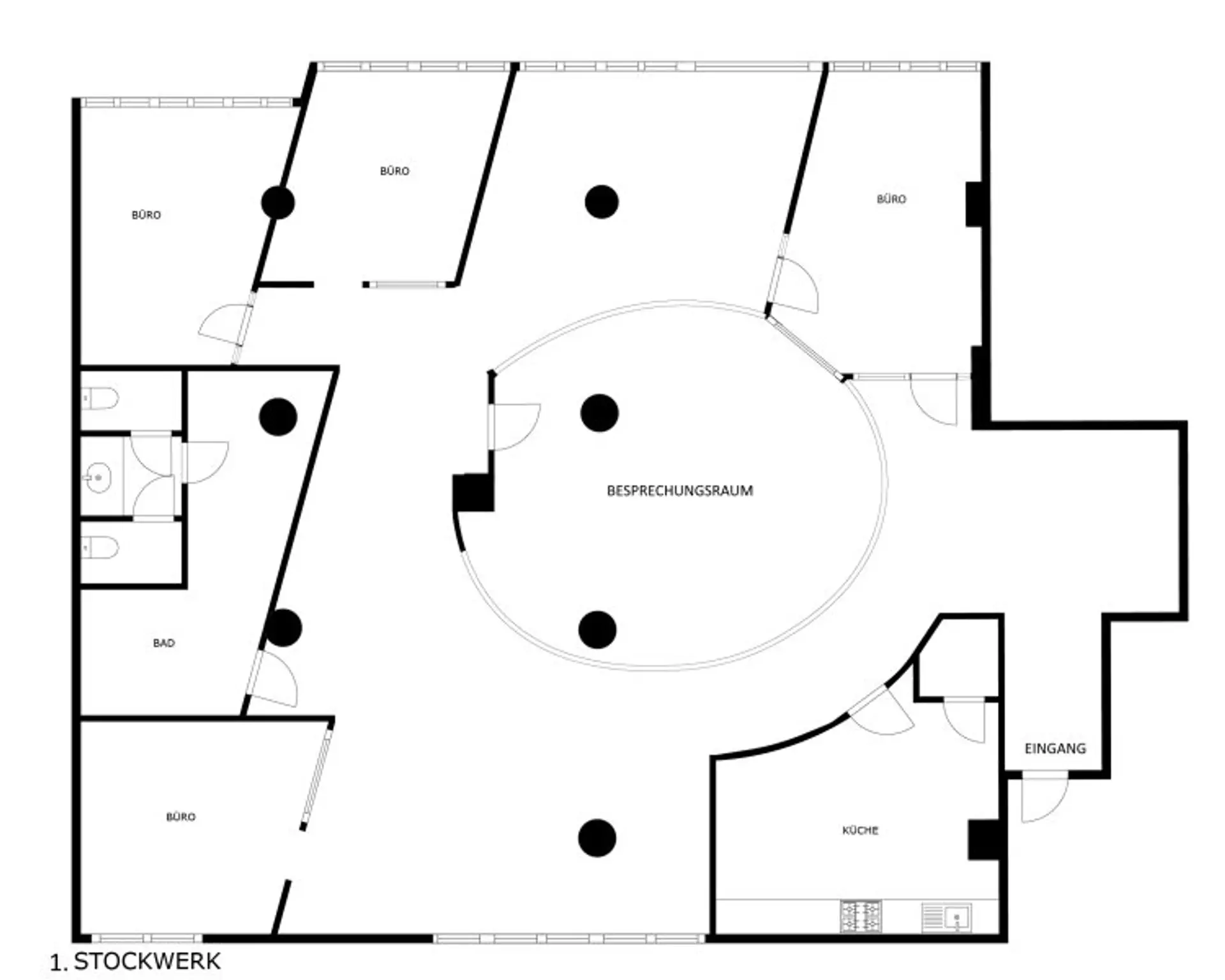
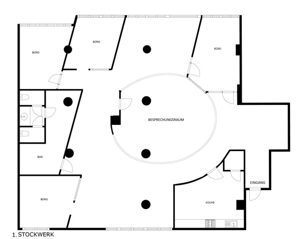
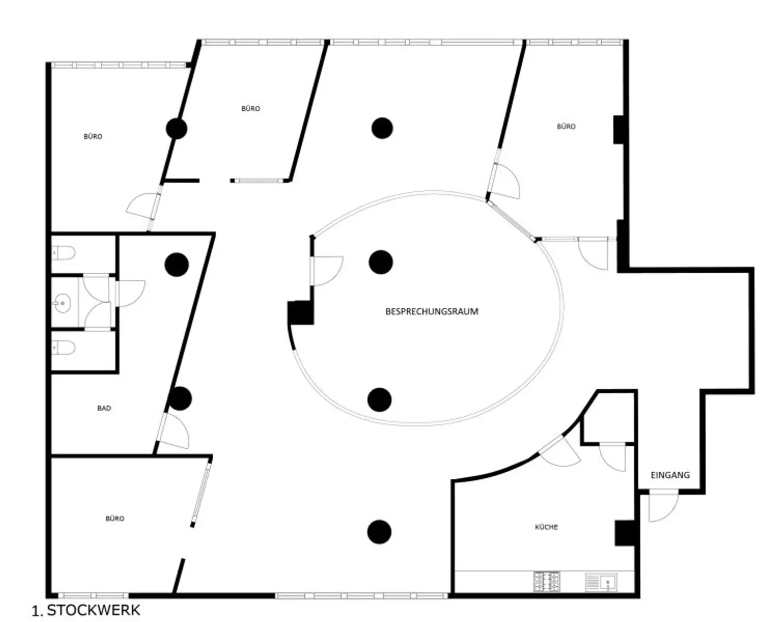
Moderne Büro- oder Praxisfläche mit zentralem Besprechungsraum und barrierefreiem Zugang

Diese ca. 228 m² große Büro- bzw. Praxisfläche im 1. Obergeschoß bietet eine klare Raumstruktur für Unternehmen und Freiberufler mit Bedarf an mehreren Arbeitsräumen und einem zentralen Besprechungsbereich. Die Einheit eignet sich besonders für Ordinationen, Therapie, Beratung, Kanzleien oder moderne Dienstleistungsunternehmen.

Die Fläche ist hell, neuwertig und funktional ausgestattet.

Vorhanden sind Glastrennwände, Klimaanlage, EDV-Verkabelung, Einbauküche, 2 WCs, Lift sowie barrierefreier Zugang.

Die Lage auf der Hütteldorfer Straße überzeugt durch direkte Nähe zu U-Bahn, Bus, Straßenbahn und Bahnhof. Sofort beziehbar, unbefristete Anmietung möglich.

Herr Manuel Plachner, MSc MRICS_, Mobil: _, Mail: _m.plachner@advanta.at_, steht für ein persönliches Gespräch sowie für einen Besichtigungstermin gerne zur Verfügung._

Infrastruktur / Entfernungen

Gesundheit
Arzt <250m
Apotheke <250m
Klinik <1.250m
Krankenhaus <1.500m

Kinder & Schulen
Schule <500m
Kindergarten <250m
Universität <1.000m
Höhere Schule <1.250m

Nahversorgung
Supermarkt <250m
Bäckerei <250m
Einkaufszentrum <750m

Sonstige
Geldautomat <250m
Bank <250m
Post <500m
Polizei <750m

Verkehr
Bus <250m
U-Bahn <250m
Straßenbahn <250m
Bahnhof <250m
Autobahnanschluss <4.750m

Angaben Entfernung Luftlinie / Quelle: OpenStreetMap
Beschreibung weiterlesen

Energieeffizienz

HWB:
40 kWh/(m²*a)
HWB Klasse:
B
fGEE:
0,72
fGEE Klasse:
A
Energieausweisart:
Energiebedarfs-ausweis

Grundriss

Lageplan

1140 Wien | Wien 14., Penzing

Lade...
Manuel Plachner

Manuel Plachner
Geschäftsführer

ADVANTA – Immobilienvermittlungs GmbH

Lade...

Fotomix

Bild 1 Bild 2 Bild 3 Bild 4 Bild 5 Bild 6 Bild 7