NEU - Möblierte 3-Zimmer Altbauwohnung mit Balkon | 93 m² | 1030 Wien

Wohnung zum Kauf in 1030 Wien - Kaufpreis: 720.000 € / Objektnummer: 1124/1236
Ausstattung: Boden Bad Möbliert Balkon

Preisinformationen

Kaufpreis:
720.000 €
Betriebskosten netto:
236,88 € / Monat

Fakten

Objektnummer:
1124/1236
Objekttyp:
Wohnung
Balkon:
1
Balkonfläche:
3,28 m²
Wohnfläche:
93 m²
Zimmer:
3
Badezimmer:
1
Toilette:
1
Stockwerk:
-2
Baujahr:
1900
Letzte Sanierung:
2015
Verfügbarkeit:
Verfügbar

Beschreibung

MÖBLIERTE 3-ZIMMER ALTBAUWOHNUNG MIT BALKON | 93 M² | 1030 WIEN

Zum Verkauf steht eine stilvolle, möblierte 3-Zimmer-Altbauwohnung mit Balkon im 2. Obergeschoss eines vollständig renovierten Altbaus mit Lift im beliebten 3. Wiener Bezirk (Landstraße).

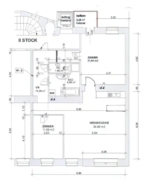
Die Wohnung verfügt über eine Wohnfläche von ca. 93 m², drei helle Zimmer sowie einen Balkon (ca. 3,3 m²) mit Blick in den ruhigen Innenhof.

Das Gebäude wurde 2015 umfassend renoviert, inklusive Einbau eines Aufzugs.

 

Eckdaten

Wohnfläche: ca. 93 m²
Balkon: ca. 3,3 m²

Zimmer: 3
Schlafzimmer: 2
Badezimmer: 1
WC: 1 separat

Stockwerk: 2. OG
Lift: ja

Keller: 2 Kellerabteile (ca. 8 m² und 4 m²)

 

Ausstattung

* Dan Küchen Granada Küche mit Siemens Geräten
* Eichenparkett im Fischgrätmuster
*  Badezimmer mit Badewanne und Dusche
*  Hansgrohe Armaturen
*  3-fach verglaste Fenster
*  Deckenhöhe ca. 3 m
*  Einbauschränke
*  Fahrradraum im Haus

 

Lage
    •    2 Minuten zur Donaukanal-Promenade
    •    5 Minuten zum Hundertwasserhaus
    •    6 Minuten zu Wien Mitte Landstraße (U3, U4, S-Bahn, CAT)
    •    Straßenbahnlinien 1 und O in Gehweite
    •    Supermärkte, Cafés und Restaurants fußläufig erreichbar

 

Preis

Kaufpreis: 720.000 €

Betriebskosten: ca. 260,57 € / Monat

Provision: 3 % + 20 % USt

Infrastruktur / Entfernungen

Gesundheit
Arzt <500m
Apotheke <500m
Klinik <1.000m
Krankenhaus <1.000m

Kinder & Schulen
Schule <500m
Kindergarten <500m
Universität <500m
Höhere Schule <1.500m

Nahversorgung
Supermarkt <500m
Bäckerei <500m
Einkaufszentrum <1.000m

Sonstige
Geldautomat <500m
Bank <500m
Post <500m
Polizei <1.000m

Verkehr
Bus <500m
U-Bahn <1.000m
Straßenbahn <500m
Bahnhof <500m
Autobahnanschluss <2.500m

Angaben Entfernung Luftlinie / Quelle: OpenStreetMap
Beschreibung weiterlesen

Lage und Verkehrsanbindung

Wien Mitte, Prater

Energieeffizienz

HWB:
108 kWh/(m²*a)
HWB Klasse:
D
fGEE Klasse:
D
Energieausweisart:
Energiebedarfs-ausweis

Grundriss

Lageplan

1030 Wien | Wien 3., Landstraße

Lade...
Olga Tröscher

Olga Tröscher

Crown Consulting GmbH

Lade...

Fotomix

Bild 1 Bild 2 Bild 3 Bild 4 Bild 5 Bild 6