Nahe Mariahilfer Straße! Erstbezug! 2-Zimmer-Wohnung mit 2 Terrassen zu vermieten!

Wohnung zur Miete in 1060 Wien - Gesamtmiete: 1.790,00 € / Objektnummer: 3011
Ausstattung: Boden Fahrstuhl Bad Kabel/Satelliten-TV Fahrradraum Abstellraum Zentralheizung Fußbodenheizung Loggia Terrasse

Preisinformationen

Gesamtmiete:
1.790,00 € / Monat
Kaution:
3 Bruttomonatsmieten
Provision:
Gemäß Erstauftraggeberprinzip bezahlt der Abgeber die Provision.

Fakten

Objektnummer:
3011
Objekttyp:
Wohnung
Terrasse:
1
Loggia:
1
Keller Fläche:
4,29 m²
Wohnfläche:
55,08 m²
Loggia Fläche:
5,72 m²
Nutzfläche:
55,08 m²
Gesamtfläche:
65 m²
Zimmer:
2
Badezimmer:
1
Toilette:
1
Baujahr:
2024
Neubau:
Ja
Zustand:
Erstbezug
Verfügbarkeit:
Verfügbar
Verfügbar ab:
nach Vereinbarung

Beschreibung

Vermietet wird diese lichtdurchflutete 2-Zimmer-Wohnung mit Loggia im 6. Wiener Gemeindebezirk Mariahilf! Die ca. 55 m² große Wohnung befindet sich im 2. Dachgeschoss eines Neubaus!

Video-Besichtigung: https://youtu.be/Np4Am94IMP8

Wohnung:
- 2. Dachgeschoss mit Lift
- Befristung: 5 Jahre/ Kündigungsverzicht: 1 Jahr
- Maßküche vom Tischler mit Bosch-Geräten: Backofen, Cerankochfeld, Dunstabzug, Geschirrspüler, Kombikühlschrank, Mikrowelle
- Eichenparkett/Feinsteinzeug
- Alu-Kunststofffenster mit 3-fach-Verglasung
- Ausrichtung: Südwesten
- Gaszentralheizung in Kombination mit thermischer Solaranlage (Fußbodenheizung)

Wohnhaus:
- Neubau (Baujahr: 2024)
- Werte laut Energieausweis: HWBREF, SK: 30,09 kWh/m²a (Energieklasse B), fGEE, SK: 0,76 (Energieklasse A). Gültig bis: 13.06.2027
- Fahrrad- und Kinderwagenabstellraum im Haus
- Gemeinschaftsgarten und Kinderspielplatz im Innenhof

Infrastruktur:
- Hofer - 4 Gehminuten entfernt
- Billa - 5 Gehminuten entfernt
- Spar - 5 Gehminuten entfernt
- Lidl - 8 Gehminuten entfernt
- Bäckerei - 5 Gehminuten entfernt
- Apotheke - 6 Gehminuten entfernt
- FITINN - 5 Gehminuten entfernt
- IKEA - 8 Gehminuten entfernt
- BahnhofCity Wien West - 8 Gehminuten entfernt

Verkehrsanbindungen: 
U-Bahn: U3, U6 – Westbahnhof (4 Gehminuten)
S-Bahn: S50 - Westbahnhof (9 Gehminuten)
Straßenbahn: 5, 9, 18, 49, 52, 60 - Westbahnhof (4 Gehminuten)
Bus: VAB 1 - Westbahnhof (9 Gehminuten)

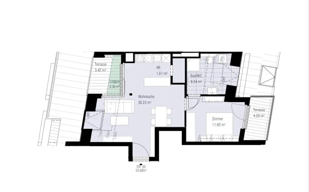
Die 55,08 m² Wohnfläche bietet wie folgt:
- Wohnküche
- Schlafzimmer
- Badezimmer mit Dusche, WC und Waschmaschinenanschluss
- Abstellraum
+ Terrasse/Loggia (Südwesten): 5,72 m²
+ Terrasse (Nordosten): 4,2 m²

Zur Wohnung gehört ein separates Kellerabteil (ca. 4,29 m²).

Die Monatsmiete beträgt brutto: EUR 1.790,- (inkl. Betriebskosten und USt.). 
Die Energiekosten (Strom, Heizung, Warm- und Kaltwasser) sind je nach Verbrauch extra zu bezahlen. 
Die Kaution beträgt 3 BMM: EUR 5.370,-

Ein KFZ-Stellplatz im Innenhof kann zur Wohnung angemietet werden. Bruttomonatsmiete: EUR 200,-

Der Eigentümer verpflichtet seine MieterInnen eine Haushaltsversicherung (ca. EUR 15,-/ Monat) abzuschließen.

Für weitere Informationen bzw. eine kurzfristige Besichtigung steht Ihnen:

Milan NADOR

unter

+43 664 46 37 996 [tel:+436644637996]

oder

info@nagyimmobilien.at

gerne zur Verfügung! Auch am Wochenende

 

Der Immobilienmakler erklärt, dass er – entgegen dem in der Immobilienwirtschaft üblichen Geschäftsgebrauch des Doppelmaklers – einseitig nur für den Vermieter tätig ist.

Infrastruktur / Entfernungen

Gesundheit
Arzt <250m
Apotheke <250m
Klinik <500m
Krankenhaus <500m

Kinder & Schulen
Schule <250m
Kindergarten <250m
Universität <750m
Höhere Schule <500m

Nahversorgung
Supermarkt <250m
Bäckerei <500m
Einkaufszentrum <750m

Sonstige
Geldautomat <500m
Bank <500m
Post <500m
Polizei <250m

Verkehr
Bus <500m
U-Bahn <500m
Straßenbahn <500m
Bahnhof <250m
Autobahnanschluss <4.500m

Angaben Entfernung Luftlinie / Quelle: OpenStreetMap
Beschreibung weiterlesen

Lage und Verkehrsanbindung

Mariahilfer Straße

Energieeffizienz

HWB:
30,9 kWh/(m²*a)
HWB Klasse:
B
fGEE:
0,76
fGEE Klasse:
A
Energieausweisart:
Energiebedarfs-ausweis
Gültig bis:
13.06.2027

Grundriss

Lageplan

1060 Wien | Wien 6., Mariahilf

Lade...
Christopher Martin

Christopher Martin
Beh. konz. Immobilienmakler-Assistent

NAGY Immobilien GmbH

Virtuelle Tour

Lade...

Fotomix

Bild 1 Bild 2 Bild 3 Bild 4 Bild 5 Bild 6 Bild 7 Bild 8 Bild 9 Bild 10 Bild 11 Bild 12 Bild 13 Bild 14 Bild 15 Bild 16 Bild 17 Bild 18 Bild 19 Bild 20 Bild 21 Bild 22 Bild 23 Bild 24 Bild 25