NEU - NEU Energieeffizient, tolle Aufteilung, U1, viele Gemeinschaftsräume

Wohnung zum Kauf in 1220 Wien - Kaufpreis: 749.000 € / Objektnummer: 63019
Ausstattung: Barrierefrei Boden Fahrstuhl Wohnküche / offene Küche Bad Gäste-WC Sauna Fahrradraum Abstellraum Zentralheizung Loggia WG geeignet

Preisinformationen

Kaufpreis:
749.000 €

Fakten

Objektnummer:
63019
Objekttyp:
Wohnung
Loggia:
1
Keller Fläche:
2,61 m²
Wohnfläche:
92,8 m²
Loggia Fläche:
6,56 m²
Zimmer:
4
Badezimmer:
2
Toilette:
2
Stockwerk:
3
Baujahr:
2019
Neubau:
Ja
Zustand:
Gepflegt
Verfügbarkeit:
Verfügbar
Verfügbar ab:
nach Vereinbarung

Beschreibung

Zum Verkauf gelangt diese neu errichtete, ca. 93m² große 4-Zimmer Wohnung mit Loggia in sehr guter Lage des 22. Wiener Gemeindebezirks im 3. Stock eines jungen Neubaus. 

 

***ZUR VEREINBARUNG eines BESICHTIGUNGSTERMINS lassen SIE uns BITTE JEDENFALLS eine schriftliche ANFRAGE zukommen! (wir antworten verlässlich am selben Tag!)***

 

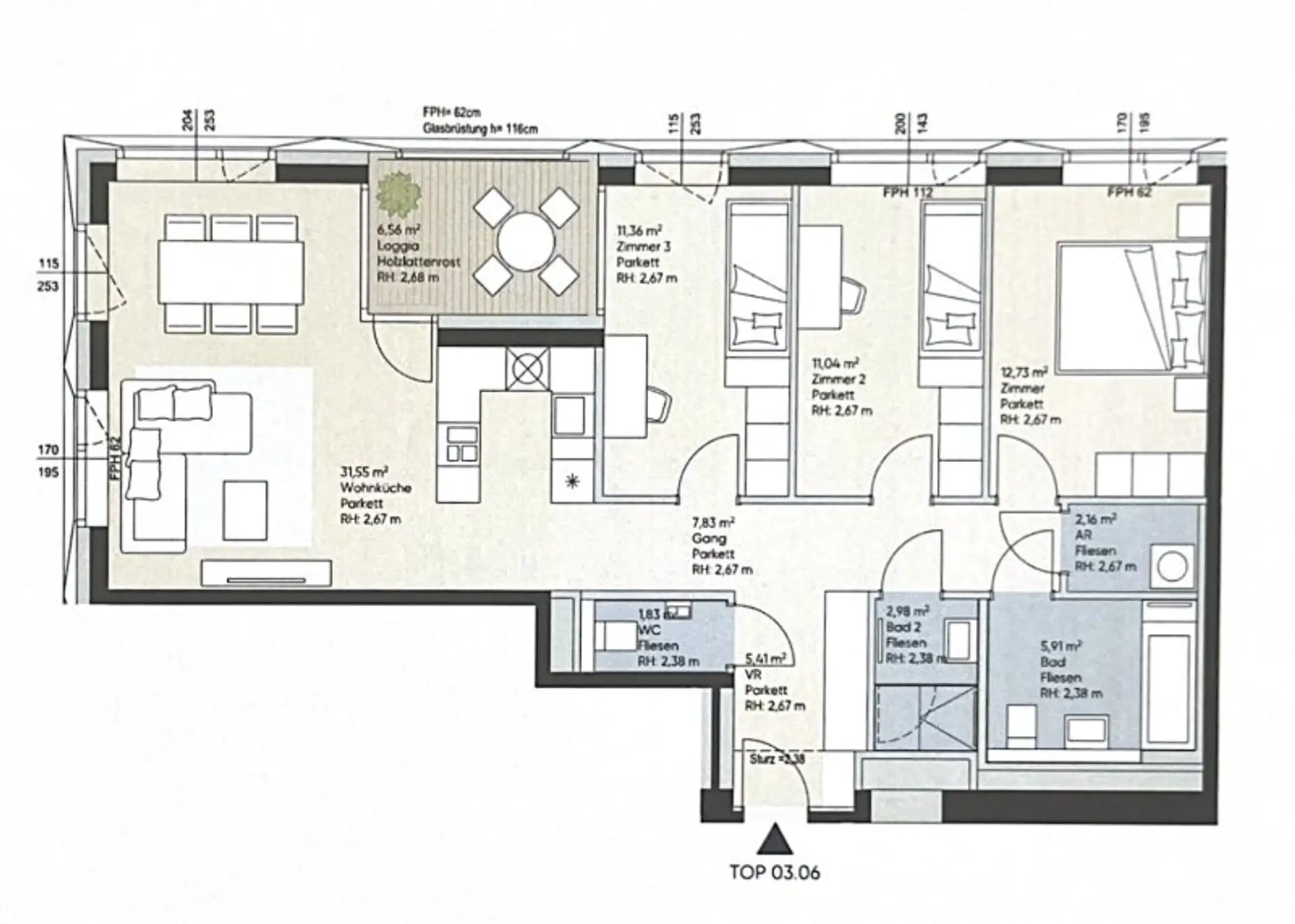
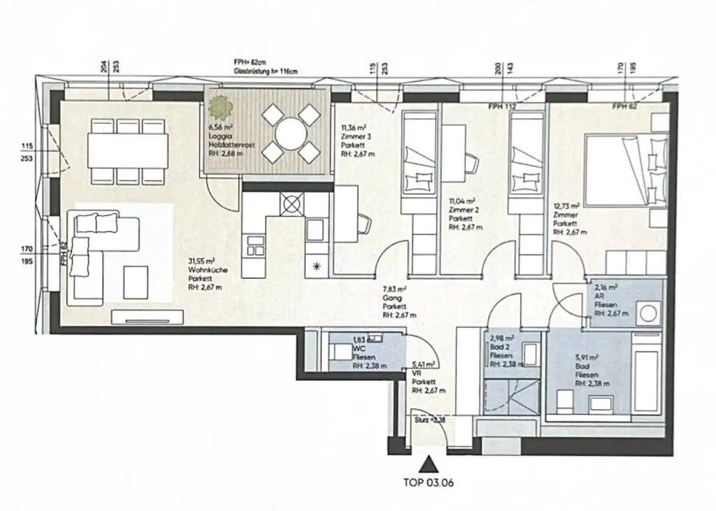
RAUMAUFTEILUNG:

* Vorraum (alle Räume zentral begehbar)
* Abstellraum
* WC
* 2 Bäder, eines mit 2. WC
* Wohnküche inkl. vollausgestatteter Küche
* 3 Schlafzimmer
* Loggia vom Wohnzimmer aus begehbar. 

Die Möbel können nach Absprache übernommen werden. 

ZUSTAND:

Das Objekt wurde vor wenigen Jahren errichtet und wurde von den jetzigen Eigentümern bewohnt und gepflegt. 

Ausstattungsdetails:

* Fußbodenheizung
* Parkettboden
* hochwertig ausgestattete Sanitärräume
* Freifläche

HAUS:

Das Objekt befindet sich im 3.OG eines modernen Hochhauses. Ein Lift ist selbstverständlich vorhanden. Ebenso eine Sauna, ein Pool, ein Fitnessraum und weitere Annehmlichkeiten wie beispielsweise buchbare, ausgestattete Gemeinschaftsräume. 

LAGE UND INFRASTRUKTUR

Die Wohnung liegt in einer begehrten Gegend des 22. Bezirks mit exzellenter Infrastruktur und internationalen Einrichtungen. 

INFRASTRUKTUR:

* Einkaufsmöglichkeiten: Zahlreiche Geschäfte des täglichen Bedarfs (Spar direkt vor der Tür, Supermärkte, Apotheken, Banken, Restaurants) befinden sich in der Umgebung.
* Donau Zentrum: In unmittelbarer Nähe, 100te Shops, Restaurants, Geschäfte, Entertainment Angebote
* Freizeit: 5-10 Minuten zur alten Donau (baden, Boote, usw.), Eishalle, Grünflächen, Trampolinpark, Kino im Donau Zentrum uvm. 

VERKEHRSANBINDUNG:

* U-Bahn: 1-2 Minuten zu U1 Kagran - direkte Verbindung in die Innenstadt & zur UNO City
* Straßenbahn: Linie 25
* Bus: Linie 22A, 26A, 27A, 93A, 94A

Mit den öffentlichen Verkehrsmitteln erreichen Sie die Wiener Innenstadt innerhalb von ca. 15 Minuten und direkt. 

 

PREIS:

Der lastenfreie Kaufpreis für diese Wohnung beträgt Euro 749.000.-

 

Sollten Sie Fragen haben oder einen Besichtigungstermin wünschen, zögern Sie bitte nicht mich zu kontaktieren. (am besten via E-Mail Anfrage)

Zur Vereinbarung eines Besichtigungstermins lassen Sie uns bitte jedenfalls eine E-Mailanfrage zukommen!

Der IMMY ist die renommierteste Auszeichnung für Wiener Makler- und Verwalterbetriebe im Bereich Wohnimmobilien. Wir sind stolz den goldenen IMMY für das Jahr 2019 gewonnen zu haben!

Vielen Dank vor allem an unsere Kunden! Unser Unternehmen wurde auch zum Besten Start Up und in den Jahren 2015, 2018, 2019 und 2020 als Qualitätsmakler ausgezeichnet!

Bitte achten Sie darauf, dass Sie diese Immobilie, nach Ihrer Anfrage bei Adonia Immobilien, nicht auch bei einem anderen Immobilienmaklerbüro anfragen! Vielen Dank!

Nicht alle unsere Immobilien finden Sie auf den gängigen Plattformen. Wir freuen uns auf Ihren Besuch auf unserer Homepage unter adonia.at 

Wir weisen ausdrücklich auf unser wirtschaftliches Naheverhältnis mit dem Abgeber/ der Abgeberin hin!  Unsere gesetzlichen Pflichten als Doppelmakler werden dadurch jedoch nicht beeinträchtigt. Irrtum und Änderungen vorbehalten. 

Alle hier veröffentlichen Informationen basieren auf den uns von dem Abgeber/ der Abgeberin zur Verfügung gestellten Informationen und wurden nicht selbst erhoben.

Unsere Allgemeinen Geschäftsbedingungen können Sie sowohl in dem Ihnen zugesandten Expose einsehen als auch auf unserer Homepage. Wir weisen ausdrücklich darauf hin, dass diese AGBs Vertragsinhalt werden.

Der Schutz von personenbezogenen Daten ist uns wichtig und auch gesetzlich gefordert. Die Verarbeitung Ihrer personenbezogenen Daten erfolgt nach den datenschutzrechtlichen Bestimmungen. Auf unserer Homepage (unter Datenschutzinformation) finden Sie eine Übersicht die Sie über die wichtigsten Aspekte der Verarbeitung personenbezogener Daten informieren soll.

Wir weisen darauf hin, dass zwischen dem Vermittler und dem zu vermittelnden Dritten ein familiäres oder wirtschaftliches Naheverhältnis besteht.

Der Vermittler ist als Doppelmakler tätig.

Infrastruktur / Entfernungen

Gesundheit
Arzt <500m
Apotheke <500m
Klinik <2.500m
Krankenhaus <3.500m

Kinder & Schulen
Schule <500m
Kindergarten <500m
Universität <1.500m
Höhere Schule <1.500m

Nahversorgung
Supermarkt <500m
Bäckerei <500m
Einkaufszentrum <500m

Sonstige
Geldautomat <500m
Bank <500m
Post <500m
Polizei <500m

Verkehr
Bus <500m
U-Bahn <500m
Straßenbahn <500m
Bahnhof <500m
Autobahnanschluss <2.500m

Angaben Entfernung Luftlinie / Quelle: OpenStreetMap
Beschreibung weiterlesen

Lage und Verkehrsanbindung

Donau-Zentrum, VIS

UNO City

Energieeffizienz

HWB:
25,86 kWh/(m²*a)
HWB Klasse:
A
fGEE:
0,83
fGEE Klasse:
A
Energieausweisart:
Energiebedarfs-ausweis
Gültig bis:
04.02.2031

Grundriss

Lageplan

1220 Wien | Wien 22., Donaustadt

Lade...
Rene Motamedi

Rene Motamedi

Adonia Realitätenvermittlung GmbH

Lade...

Fotomix

Bild 1 Bild 2 Bild 3 Bild 4 Bild 5 Bild 6 Bild 7 Bild 8 Bild 9 Bild 10 Bild 11 Bild 12 Bild 13 Bild 14 Bild 15 Bild 16 Bild 17 Bild 18 Bild 19 Bild 20 Bild 21 Bild 22 Bild 23 Bild 24 Bild 25 Bild 26 Bild 27 Bild 28 Bild 29 Bild 30 Bild 31 Bild 32 Bild 33 Bild 34 Bild 35 Bild 36