Neu sanierte Bürofläche mit 240 m² am Schillerpark! Tiefgarage!

Büro zur Miete in 4020 Linz - Gesamtmiete: 5.042,26 € / Objektnummer: 8550
Ausstattung: Boden Fahrstuhl Teeküche Klimaanlage Garage Parkplatz Zentralheizung

Preisinformationen

Gesamtmiete:
5.042,26 € / Monat
Gesamtmiete (exkl. USt.):
4.201,88 € / Monat
Betriebskosten netto:
841,88 € / Monat
Umsatzsteuer:
840,38 €
Kaution:
17.000,00 €

Fakten

Objektnummer:
8550
Objekttyp:
Büro
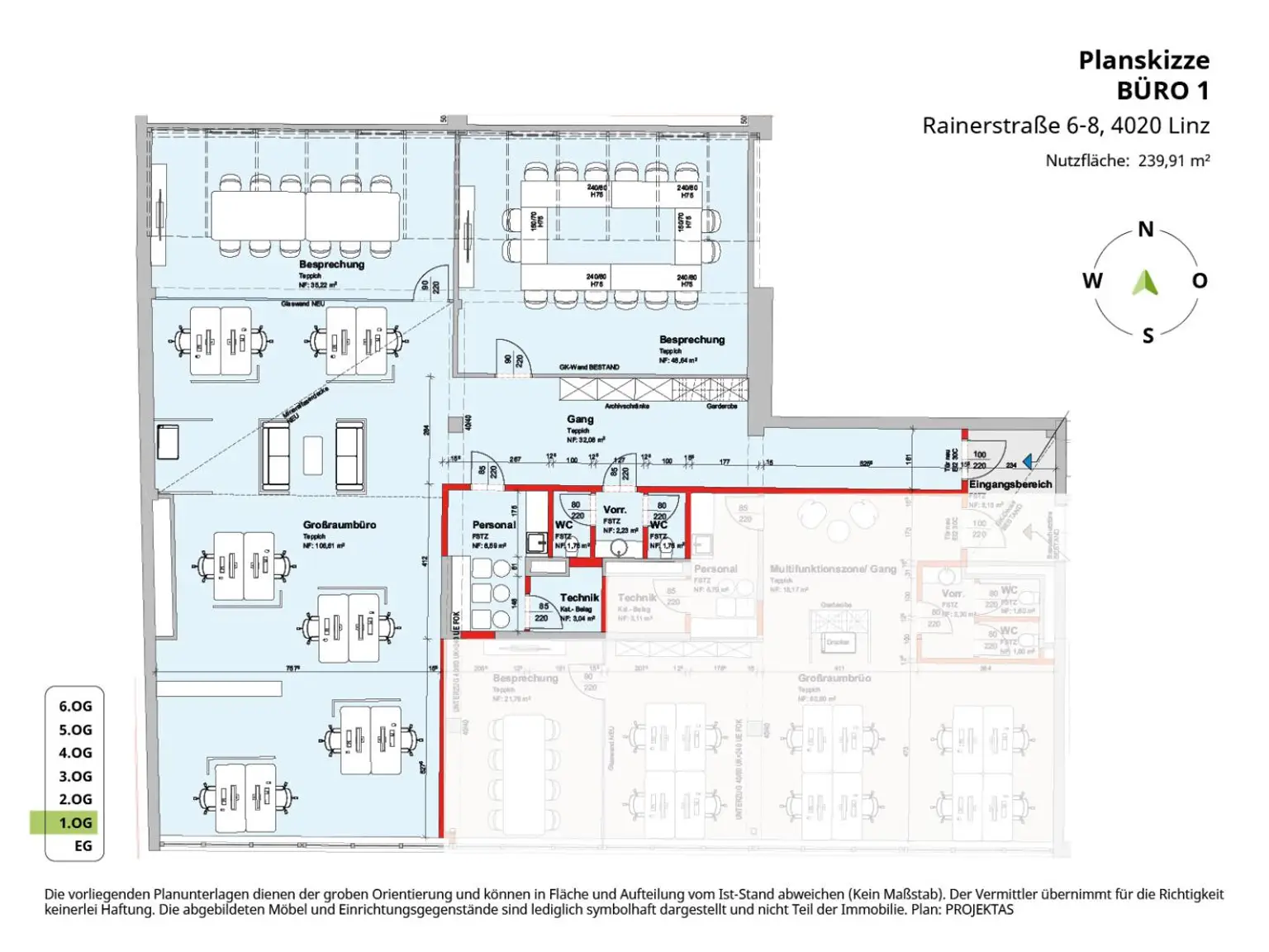
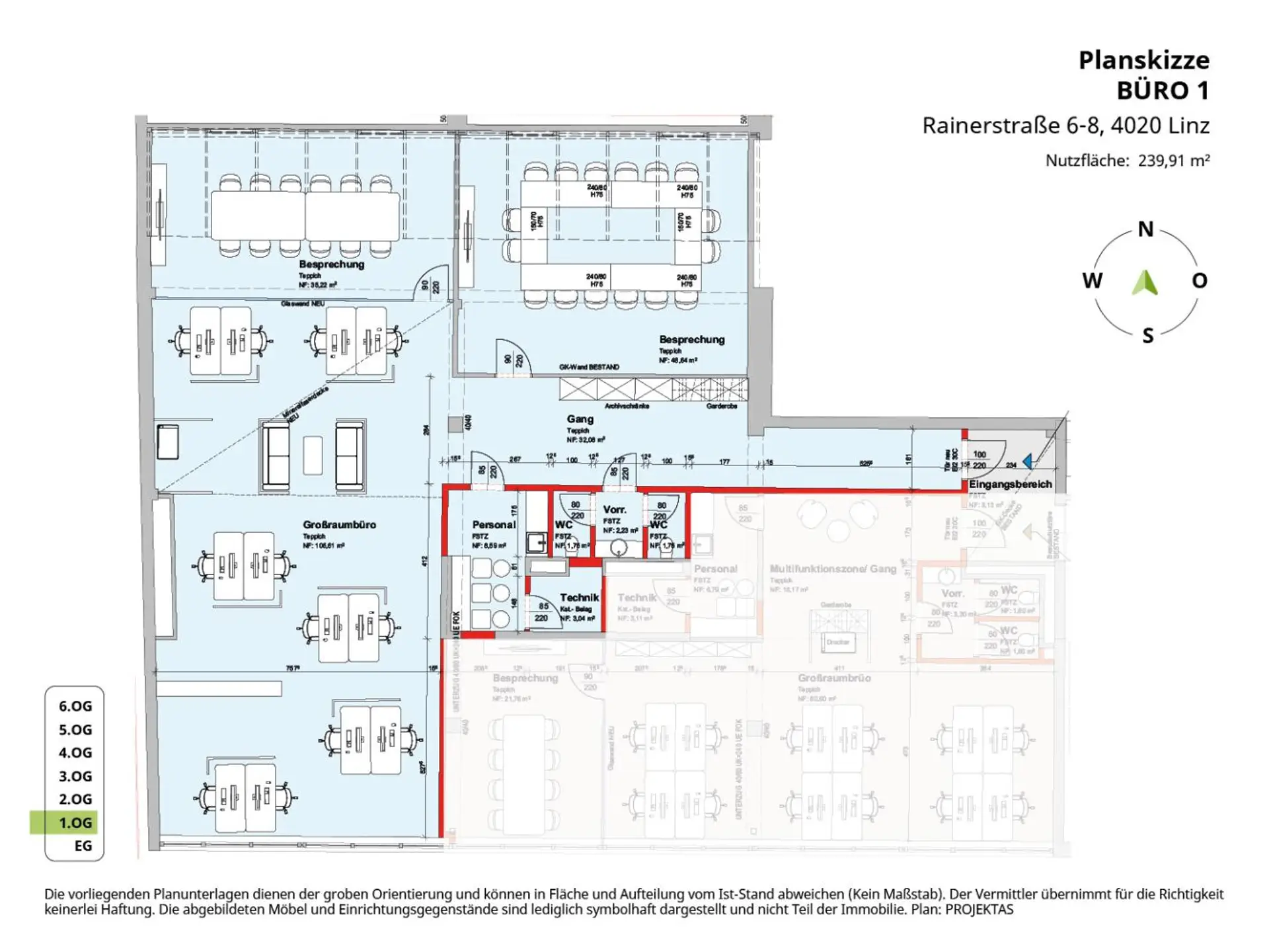
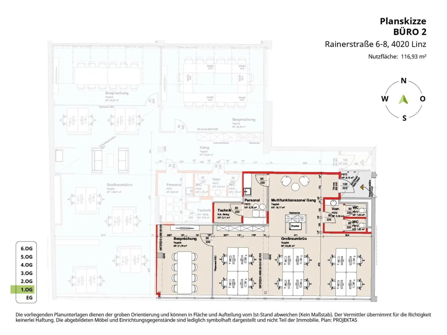
Nutzfläche:
239,91 m²
Bürofläche:
239,91 m²
Baujahr:
ca. 1991
Zustand:
Gepflegt
Verfügbarkeit:
Verfügbar

Beschreibung

PARKPLÄTZE - KLIMA - LIFT - BAHNHOF

QUICKFACTS
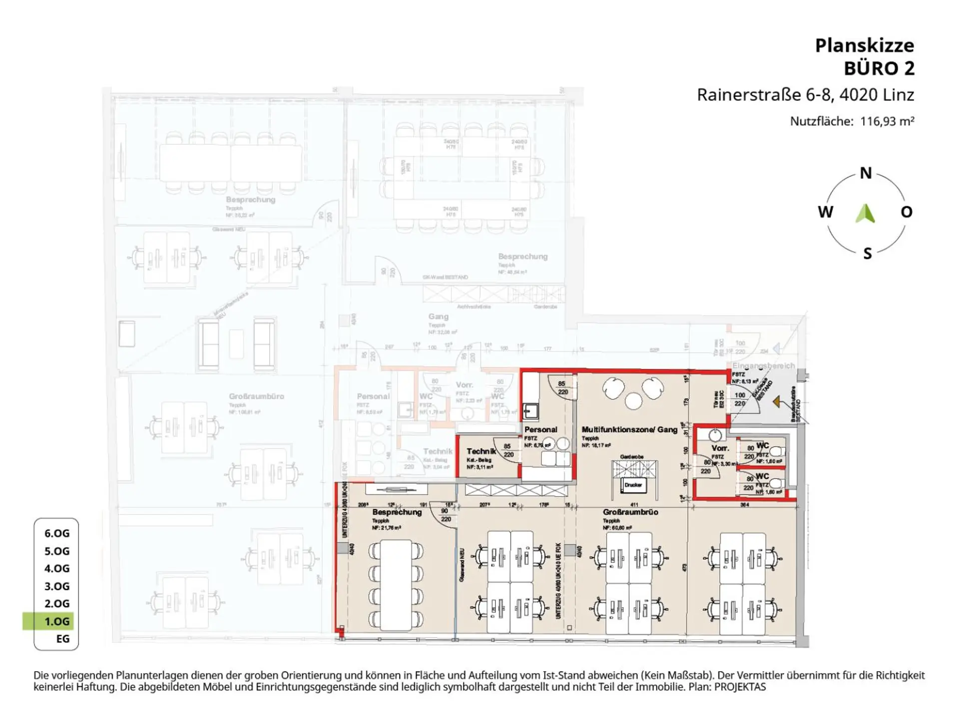
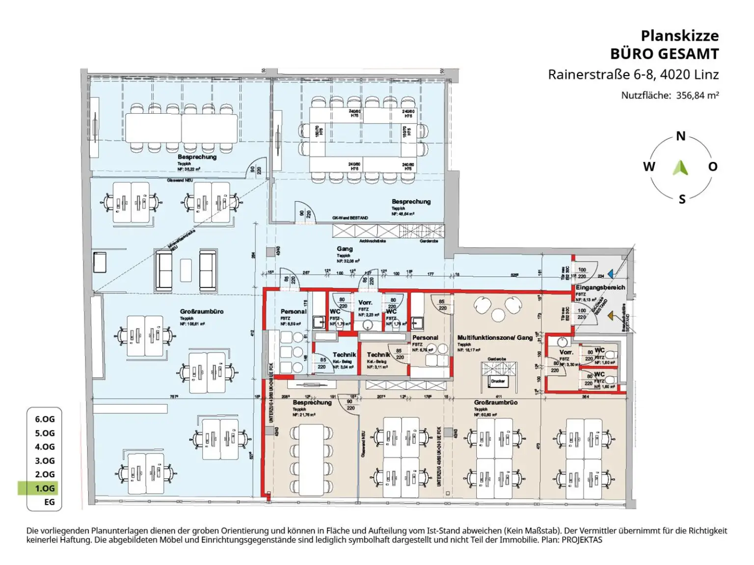
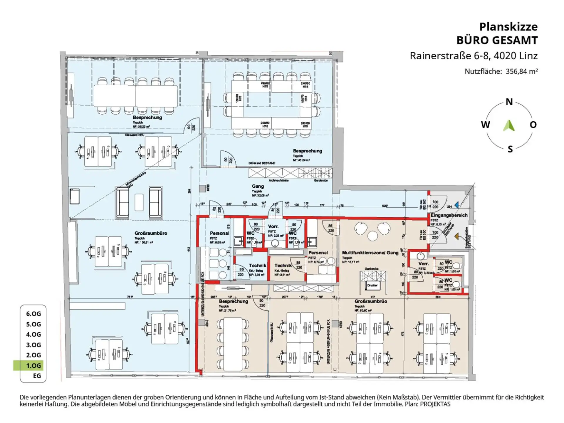
Nutzfläche: Büro 1 mit ca. 117 m² und Büro 2 mit ca. 239,91 m² oder gesamt ca. 358,17 m²
Stockwerk: Zwischengeschoss mit Lift
Parkplätze: hauseigene Tiefgarage
Nettomiete / m²: ab € 14,00
Bezugstermin: nach Vereinbarung

OBJEKTBESCHREIBUNG
Dieses klimatisierte Büroobjekt im Zwischengeschoss eines Bürogebäudes bietet einen attraktiven Standort für verschiedenste Unternehmen.
Grundrissvarianten mit ca. 117 m² (6-8 Personen), ca. 240 m² (15 Personen) oder ca. 360 m² (20 Personen) können noch mitgeplant werden.

LAGE & VERKEHRSANBINDUNG
Durch die Nähe zur Shoppingmeile Landstraße ist dieses Mietobjekt perfekt mit der Straßenbahn erreichbar. Es besteht die Möglichkeit in der hauseigenen Tiefgarage Parkplätze um € 125,00 netto zzgl. Betriebskosten anzumieten. Parkmöglichkeiten für Kunden befinden sich in der umliegenden Kurzparkzone und öffentlichen Parkgaragen.

AUSSTATTUNG
Zustand: gut
Boden: Parkett oder Teppich
Decke: abgehängt
Klima: zentral
Fenster: öffenbar
Sonnenschutz: innen
Teeküche: vorhanden
Lift: vorhanden
Beleuchtung: teilweise vorhanden

KONDITIONEN (NETTO)
Miete: ab € 14,00 / m² / Monat
Betriebskosten: € 3,25 / m² / Monat
Heizungskosten: nach Verbrauch
Strom: nach Verbrauch
Befristung: nach Vereinbarung
Kaution: 3 - 6 BMM
Provision: 3 BMM

Zögern Sie nicht uns bei etwaigen Rückfragen oder zur Vereinbarung eines unverbindlichen Besichtigungs- bzw. Beratungstermines zu kontaktieren. Unser Team steht Ihnen gerne zur Verfügung! Ihr Ansprechpartner: Herr Claudio Feistritzer (0664 / 12 88 000 bzw. 0732 / 77 0 88 5-22)

PS: Zahlreiche weitere Immobilien finden Sie auf unserer Homepage unter www.projektas.at
Hinweis: Wir verarbeiten personenbezogene Daten zu geschäftlichen Zwecken. Nähere Informationen finden Sie unter www.projektas.at
Angaben gemäß gesetzlichem Erfordernis:
Miete 3360 zzgl 20% USt.
Betriebskosten 841,88 zzgl 20% USt.
Umsatzsteuer 840,38
---------------------------------
Gesamtbetrag 5042,26
---------------------------------
Heizwärmebedarf: 49.91 kWh/(m²a)
Klasse Heizwärmebedarf: B
Beschreibung weiterlesen

Energieeffizienz

HWB:
49,9 kWh/(m²*a)
HWB Klasse:
B
Energieausweisart:
Energiebedarfs-ausweis

Dokumente

Lageplan

4020 Linz | Linz (Stadt)

Lade...
Claudio Feistritzer

Claudio Feistritzer

PROJEKTAS - Feistritzer Hinz GmbH & Co OG

Lade...

Fotomix

offene Bürofläche 2 offene Bürofläche Seminarraum 2 Büroraum zentrale Allgemeinfläche Seminarraum 1 Teeküche Außenansicht Gebäude Planskizze Büro 1 Planskizze Büro 2 Planskizze Büro gesamt