NEU - Neues Projekt in der Schwarzelackenau beim Marchfeldkanal - noch 18 Einheiten verfügbar!

Wohnung zum Kauf in 1210 Wien - Kaufpreis: 589.000 € / Objektnummer: 27952
Ausstattung: Barrierefrei Boden Fahrstuhl Wohnküche / offene Küche Bad Tiefgarage Parkplatz Fahrradraum Abstellraum Fußbodenheizung Balkon
2:13.png
2:13 Kopie.png
2:13.png
2:13 Kopie.png

Preisinformationen

Kaufpreis:
589.000 €
Kaufpreis/m²
5.284,41 €
Vermittlungsprovision:
Ja
Provision:
21.204,00 € inkl. 20 % USt.

Fakten

Objektnummer:
27952
Objekttyp:
Wohnung
Balkon:
1
Balkonfläche:
23,42 m²
Keller Fläche:
2,04 m²
Wohnfläche:
88,04 m²
Nutzfläche:
111,46 m²
Zimmer:
2
Badezimmer:
1
Toilette:
1
Neubau:
Ja
Zustand:
Erstbezug
Verfügbarkeit:
Verfügbar

Beschreibung

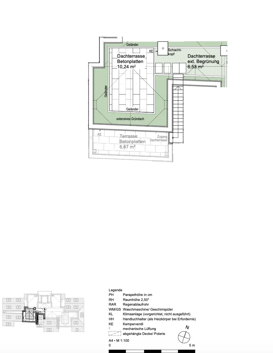
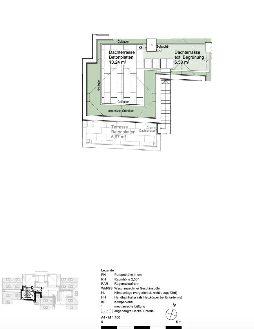
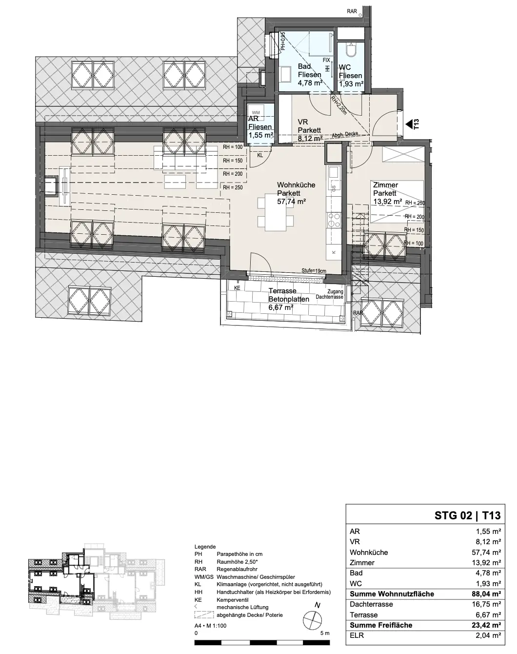
Stg. 2 Top 13 | 2 Zimmer | ca. 88  m² + ca. 23  m² Freifläche

Die helle, loftartige Wohnung bietet auf ca. 88 m² ein großzügiges Raumgefühl. Herzstück ist die ca. 58 m² große Wohnküche, die durch bodentiefe Fenstertüren und mehrere Dachfenster lichtdurchflutet ist. Zusätzlich steht ein weiteres, vielseitig nutzbares Zimmer zur Verfügung. Von der Wohnküche aus gelangt man auf die ca. 7 m² große Terrasse, die wiederum Zugang zur ca. 16 m² großen Dachterrasse bietet.

Raumaufteilung:

  • Vorraum: ca. 8,12 m²
  • Wohnküche: ca. 57,74 m²
  • Zimmer: ca. 13,92 m²
  • Bad: ca. 4,78 m²
  • WC: ca. 1,93 m²
  • Abstellraum: ca. 1,55 m²
  • Terrasse: ca. 6,67 m²
  • Dachterrasse: ca. 16,75 m²

Ein Kellerabteil mit ca. 2,04 m² ist der Wohnung zugeordnet.

Besonders hervorzuheben: Der Bau hat bereits begonnen – das ermöglicht Ihnen als Käufer, gemeinsam mit dem Architekten individuelle Anpassungen in der Raumgestaltung vorzunehmen und Ihre persönlichen Wohnideen zu verwirklichen (solange es noch möglich ist).

Die Architektur ist klar und zeitgemäß, das Wohnkonzept auf langfristige Qualität ausgerichtet: Alle Wohnungen sind  barrierefrei zugänglich. Beheizt wird mittels Luft/Wasser-Wärmepumpe , ergänzt durch eine Photovoltaikanlage zur Unterstützung des Allgemeinstroms. Eine Tiefgarage mit gesamt 19 Stellplätzen , steht Ihnen zur Verfügung. 

Technische Ausstattung & Komfort:

  • Wärmepumpe 
  • Photovoltaik/Solaranlage zur Reduktion von Energie- und Betriebskosten
  • Fußbodenheizung mit Raumthermostaten  
  • Fußbodentemperierung in sämtlichen Zimmern
  • Hochwertige Innenausstattung (Eichenparkett, Feinsteinfliesen u.v.m.)
  • 3‑fach verglaste Kunststoff‑Alu‑Fenster und Sonnenschutz in allen Wohnungen (Rollladen, Raffstores, Markisoletten) 
  • Kleinkinderspielplatz auf Eigengrund

Kaufpreis:

Der  Verkaufspreis   beläuft sich auf  Euro 589.000.-

Diese Wohnung kann auch als  Vorsorge- / Anlagewohnung   mit Umsatzsteuerausweisung (weitere Vermietung verpflichtend!) erworben werden: 

Anlegerpreis: Euro 530.630,63.-  (zzgl. 20% Ust).  

Alle Preise verstehen sich ohne Kücheneinrichtung und Tiefgaragenstellplatz ( á € 32.256.- bzw. 29.059,46.- Netto + USt) , in schlüsselfertiger Ausführung! 

Was überzeugt? Ein klar strukturiertes Konzept, intelligente Grundrisse und eine Lage mit Lebensqualität. Egal ob zur Kapitalanlage oder für den Eigenbedarf – Mit diesem Wohnbauprojekt investieren Sie in Lebensqualität und Substanz! Immobilien gelten als wertbeständige und sichere Anlageform. Alle Wohnungen und Stellplätze können auch als  Vorsorge- / Anlagewohnung   mit Umsatzsteuerausweisung (weitere Vermietung verpflichtend!) erworben werden! 

Sichern Sie sich Ihre neue Vorsorgewohnung - gerne beraten wir Sie dazu!

Infina, Österreichs beliebtester Wohnbau-Finanz-Experte, begleitet Sie ganzheitlich rund um Ihr Immobilienvorhaben.

Unser Team von Immobilienexperten unterstützt Sie beim geplanten Kauf als auch bei einem möglichen Verkauf Ihrer bestehenden Immobilie. Zudem bieten unsere Finanzierungsexperten auf Wunsch maßgeschneiderte Finanzierungslösungen durch den Vergleich der besten Kredite von über 120 Banken in Österreich und Deutschland.

Wir möchten Sie unabhängig, transparent und flexibel als starker Partner in allen Immobilienangelegenheiten unterstützen.

Kontaktieren Sie uns für einen persönlichen Besichtigungstermin oder eine unverbindliche und kostenfreie Finanzierungsberatung.

Was kann Infina noch für Sie tun?

Wenn Sie eine Finanzierung für Ihre Traumimmobilie wünschen, begleiten wir Sie gerne von der strategischen Planung bis zur Realisierung und darüber hinaus. Wir sind Österreichs beliebtester Wohnbau-Finanz-Experte und unsere Mission lautet: Jeder Kunde hat das Recht auf den besten Kredit.

  • Infina kooperiert mit über 120 Banken in Österreich und Deutschland
  • Über 600 Kreditprodukte im Vergleich
  • Über 100-mal vor Ort in ganz Österreich

Ebenso unterstützen wir unsere Kunden beim Verkauf und der Vermietung Ihrer Immobilien sowie bei der Immobiliensuche durch unsere Immobilienexperten.


Wir weisen Sie darauf hin, dass die gemachten Angaben und Informationen lediglich unverbindliche Vorabinformationen sind und daher ohne Gewähr erfolgen. Der Vermittler ist als Doppelmakler tätig.

Beschreibung weiterlesen

Lage und Verkehrsanbindung

In der Nähe der großflächigen Grünzone der Schwarzlackenau entsteht ein exklusives Neubau-Wohnprojekt in ruhiger, naturnaher Umgebung
Dieses Projekt ist für alle, die Natur und Freizeit direkt vor der Haustür schätzen.

Naherholung am Wasser: Nur wenige Minuten bis zur Donauinsel, Neuen und Alten Donau – perfekte Bedingungen für Sport, Entspannung und Naturgenuss
Erholung & Freizeitsport: Schwimmen, Fischen, Segeln, Radfahren und Joggen – alles schnell erreichbar.

Nahversorger:
-Eurospar: ca. 750m
-Billa: ca. 800m

Öffentliche Verkehrsmittel:
-Bahnhof Wien Floridsdorf (U6, S1, S2, S3, S4, S7, Regionalzüge):
-Ist der wichtigste Verkehrsknotenpunkt im Bezirk. Mit den Buslinien 30A oder 31A erreicht man den Bahnhof in ca. 10–15 Minuten.

S-Bahn-Station Strebersdorf (S3, S4):
-Diese Station ist mit der Buslinie 32A gut erreichbar.

Energieeffizienz

HWB:
37,3 kWh/(m²*a)
HWB Klasse:
B
fGEE:
0,67
fGEE Klasse:
A+
Energieausweisart:
Energiebedarfs-ausweis

Grundrisse

Lageplan

1210 Wien | Wien 21., Floridsdorf

Lade...
Benjamin Bornschein

Benjamin Bornschein
Immobilienservice

Infina Credit Broker GmbH

Lade...

Fotomix

2:13.png 2:13 Kopie.png