NEU - "OBERNDORF - Gediegene 3 Zimmer Wohnung mit Balkon und Gartennutzung"

Wohnung zum Kauf in 5110 Oberndorf bei Salzburg - Kaufpreis: 369.000 € / Objektnummer: 6099
Ausstattung: Boden Bad Gäste-WC Kabel/Satelliten-TV Parkplatz Außenparkplatz Fahrradraum Abstellraum Zentralheizung Balkon WG geeignet

Preisinformationen

Kaufpreis:
369.000 €
Kaufpreis/m²
4.612,50 €
Betriebskosten netto:
76,26 € / Monat
Heizkosten netto:
110,43 €
Vermittlungsprovision:
Ja
Provision:
3% des Kaufpreises zzgl. 20% USt.

Fakten

Objektnummer:
6099
Objekttyp:
Wohnung
Balkon:
1
Balkonfläche:
5 m²
Wohnfläche:
80 m²
Nutzfläche:
85 m²
Gesamtfläche:
85 m²
Zimmer:
3
Baujahr:
1990
Neubau:
Ja
Letzte Sanierung:
2023
Zustand:
Modernisiert
Verfügbarkeit:
Verfügbar

Beschreibung

Die gemütliche 3-Zimmer-Wohnung liegt im Hochparterre in einem Mehrparteienhaus und ist nach süd/ost/west ausgerichtet. Ein allgemeiner Gartenanteil kann auch genutzt
werden und ist direkt von der Wohnung begehbar. Das Wohnhaus liegt sehr schön unmittelbar nahe der Lokalbahnhaltestelle Oberndorf. In die Stadt sind es 5 Minuten zu Fuß, ideal zum einkaufen u.s.w.

Die Wohnung wurde 2008 aufwendig saniert und präsentiert sich in sehr gutem und wohnlichen Zustand. Zur Wohnung zugehörig ist ein großes Kellerabteil, ein allgemeiner Fahrradabstellraum, ein Trockenraum, der Gemeinschaftsgarten und der PKW Stellplatz Nr. 4 im Freien.

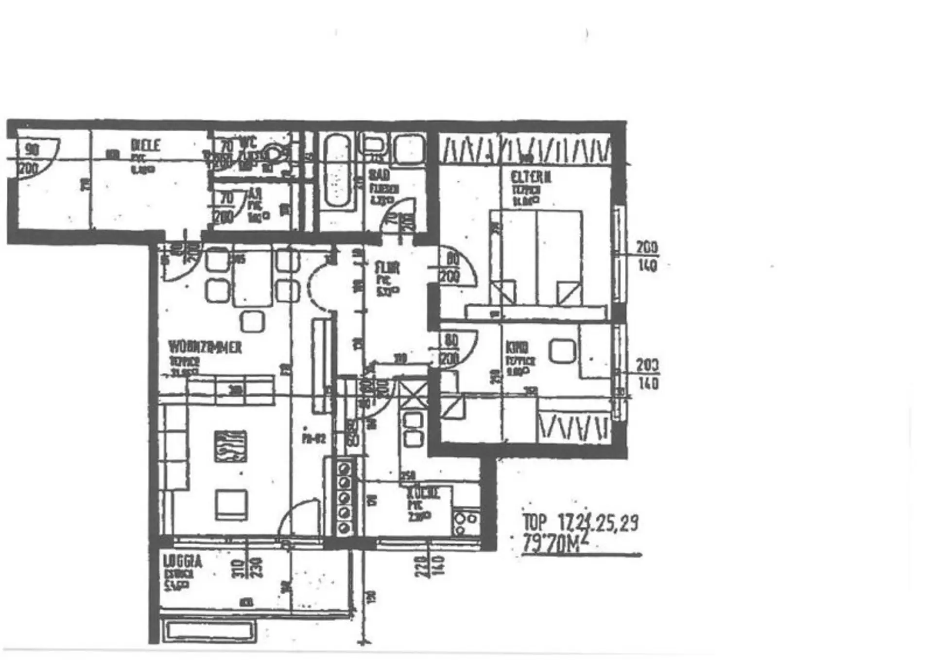
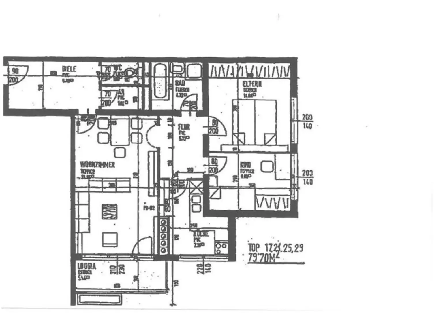
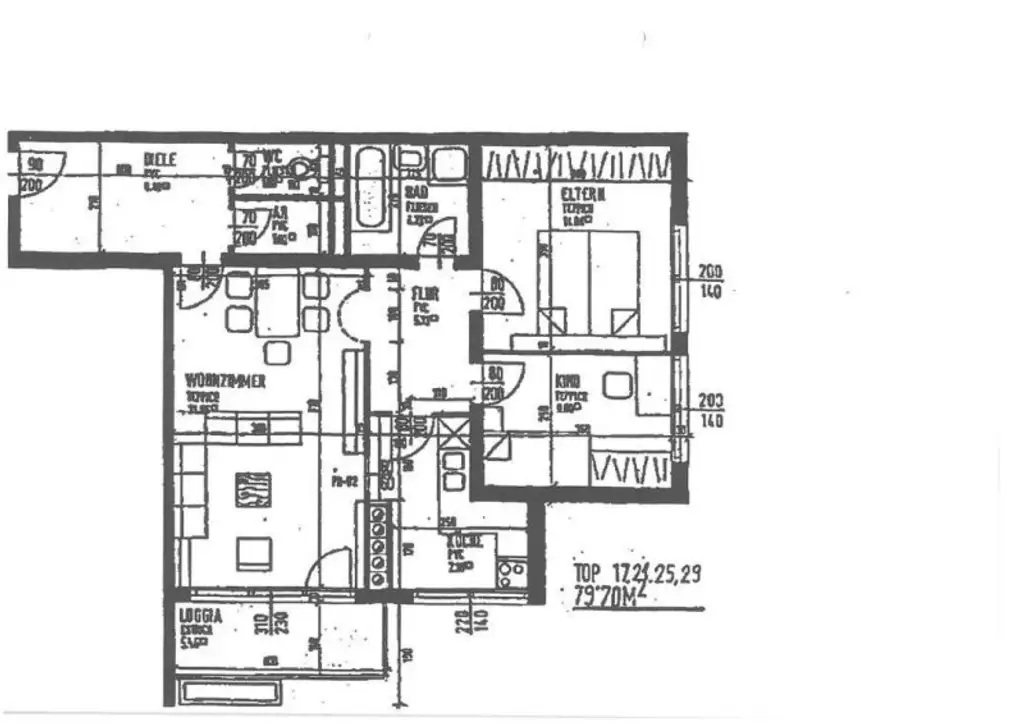
Die Wohnung ist aufgeteilt in einen großen Vorraum, eine Toilette, einen Abstellraum mit Waschmaschinenanschluss, einem großen Wohn- Essbereich mit Ausgang auf die überdachte Loggia und den Garten, eine voll eingerichtete Küche, ein
Kinderschlafbereich, ein Elternschlafbereich und ein schönes Badezimmer mit Einbauschränken/Badewanne und Waschtisch.

Die Wohnung ist aktuell noch befristet bis August 2027 vermietet!

Hinweis gemäß Energieausweisvorlagegesetz: Ein Energieausweis wurde vom Eigentümer bzw. Verkäufer, nach unserer Aufklärung über die generell geltende Vorlagepflicht, sowie Aufforderung zu seiner Erstellung noch nicht vorgelegt. Daher gilt zumindest eine dem Alter und der Art des Gebäudes entsprechende Gesamtenergieeffizienz als vereinbart. Wir übernehmen keinerlei Gewähr oder Haftung für die tatsächliche Energieeffizienz der angebotenen Immobilie.

Der Vermittler ist als Doppelmakler tätig.

Infrastruktur / Entfernungen

Gesundheit
Arzt <500m
Apotheke <500m
Klinik <1.000m
Krankenhaus <500m

Kinder & Schulen
Kindergarten <1.000m
Schule <1.000m
Höhere Schule <1.500m

Nahversorgung
Supermarkt <500m
Bäckerei <500m

Sonstige
Geldautomat <500m
Bank <500m
Post <500m
Polizei <500m

Verkehr
Bus <500m
Bahnhof <500m

Angaben Entfernung Luftlinie / Quelle: OpenStreetMap
Beschreibung weiterlesen

Lage und Verkehrsanbindung

Oberndorf mit seinen 5.500 Einwohnern (Höhenlage 394 m), einst die alte Schiffersiedlung mit kaiserlichem Marktrecht, ist zentrale Stadtgemeinde im nördlichen Flachgau und reich an Zeugnissen aus einer ereignisreichen Vergangenheit.
Am 24. Dezember 1818 erklang in der ehemaligen St. Nikolauskirche das weltberühmte Weihnachtslied "Stille Nacht! Heilige Nacht!" zum ersten Mal. Die Stille- Nacht-Gedächtniskapelle erinnert neben vielen weiteren Sehenswürdigkeiten noch an diese Zeit und ist alljährlich Pilgerstätte in- und ausländischer Gäste.
Wie es einer Stadt mit kultureller Vergangenheit entspricht, hat hier das unverfälschte Brauchtum seinen Platz: Schifferstechen, Piratenschlacht, Himmelbrotschutzen, Sonnwend auf der Salzach oder die Plättenfahrten mit den Schifferschützen in ihrer ehemaligen Schiffertracht. Oberndorf, nur 20 km von der Festspielstadt Salzburg entfernt, mit der Lokalbahn im Halbstundentakt erreichbar, ist das ideale Paradies für viele Rad- und Wanderrouten, die durch die Stille-Nacht- und Einkaufsstadt führen.
Gemütliche Gasthäuser, die für die heimische Gastfreundlichkeit bekannt sind empfangen Sie gerne. Für Sportbegeisterte: Tennisplätze, Asphaltbahn, Beachvolleyballplatz, Skaterbahn und unzählige Wege zum Nordic Walken.

Grundriss

Lageplan

5110 Oberndorf bei Salzburg | Salzburg-Umgebung

Lade...
Siegfried Seidl

Siegfried Seidl
Geschäftsführer

MIA Real Estate GmbH

Lade...

Fotomix

Wohnbereich - Gediegene 3 Zimmer Wohnung mit Balkon und Gartennutzung Miete Oberndorf bei Salzburg Kinderschlafbereich - Gediegene 3 Zimmer Wohnung mit Balkon und Gartennutzung Miete Oberndorf bei Salzburg Wohnbereich - Gediegene 3 Zimmer Wohnung mit Balkon und Gartennutzung Miete Oberndorf bei Salzburg Elternschlafbereich - Gediegene 3 Zimmer Wohnung mit Balkon und Gartennutzung Miete Oberndorf bei Salzburg Kochbereich - Gediegene 3 Zimmer Wohnung mit Balkon und Gartennutzung Miete Oberndorf bei Salzburg Kochbereich - Gediegene 3 Zimmer Wohnung mit Balkon und Gartennutzung Miete Oberndorf bei Salzburg Badebereich - Gediegene 3 Zimmer Wohnung mit Balkon und Gartennutzung Miete Oberndorf bei Salzburg Balkon - Gediegene 3 Zimmer Wohnung mit Balkon und Gartennutzung Miete Oberndorf bei Salzburg Balkon - Gediegene 3 Zimmer Wohnung mit Balkon und Gartennutzung Miete Oberndorf bei Salzburg Balkon - Gediegene 3 Zimmer Wohnung mit Balkon und Gartennutzung Miete Oberndorf bei Salzburg