NEU - Panorama Terrassenresidenz über den Dächern von Klosterneuburg

Wohnung zum Kauf in 3400 Klosterneuburg - Kaufpreis: 1.013.000 € / Objektnummer: 5759
Ausstattung: Fahrstuhl Bad Fußbodenheizung Terrasse

Preisinformationen

Kaufpreis:
1.013.000 €
Vermittlungsprovision:
Ja
Provision:
3% des Kaufpreises zzgl. 20% USt.

Fakten

Objektnummer:
5759
Objekttyp:
Wohnung
Terrasse:
2
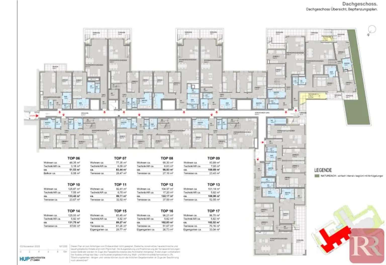
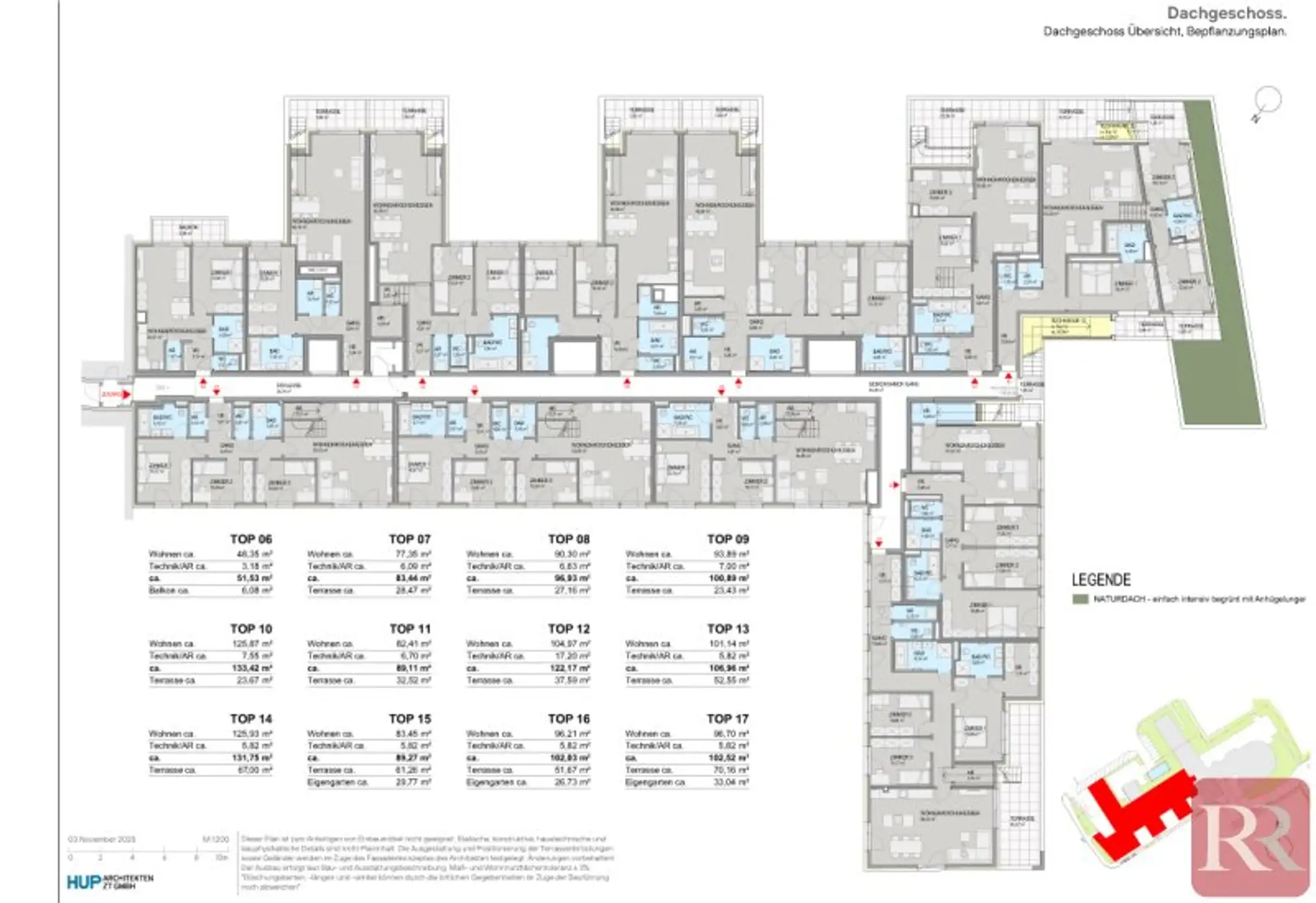
Wohnfläche:
96,93 m²
Zimmer:
3
Badezimmer:
1
Toilette:
2
Baujahr:
2027
Neubau:
Ja
Zustand:
Erstbezug
Verfügbarkeit:
Verfügbar

Beschreibung

Über den Dächern Klosterneuburgs entsteht ein exklusives Neubauprojekt, das modernes Wohnen, hochwertige Architektur und außergewöhnliche Freiräume miteinander verbindet. In ruhiger Lage der oberen Stadt gelegen, vereint dieses Projekt urbanen Komfort mit dem unmittelbaren Bezug zur Natur.

Das Projekt umfasst 12 hochwertige Dachgeschoßwohnungen ohne Dachschrägen, die über großzügige private Dachterrassen verfügen. Großflächige Verglasungen, klare Linien und durchdachte Grundrisse schaffen lichtdurchflutete Wohnräume mit hoher Aufenthaltsqualität und eindrucksvollen Ausblicken – auf die Stadt Wien, Klosterneuburg und/oder in die Weinberge.

Der Verkaufsstart erfolgt aktuell.
Der Baubeginn ist für Herbst 2026, die Fertigstellung für Frühjahr 2028 geplant.

RAUMAUFTEILUNG

Die Wohnung überzeugt durch eine funktionale und gleichzeitig elegante Grundrissgestaltung. Durch den Vorraum gelangen Sie wunderbar zu den zwei separaten Zimmern, die jeweils ca. 11m² und 12m²  ideal als Schlafzimmer genutzt werden können. Weiters befindet sich auch das exklusive knapp 8m² große Badezimmer mit zwei Waschtischen, einer Dusche und einer Badewanne.  Zwei WCs sorgen zusätzlich für Komfort. Der helle Wohn- und Essbereich bietet sich ideal als zentraler Lebensmittelpunkt an. Durch den direkten Terrassenzugang vom Wohnzimmer gelangen Sie in Ihre neue Ruhe Oase. Das absolute Highlight dieser Wohnung führt Sie über die Terrassenstiege auf eine darüberliegende private Dachterrasse, die einen exklusiven Rückzugsort mit Panorama auf Wien bietet. Der ideale Ort für Sonnenstunden zum Entspannen oder Dinner-Abende unter freiem Himmel. 

AUSSTATTUNGSMERKMALE

Die Ausstattung folgt einem hochwertigen, zeitlosen Gesamtkonzept. Edle Parkettböden, großflächige Fensterfronten sowie moderne Markensanitärausstattung unterstreichen den Premium-Charakter des Projekts. Holz-Alu-Fenster, ausgewählte Materialien und sorgfältig definierte Ausführungsstandards sorgen für eine langlebige und elegante Wohnatmosphäre.

BEHEIZUNG & TECHNIK

Das Projekt erfüllt aktuelle Anforderungen an nachhaltiges Bauen und ist ÖGNI-Gold zertifiziert.
Die Energieversorgung erfolgt über Luft-Wasser-Wärmepumpen in Kombination mit Photovoltaikanlagen.
Vorbereitete E-Ladestationen für PKW sowie großzügige Fahrradabstellbereiche sind Bestandteil des Gesamtkonzepts.

IHRE VORTEILE IM ÜBERBLICK

* Exklusives Dachgeschoßprojekt mit nur 12 Wohneinheiten
* Private Dachterrasse
* Edle Parkettböden und Marken Sanitärausstattung
* Keine Dachschrägen
* Raumhöhe: 311cm mit bis zu 665cm
* Großzügige Fensterflächen mit viel Tageslicht
* Nachhaltige Haustechnik & ÖGNI-Gold Zertifizierung
* Ruhige Lage in der oberen Stadt von Klosterneuburg
* Nähe zum Stadtzentrum, Weinbergen und Naherholung

LAGE & INFRASTRUKTUR

Die Adresse vereint Ruhe, Natur und Stadtnähe. In nur wenigen Schritten befinden sich zahlreiche Einkaufsmöglichkeiten und Ärztezentrum, sowie Kindergärten und Schulen in Ihrer Nähe.

Die Infrastruktur dieser Wohnanlage bietet Ihnen nicht nur den Bahnhof Klosterneuburg-Weidling (11 Gehminuten), sondern auch den Bahnhof Klosterneuburg-Kierling, die Ihnen eine direkte Verbindung nach Wien und Tulln ermöglichen. Auch mit sportlichen, kulturellen und traditionellen Highlight versorgt sie Klosterneuburg. Für Ruhe und Entspannung besuchen Sie einfach das nahe Donauufer oder die weitläufigen Grün- und Weinbergflächen für unvergesslichen Momente. 

HINWEIS

Die dargestellten Bilder sind elektronisch erstellt und dienen der Veranschaulichung. Abweichungen in der Ausführung bleiben vorbehalten.

Das Projekt vereinen luxuriöses Wohnen, spektakuläre Ausblicke und eine Lage, die Natur und Stadtleben perfekt verbindet. Ein Wohnprojekt für Menschen die Wert auf Qualität, Design und Lebensgefühl legen. Überzeugen Sie sich selbst und vereinbaren Sie einen Besichtigungstermin.

Auf Anfrage bekommen Sie gerne alle weiteren Informationen zu diesem Projekt.

KONTAKT

Gerne informieren wir Sie in einem persönlichen Gespräch über das Projekt sowie über aktuell verfügbare Wohneinheiten.

Römer Real GmbH
Georg Römer
T: +43 650 2941294
E: roemer@roemer-real.at

 

 

Noch nichts gefunden? Wir informieren Sie über geeignete Immobilienangebote noch vor allen anderen.
Legen Sie jetzt Ihren individuellen Suchagenten unter folgendem Link an. Wir schicken Ihnen passende Immobilien exklusiv vorab zu.
Suchagent anlegen [https://roemer-real.service.immo/registrieren/de] - https://roemer-real.service.immo/registrieren/de

Der Vermittler ist als Doppelmakler tätig.
Beschreibung weiterlesen

Lage und Verkehrsanbindung

Nähe Rathausplatz

Rathausplatz

Energieeffizienz

HWB:
36,5 kWh/(m²*a)
HWB Klasse:
B
fGEE:
0,37
fGEE Klasse:
A++
Energieausweisart:
Energiebedarfs-ausweis
Gültig bis:
15.04.2034

Grundriss

Lageplan

3400 Klosterneuburg | Sankt Pölten (Land)

Lade...
Georg Römer

Georg Römer
Geschäftsführer Immobilienmakler

Römer Real GmbH

Lade...

Fotomix

Bild 1 Bild 2 Bild 3 Bild 4