Parkplatzsuche ade! Praktische Tiefgaragenstellplätze nahe Einkaufszentrum Schwechat

Parken zum Kauf in 2320 Schwechat - Kaufpreis: 16.500 € / Objektnummer: 217
Ein- und Ausfahrt
Ein- und Ausfahrt
Außenansicht
Tiefgarage
Tiefgarage
Tiefgarage
Ein- und Ausfahrt
Außenansicht
Außenansicht
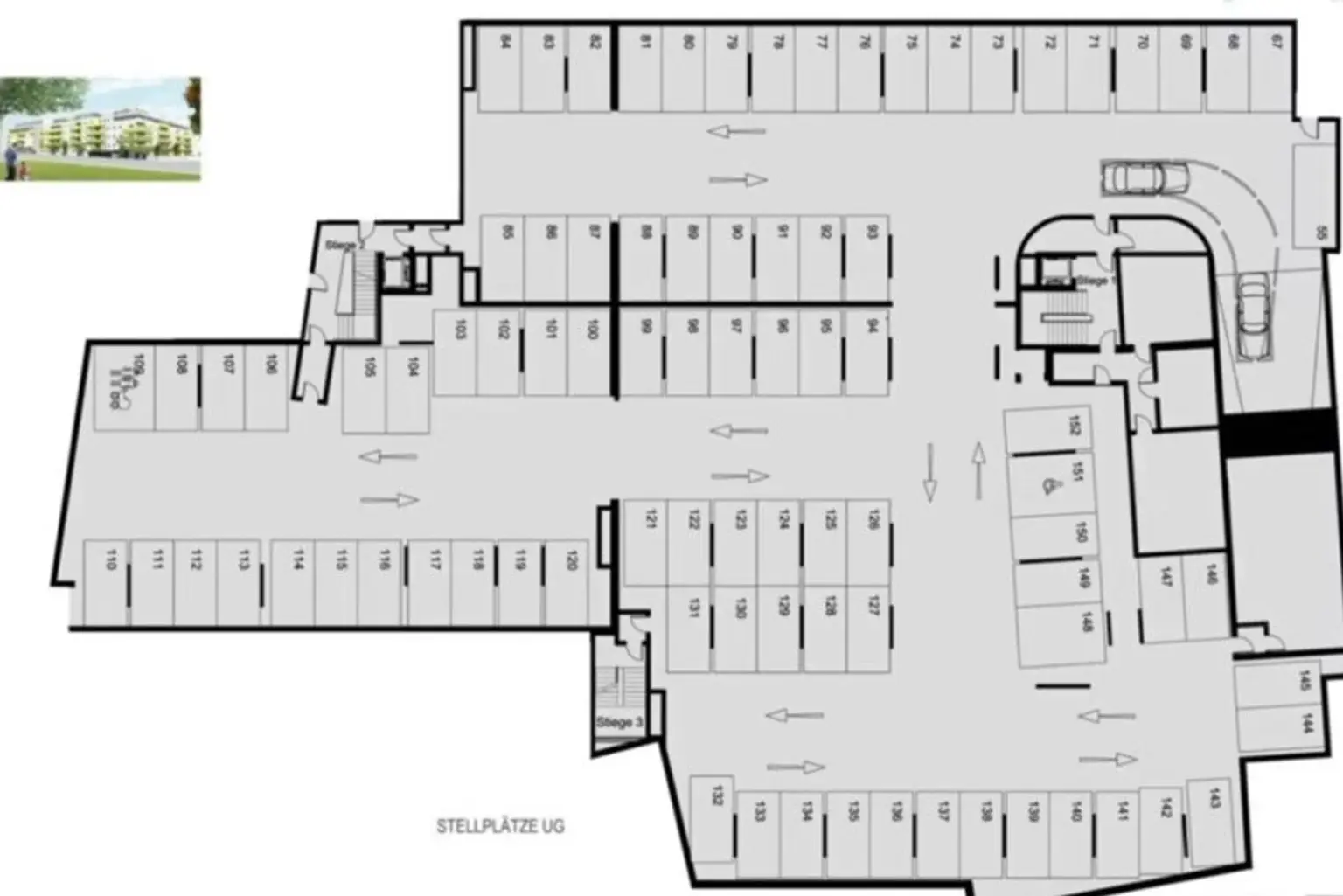
Garagenplan EG
Garagenplan UG

Preisinformationen

Kaufpreis:
16.500 €
Betriebskosten netto:
15,82 € / Monat
Vermittlungsprovision:
Ja
Provision:
792,00 € inkl. 20% USt.

Fakten

Objektnummer:
217
Objekttyp:
Parken
Nutzfläche:
12,5 m²
Verfügbarkeit:
Verfügbar

Beschreibung

Setzen Sie der lästigen Parkplatzsuche doch endlich ein Ende! 

Zum Verkauf gelangen insgesamt fünf Tiefgaragenstellplätze (PKW-Stellplätze) unweit des Einkaufszentrums Schwechat. Die zweigeschossige Tiefgarage ist Teil einer sehr gepflegten, neuwertigen Wohnhausanlage in der Brauhausstraße bzw. Friedhofstraße, welche erst im Jahre 2016 fertiggestellt wurde. Die Zufahrt zur Tiefgarage erfolgt über die Brauhausstraße, diese ist in beide Fahrtrichtungen befahrbar. Die Ein- und Ausfahrt der Tiefgarage ist großzügig gestaltet. Die Bedienung des Garagentors erfolgt bequem mittels Funkhandsender, Schlüssel oder Seil. Die Nutzfläche der gegenständlichen Tiefgaragenstellplätze beträgt ca. 12,50 m². 

Folgende Tiefgaragenstellplätze stehen zur Verfügung:

* Nr. 23 im Erdgeschoss
* Nr. 24 im Erdgeschoss
* Nr. 58 im Erdgeschoss
* Nr. 60 im Erdgeschoss
* Nr. 111 im Untergeschoss  

Wir weisen darauf hin, dass zwischen dem Vermittler und dem zu vermittelnden Dritten ein familiäres oder wirtschaftliches Naheverhältnis besteht.

Der Vermittler ist als Doppelmakler tätig.

Infrastruktur / Entfernungen

Gesundheit
Arzt <500m
Apotheke <500m
Klinik <500m
Krankenhaus <7.000m

Kinder & Schulen
Schule <500m
Kindergarten <500m
Universität <7.500m
Höhere Schule <7.500m

Nahversorgung
Supermarkt <500m
Bäckerei <500m
Einkaufszentrum <500m

Sonstige
Geldautomat <500m
Bank <500m
Post <500m
Polizei <500m

Verkehr
Bus <500m
U-Bahn <5.000m
Straßenbahn <1.500m
Bahnhof <1.000m
Autobahnanschluss <1.500m
Flughafen <8.000m

Angaben Entfernung Luftlinie / Quelle: OpenStreetMap
Beschreibung weiterlesen

Lage und Verkehrsanbindung

Brauhausstraße, Friedhofstraße

Einkaufszentrum Schwechat

Grundrisse

Lageplan

2320 Schwechat | Bruck an der Leitha

Lade...
Karina Trebos

Karina Trebos
Geschäftsführende Gesellschafterin

KT FINE LIVING GmbH

Lade...

Fotomix

Ein- und Ausfahrt Ein- und Ausfahrt Außenansicht Tiefgarage Tiefgarage Tiefgarage Ein- und Ausfahrt Außenansicht Außenansicht