NEU - Parkvilla Laakirchen - 14 exklusive Wohnungen zum Wohlfühlen

Wohnung zum Kauf in 4663 Laakirchen - Kaufpreis: 267.025 €
Ausstattung: Garage Terrasse

Preisinformationen

Kaufpreis:
267.025 €
Vermittlungsprovision:
Ja

Fakten

Objekttyp:
Wohnung
Terrasse:
1
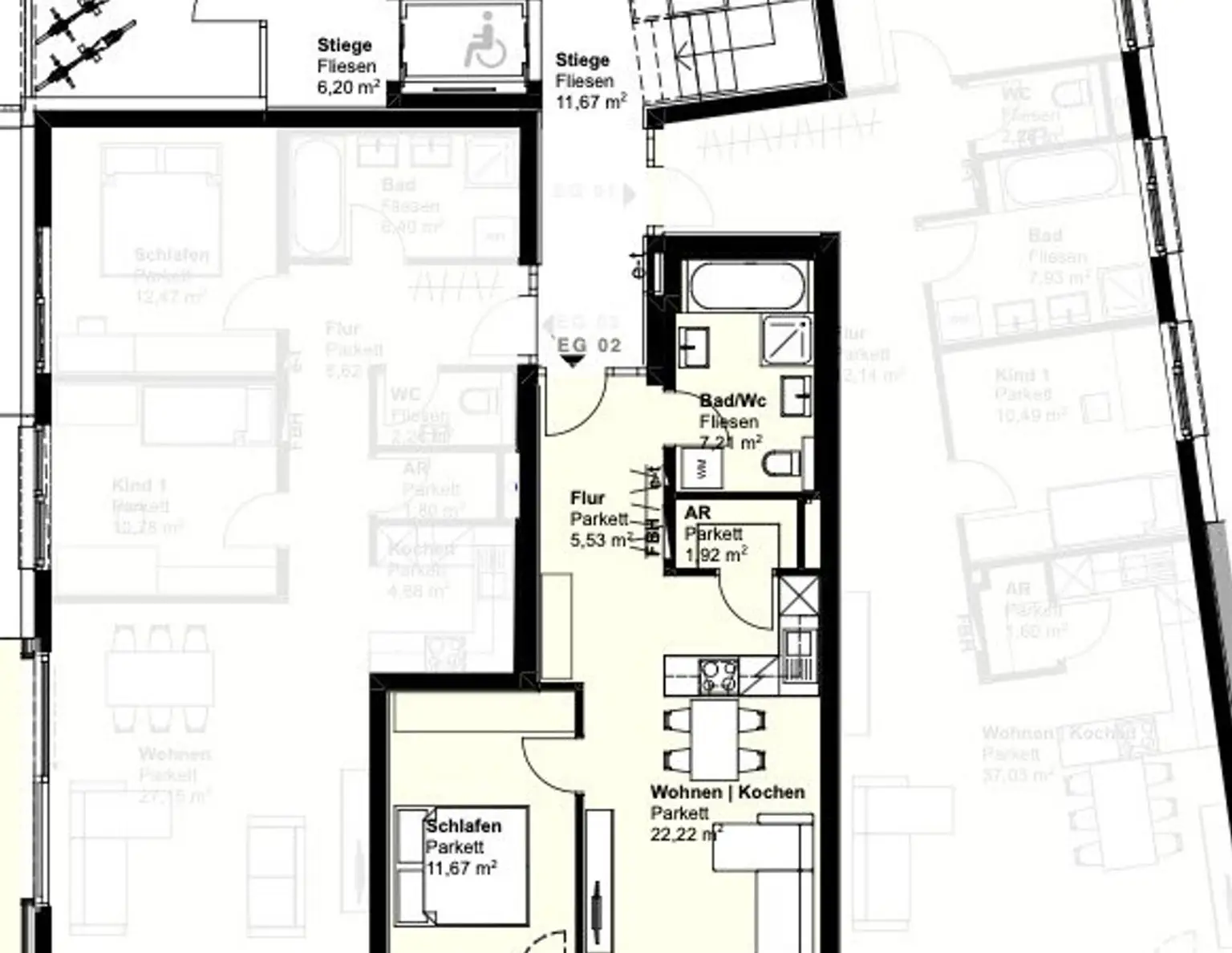
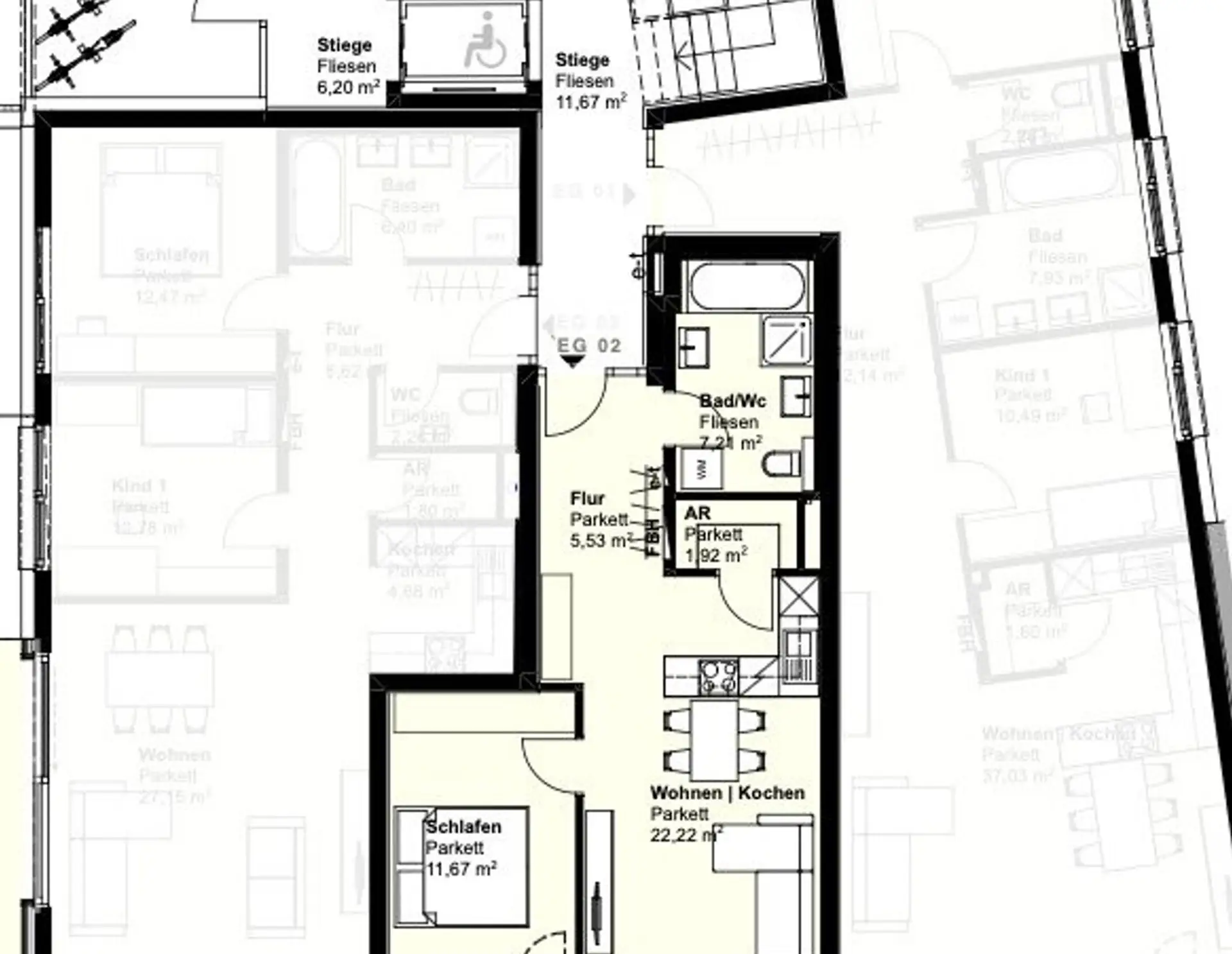
Nutzfläche:
48 m²
Zimmer:
2
Neubau:
Ja
Verfügbarkeit:
Verfügbar

Beschreibung

Lage: Die Parkvilla Laakirchen befindet sich in ruhiger und attraktiver Lage, in der Doktor-Wimberger-Straße, 4663 Laakirchen bei Gmunden. Die Umgebung überzeugt durch eine sehr gute Infrastruktur: Einkaufsmöglichkeit…

Neubau Invest und Management GmbH

Lade...