NEU - Passivhaus in Kilb

Haus zum Kauf in 3233 Kilb - Kaufpreis: 380.000 € / Objektnummer: 0001011437
Ausstattung: Wohnküche / offene Küche Bad Gäste-WC Möbliert Rollladen Kabel/Satelliten-TV Abstellraum Zentralheizung Fußbodenheizung Terrasse
Vogelperspektive
EG - Küche
Luftbild
OG - Badezimmer
EG - Wohnbereich
Lage
Ansicht
Terrasse
Blick zum Garten
Diele
Garten
EG - Küchenansicht
EG - WC
EG - Wohnbereich
OG - Zimmer 2
OG - Diele
OG - WC
OG - Zimmer 3
OG - Bad
OG - Diele
OG - Zimmer 1
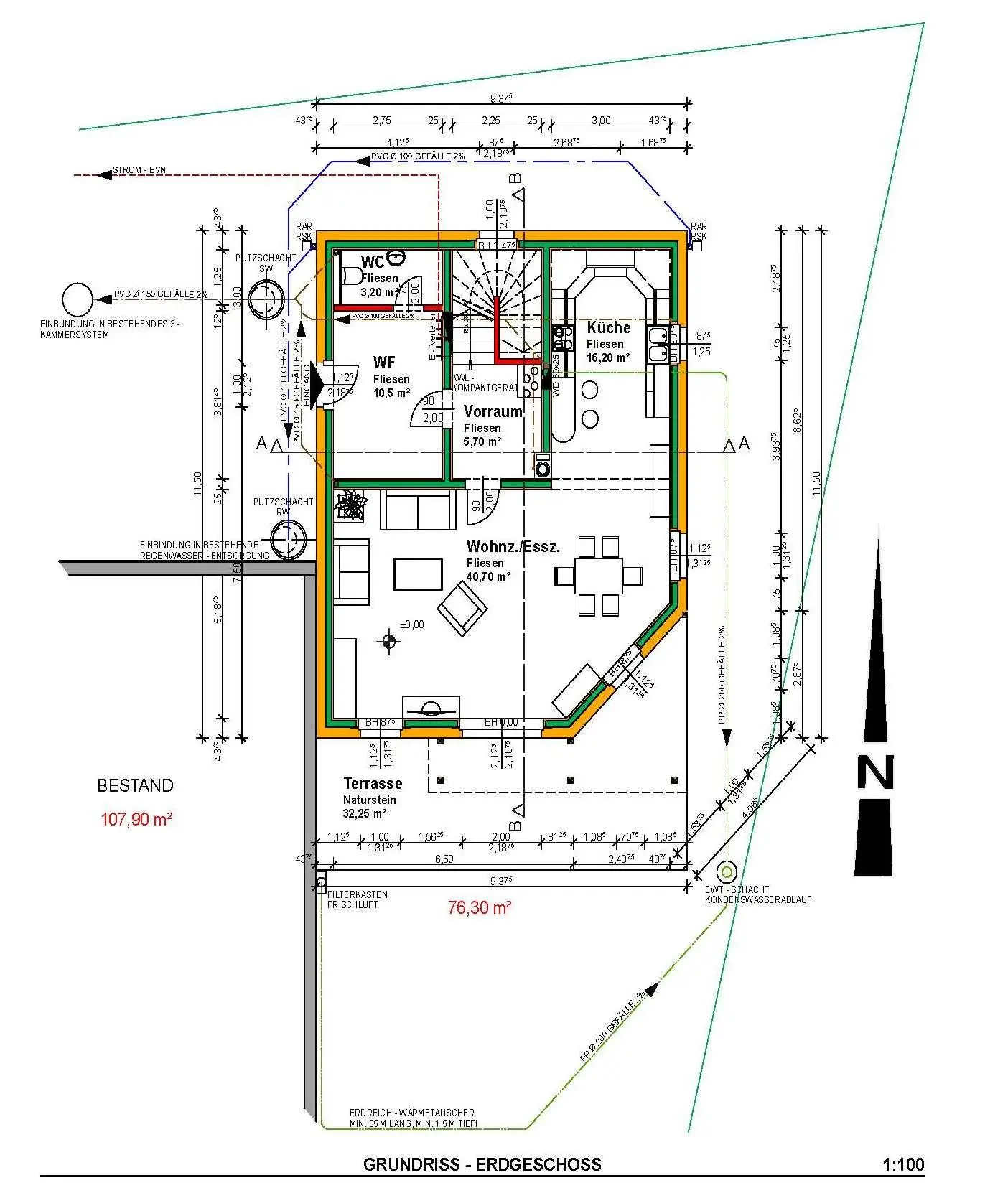
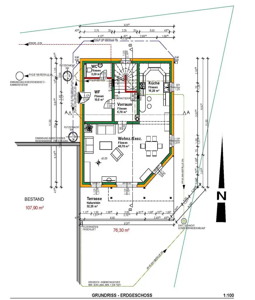
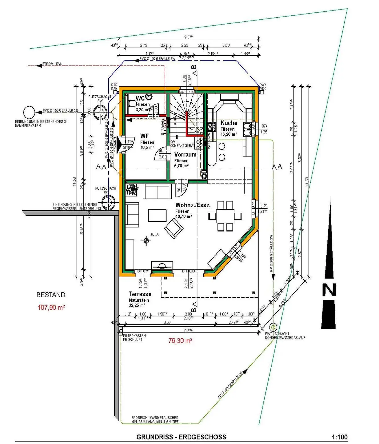
Erdgeschoss
Obergeschoss

Preisinformationen

Kaufpreis:
380.000 €
Betriebskosten netto:
32,00 € / Monat
Vermittlungsprovision:
Ja
Provision:
3% des Kaufpreises plus 20% USt.

Fakten

Objektnummer:
0001011437
Objekttyp:
Haus
Terrasse:
1
Wohnfläche:
152 m²
Grundstücksfläche:
1.320 m²
Zimmer:
4
Schlafzimmer:
3
Badezimmer:
1
Toilette:
2
Baujahr:
2010
Verfügbarkeit:
Verfügbar

Beschreibung

PASSIVHAUS IN KILB


In idyllischer Lage von Kilb erwartet Sie dieses hochwertig errichtete Passivhaus in Mantelbetonbauweise. Das 2010 erbaute Haus überzeugt durch durchdachte Raumaufteilung, energieeffiziente Ausstattung (HWB 10 – A++) und eine großzügige Grundstücksfläche von ca. 1.320 m².


Das angrenzende Haus daneben hat einen eigenen Eingang und eine eigene Zufahrt. Die beiden Häuser waren im Familienbesitz.


Ideal für Familien oder alle, die modernes, nachhaltiges Wohnen in naturnaher Umgebung schätzen.


ANBOTSPREIS: € 380.000,- inkl. Wohnbauförderung ca. € 57.500,-


Erdgeschoss – ca. 76,30 m²

  • Windfang
  • zusätzlicher Vorraum
  • separates WC
  • großzügiger Wohn- & Essbereich mit Ausgang auf die Terrasse
  • Küche


Obergeschoss – ca. 75,60 m²

  • Vorraum
  • drei Zimmer (ideal als Schlaf-, Kinder- oder Arbeitszimmer)
  • separates WC
  • großzügiges Badezimmer mit Dusche, Badewanne, Doppelwaschbecken und Waschmaschinenanschluss
  • Zugang zum Dachboden


Gesamtwohnfläche ca. 152m²


🌞 Ausstattung & Highlights


  • Passivhausstandard (HWB 10 – A++)
  • dreifach verglaste Holz/Alu-Fenster
  • elektrische Außenrollos & teilweise Fliegengitter
  • kontrollierte Wohnraumlüftung mit Wärmerückgewinnung
  • Fußbodenheizung im gesamten Haus
  • Zentralheizung mit Pellets
  • Photovoltaikanlage (7 kW)
  • SAT-Anlage vorhanden
  • Anschlussmöglichkeit für Schwedenofen


  • Grundstücksfläche ca. 1.320 m²
  • Grünland mit erhaltenswertem Gebäude
  • Terrasse
  • französische Balkone
  • Brunnen (gemeinsame Nutzung mit angrenzender Liegenschaft)
  • eigene Kläranlage (nur Wartungskosten, gemeinsame Nutzung)
  • Garage für zwei Autos
  • Carport für zwei Autos
  • genügend Autoabstellplätze


Nähere Informationen werden gerne übermittelt, bzw. freue ich mich sehr, Ihnen diese wunderschöne Liegenschaft präsentieren zu dürfen


Ich weiße sie darauf hin, dass ich als Doppelmakler auftrete!



RAIFFEISEN IMMOBILIEN

EXKLUSIVER VERTRIEB


KARIN PLESIUTSCHNIG

0664/60 517 517 63



! Wir möchten Sie informieren – Maklervertrag (FAGG-Bestimmungen)


Gerne übermitteln wir ihnen ein unverbindliches, kostenloses Angebot mit der Adresse der angefragten Immobilie bzw. vereinbaren mit Ihnen auf Wunsch einen Termin.

Alleine durch die Unterfertigung dieses Maklervertrages und die Besichtigung von Objekten entstehen Ihnen keine Kosten. Erst mit dem Abschluss eines Kaufvertrages oder eines Mietvertrages tritt Verdienstlichkeit ein und es wird die Provisionsvereinbarung dieses Vertrages ausgelöst!

Bitte haben Sie dafür Verständnis, dass wir Ihnen seit dem 13. Juni 2014 aufgrund der neuen EU-Richtlinie Unterlagen und Informationen zu unseren Objekten erst dann übersenden können, wenn wir Ihre Kontaktdaten inkl. Wohnadresse haben und Sie bestätigen, dass Sie unser vorzeitiges Tätigwerden wünschen und über Ihre Rücktrittsrechte aufgeklärt wurden. Hierfür erhalten Sie nach Ihrer Anfrage eine Email mit den entsprechenden Unterlagen und einem Link, um diese Punkte zu bestätigen.

Vielen Dank!

Beschreibung weiterlesen

Energieeffizienz

HWB:
10 kWh/(m²*a)
HWB Klasse:
A++
Ausstellung:
ab dem 1.5.2014

Dokumente

Grundrisse

Karin Plesiutschnig

Karin Plesiutschnig

Raiffeisen Immobilien Vermittlung Ges.m.b.H

Lade...

Fotomix

Vogelperspektive EG - Küche Luftbild OG - Badezimmer EG - Wohnbereich Lage Ansicht Terrasse Blick zum Garten Diele Garten EG - Küchenansicht EG - WC EG - Wohnbereich OG - Zimmer 2 OG - Diele OG - WC OG - Zimmer 3 OG - Bad OG - Diele OG - Zimmer 1