NEU - Planen Sie mit! Logisticarea Stadlhof Wels - Neubaugewerbeflächen

Lager zur Miete in 4600 Wels - Gesamtmiete: 42.877,83 € / Objektnummer: 4774
Ausstattung: Fahrstuhl Teeküche Klimaanlage
Ausschnitt Visualisierung2
Ausschnitt Visualisierung
Stadlhof1
Ausschnitt Visualisierung3
Stadlhof
Grundstück (8)
Grundstück
Grundstück (4)
Grundstück (6)
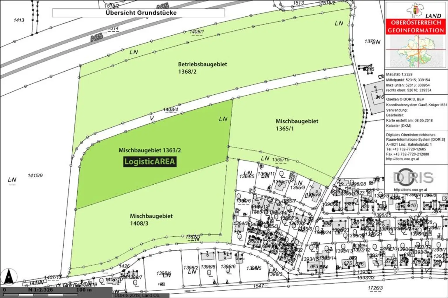
Kataster Markiert _ Stadlhof

Preisinformationen

Gesamtmiete:
42.877,83 € / Monat
Gesamtmiete (exkl. USt.):
35.731,52 € / Monat
Betriebskosten netto:
5.017,24 € / Monat
Umsatzsteuer:
7.146,31 €
Kaution:
130.000,00 €
Provision:
3.00 MM

Fakten

Objektnummer:
4774
Objekttyp:
Lager
Nutzfläche:
4.282,84 m²
Bürofläche:
734,4 m²
Lagerfläche:
3.548,44 m²
Neubau:
Ja
Verfügbarkeit:
Verfügbar

Beschreibung

NEUBAU GEWERBEFLÄCHEN IN WELS STADLHOF!

In zentraler Lage in Wels entsteht auf einem Grundstück mit MB-Widmung mit der LogisticAREA Stadlhof ein neuer Gewerbepark, optimal für Logistiker! Direkt an der Welser Autobahn A25 gelegen profitieren Sie von kurzen Wegen und den Möglichkeiten, vor Baubeginn noch nach Ihren Vorstellungen mitzugestalten.

Wichtigste Fakten der Lagerflächen:

3-fach stapelbar: 9,10 m Hallenhöhe bieten Raum für Ihre Waren und Güter!
keine Vorschriften betreffend Mindestanzahl an Mitarbeitern: viel Lagerfläche kann von wenigen fleißigen Händen betrieben werden!
Hallen sind beheizbar (Gasheizung mit Heißluftventilatoren)
Sprinkleranlage
Rampen und Rolltore zur Anlieferung
ausreichend Park- und Rangierflächen

Wichtigste Fakten der Büroflächen:

klimatisiert
CAT-6 Verkabelung
modernes Zutrittssystem
Gratisparkplätze

Gesamt stehen dem Nutzer bis zu 7.100 m² Lagerhallenfläche und 1.500 m² Bürofläche zur Verfügung, welche nach Vereinbarung auch teilbar sind.

Konditionen:
Lagerhalle:
Mietzins monatlich netto € 7/m²
BK Akonto monatlich netto € 1/m²

Büroflächen:
Mietzins monatlich netto € 8/m²
BK Akonto monatlich netto € 2/m²

Interesse? Bitte zögern Sie nicht, uns bei etwaigen Rückfragen oder zur Vereinbarung eines unverbindlichen Besichtigungs- bzw. Beratungstermines zu kontaktieren. Unser Team steht Ihnen gerne zur Verfügung!

PS: Zahlreiche weitere Immobilien finden Sie auf unserer Homepage unter www.projektas.at

Hinweis: Wir verarbeiten personenbezogene Daten zu geschäftlichen Zwecken. Nähere Informationen finden Sie unter www.projektas.at
Angaben gemäß gesetzlichem Erfordernis:
Miete 30714,28 zzgl 20% USt.
Betriebskosten 5017,24 zzgl 20% USt.
Umsatzsteuer 7146,31
---------------------------------
Gesamtbetrag 42877,83
---------------------------------
Heizwärmebedarf: 51.0 kWh/(m²a)
Klasse Heizwärmebedarf: C
Beschreibung weiterlesen

Energieeffizienz

HWB:
51 kWh/(m²*a)
HWB Klasse:
C
Energieausweisart:
Energiebedarfs-ausweis

Dokumente

Lageplan

4600 Wels | Wels (Stadt)

Lade...
Claudio Feistritzer

Claudio Feistritzer

PROJEKTAS - Feistritzer Hinz GmbH & Co OG

Anrufen
Lade...

Fotomix

Ausschnitt Visualisierung2 Ausschnitt Visualisierung Stadlhof1 Ausschnitt Visualisierung3 Stadlhof Grundstück (8) Grundstück Grundstück (4) Grundstück (6) Kataster Markiert _ Stadlhof