NEU - Preiswerte Büroflächen im Süden von Graz

Büro zur Miete in 8055 Graz-Puntigam - Gesamtmiete: 1.165,00 € / Objektnummer: 304
Innenansicht Büroflächen
Innenansicht Büroflächen
Innenansicht Büroflächen
Innenansicht Büroflächen
Innenansicht Büroflächen
Innenansicht Büroflächen
Innenansicht Stiegenhaus
1. OG
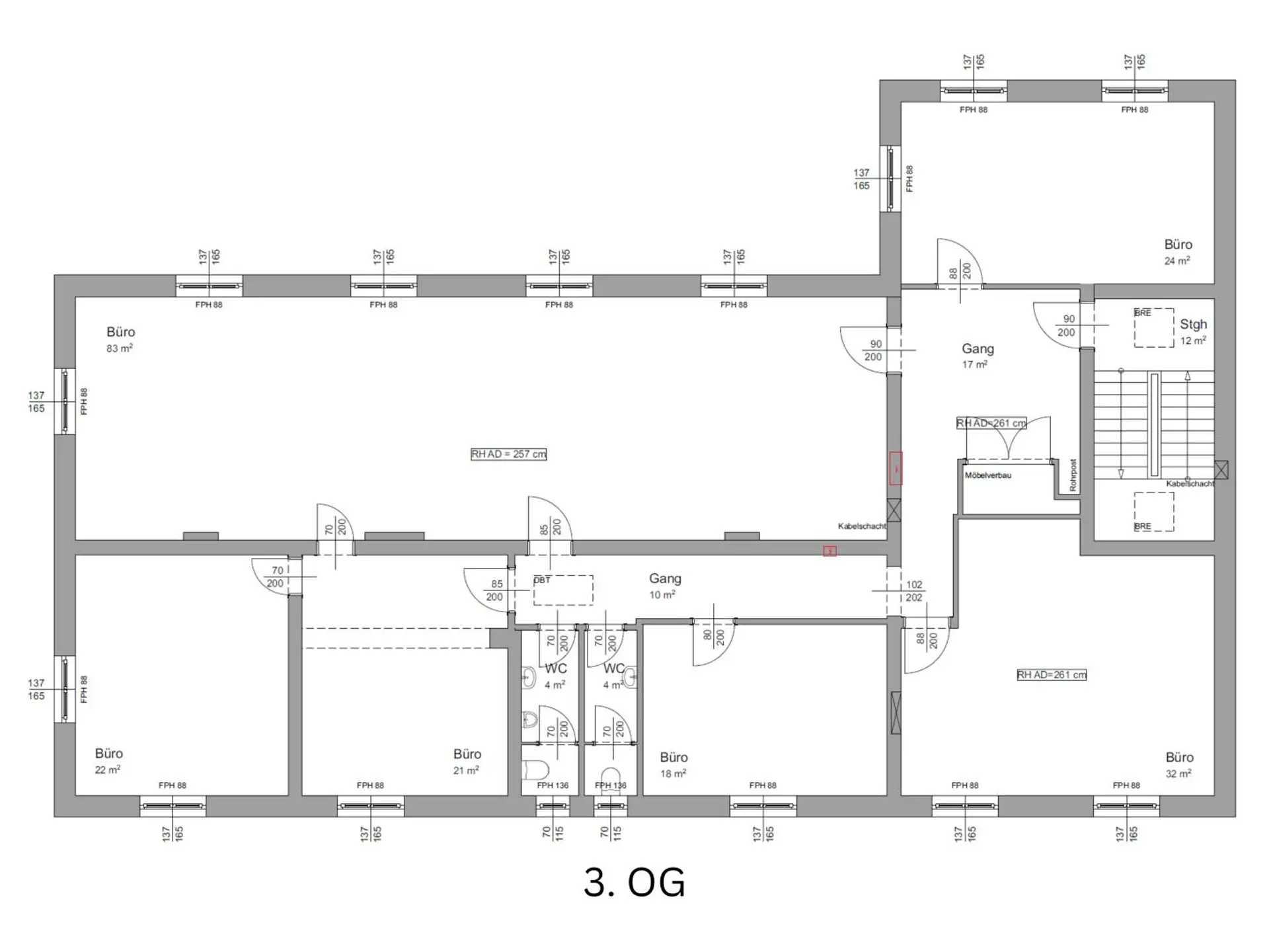
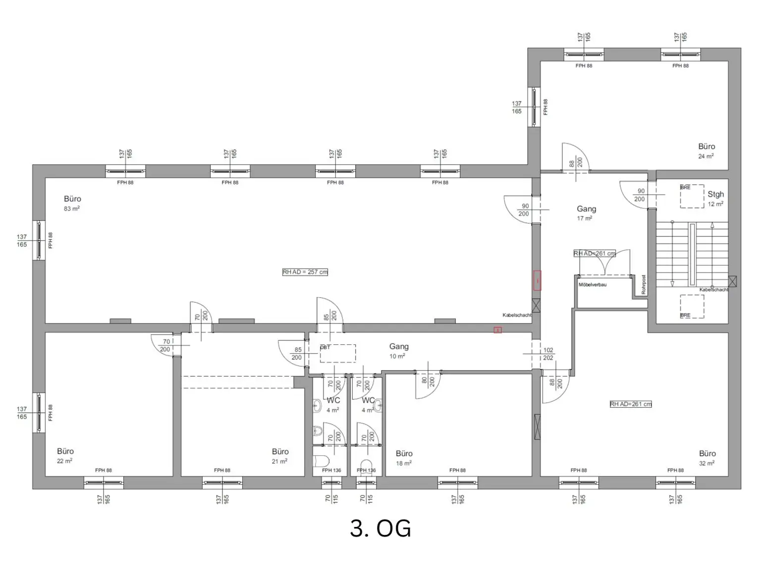
3. OG

Preisinformationen

Gesamtmiete:
1.165,00 € / Monat

Fakten

Objektnummer:
304
Objekttyp:
Büro
Nutzfläche:
233 m²
Bürofläche:
233 m²
Verfügbarkeit:
Verfügbar

Beschreibung

Eckdaten:
- Bauteil 1, 2. OG: ca. 233 m², bestehend aus 1 Großraumbüro, 5 Büroräume, Archiv-/Lagerraum, WC
- Bauteil 2, 1. OG: ca. 396 m², bestehend aus 2 Großraumbüros, 6 Büroräumen, Küche, Lager, WC

Ausstattung:
- 2 separate Stiegenaufgänge
- IT-Verkabelung (Glasfaser bei Bedarf möglich)
- Sanitärflächen in jedem Stockwerk
- kombinierbar nach Bedarf
- Möbelübernahme möglich
- Klimaanlage 

Mietkonditionen pro Monat zzgl. USt. / Verfügbarkeit:
Mietzins Bürofläche Bauteil 1: ca. € 1.165,-
Mietzins Bürofläche Bauteil 2: ca. € 2.376,-
Betriebskostenakonto: ca. € 1,30 / m²
Heizkostenakonto: ca. € 1,10 / m²
Verfügbarkeit: ab sofort

Lage & Beschreibung:
Zur sofortigen Vermietung gelangen flexible und preiswerte Büroflächen im Süden von Graz.
In der Nähe befinden sich Einrichtungen zur Nahversorgung und des täglichen Bedarfs. Die Straßenbahnlinie 5 befindet sich in fußläufiger Entfernung, vor Ort stehen ausreichend Parkplätze zur Verfügung.

Provision: gemäß Immobilienmakler-Verordnung 2010 sowie Maklergesetz 1996. Anbot unverbindlich und freibleibend.
Angaben gemäß gesetzlichem Erfordernis:
Miete 1165
Umsatzsteuer 0
---------------------------------
Gesamtbetrag 1165
Beschreibung weiterlesen

Lageplan

8055 Graz-Puntigam | Graz (Stadt)

Lade...
Nina Holzmeister

Nina Holzmeister

Schlager Immobilien GmbH

Lade...

Fotomix

Innenansicht Büroflächen Innenansicht Büroflächen Innenansicht Büroflächen Innenansicht Büroflächen Innenansicht Büroflächen Innenansicht Büroflächen Innenansicht Stiegenhaus 1. OG 3. OG