PROVISIONSFREI | Aspern Flats 103 - Ihr Traum vom Eigenheim im Grünen

Wohnung zum Kauf in 1220 Wien - Kaufpreis: 334.500 € / Objektnummer: 1240/233041
Ausstattung: Terrasse Garten

Preisinformationen

Kaufpreis:
334.500 €
Vermittlungsprovision:
Ja
Provision:
provisionsfrei

Fakten

Objektnummer:
1240/233041<span class="text-primary-500">&mdash; Reserviert</span>
Objekttyp:
Wohnung
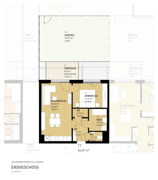
Terrasse:
1
Keller Fläche:
2,89 m²
Wohnfläche:
48,59 m²
Nutzfläche:
48,59 m²
Gesamtfläche:
55,89 m²
Gartenfläche:
52,29 m²
Zimmer:
2
Baujahr:
2023
Neubau:
Ja
Zustand:
Erstbezug
Verfügbarkeit:
Reserviert

Beschreibung

ASPERN FLATS 103

IHR TRAUM VOM EIGENHEIM IM GRÜNEN

 

Das in Bau befindliche Wohnprojekt in Wien in der Wulzendorfstraße 103, 1220 Wien verfügt über 61 provisionsfreie Eigentumswohnungen auf Eigengrund in den Größen 33 m² bis 101 m² mit 1 bis 4 Zimmer sowie 2 Büroflächen. Es stehen für alle Personen, die eine Eigentumswohnung kaufen möchten, private Freiflächen wie Dachterrassen, Terrassen, Loggien, Balkone und Eigengärten zur Verfügung. Die Wärmeversorgung erfolgt über Luft-Wärme-Pumpe.

34 PKW-Stellplätze stehen in der hauseigenen Tiefgarage bereit, wenn Sie hier Ihre neue Wohnung kaufen.

Der Standort überzeugt durch seine sehr gute Anbindung an das öffentliche Verkehrsnetz - eine Bushaltestelle befindet sich in unmittelbarer Nähe der Anlage. (ca.50 Meter). Kurze Fußwege für tägliche Erledigungen wie Einkauf, Bildung, Sport und Freizeit sind ebenfalls gegeben – ideal für die Eigentumswohnung in Wien.        

Alle Wohnungen werden schlüsselfertig übergeben, d.h. alle Sanitäranlagen, Fliesen und Parkettböden sind im Kaufpreis inkludiert. Details über die Ausstattung der Wohnungen entnehmen Sie gerne der Leistungsbeschreibung im Booklet.

 

SPAREN SIE JETZT BIS ZU 5,9% NEBENGEBÜHREN!

Ihr Vorteil beim Erwerb einer Haring Group Immobilie:

- Provisionsfrei! Alle Eigentumsobjekte werden ohne Provision (3,6% inkl. MwSt.) angeboten!
- Keine Eintragungsgebühr: Von 1.7.2024 bis 1.7.2026 entfallen die Gebühren für die Grundbucheintragung (1,1%) und die Eintragungsgebühren des Pfandrechts (1,2%).*

 

* Laut Wohn- & Baupaket der Regierung entfallen die Eintragungsgebühren ins Grundbuch bei einem Kaufpreis von bis zu € 500.000,- pro Käufer:in komplett, wenn der Immobilienerwerb für den Hauptwohnsitz dient. Kaufen zwei Personen eine Immobilie, verdoppelt sich die Obergrenze auf € 1.000.000,-.

 

Renderings: Symbolbilder (c) bildraum.at

Wir weisen darauf hin, dass zwischen dem Vermittler und dem zu vermittelnden Dritten ein familiäres oder wirtschaftliches Naheverhältnis besteht.

Der Vermittler ist als Doppelmakler tätig.

Infrastruktur / Entfernungen

Gesundheit
Arzt <225m
Apotheke <725m
Klinik <825m
Krankenhaus <1.150m

Kinder & Schulen
Schule <450m
Kindergarten <250m
Universität <2.625m
Höhere Schule <2.525m

Nahversorgung
Supermarkt <125m
Bäckerei <650m
Einkaufszentrum <3.200m

Sonstige
Geldautomat <650m
Bank <725m
Post <700m
Polizei <525m

Verkehr
Bus <75m
U-Bahn <825m
Straßenbahn <525m
Bahnhof <1.000m
Autobahnanschluss <2.325m

Angaben Entfernung Luftlinie / Quelle: OpenStreetMap
Beschreibung weiterlesen

Energieeffizienz

HWB:
31,6 kWh/(m²*a)
HWB Klasse:
B
fGEE:
0,73
fGEE Klasse:
A
Energieausweisart:
Energiebedarfs-ausweis
Gültig bis:
13.09.2032

Dokumente

Grundriss

Lageplan

1220 Wien | Wien 22., Donaustadt

Lade...
Haring Immobilien Treuhand GmbH

Haring Immobilien Treuhand GmbH

Haring Group Bauträger GmbH

Lade...

Fotomix

Bild 1 Bild 2 Bild 3 Bild 4