NEU - PROVISIONSFREI & Erstbezug Doppelhaushälften

Haus zum Kauf in 2103 Langenzersdorf - Kaufpreis: 450.000 € / Objektnummer: 1975
Ausstattung: Bad Parkplatz Außenparkplatz Fußbodenheizung Terrasse Garten
Luftbild
Außenansicht
Außenansicht
Wohnküche (Einrichtungsvorschlag)
Schlafzimmer (Einrichtungsvorschlag)
Bad (Einrichtungsvorschlag)
Wohnbereich (Einrichtungsvorschlag)
Grundriss EG
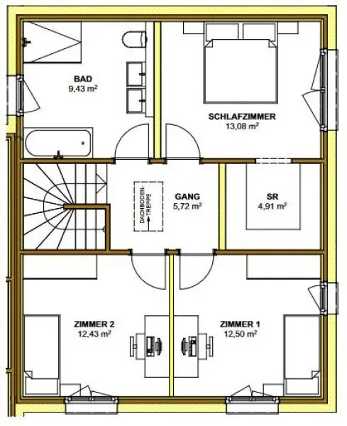
Grundriss OG
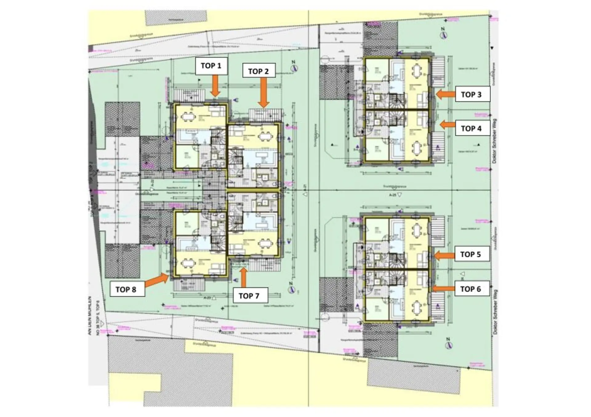
Übersicht/Lageplan
Lageplan

Preisinformationen

Kaufpreis:
450.000 €

Fakten

Objektnummer:
1975
Objekttyp:
Haus
Terrasse:
1
Wohnfläche:
119,81 m²
Gartenfläche:
179,08 m²
Zimmer:
4
Badezimmer:
2
Toilette:
2
Baujahr:
2026
Neubau:
Ja
Zustand:
Erstbezug
Verfügbarkeit:
Verfügbar

Beschreibung

Mit hervorragendem Preis-Leistungs-Verhältnis entstehen acht hochwertige Doppelhaushälften in Langenzersdorf mit günstigem monatlichen Baurechtszins von nur € 192.- !

 

Projektbeschreibung
Nur wenige Minuten von Wien entfernt, werden in nachhaltiger Massivholzbauweise moderne Doppelhaushälften errichtet. Das Projekt vereint ökologisches Wohnen, moderne Architektur und höchsten Wohnkomfort – ideal für Familien und anspruchsvolle Paare.

Die durchdachte Bauweise, praktische Planung und hochwertige Ausstattung sorgen für ein gesundes Raumklima und energieeffizientes Wohnen auf höchstem Niveau.

Die Übergabe der belagsfertigen Häuser ist mit Anfang 2027 geplant!

 

Ausstattung
Massivholzbauweise (CLT) – natürlich, nachhaltig und langlebig

Dreifach verglaste Kunststoff-Alu Fenster für optimale Wärmedämmung und Schallschutz, großzügige Hebe-Schiebetüre

Luftwärmepumpe (230Liter Warmwasserspeicher) – umweltfreundliche, energieeffiziente Heiztechnik

Vollwärmeschutzfassade mit 22 cm Dämmstärke

elektrische Rollläden

Fußbodenheizung in allen Wohnräumen

Durchdachte Grundrisse mit lichtdurchfluteten Wohnbereichen und großzügigen Freiflächen

Raumhöhe 270 cm im Erdgeschoß

Terrasse und Garten (ca. 121,40 - ca. 213 m²)

Eine schlüsselfertige Ausführung ist gegen Aufpreis möglich

 

Lage
Langenzersdorf liegt direkt an der nördlichen Stadtgrenze zu Wien und bietet die perfekte Kombination aus städtischer Nähe und ländlicher Idylle.

Die Verkehrsanbindung ist hervorragend: die S-Bahnstation "Bisamberg" ist in wenigen Minuten fußläufig erreichbar, die Buslinie 850 (Bhf Floridsdorf - Bhf Korneuburg) unweit entfernt und Autobahnanbindung (A22, B3) in unmittelbarer Nähe.

 

Infrastruktur
Schulen, Kindergärten und medizinische Versorgung im Ort

Nahversorger, Cafés und Restaurants hervorragend erreichbar

Reichhaltiges Freizeitangebot mit Donauinsel, Seeschlacht, Bisamberg, Rad- und Wanderwegen in unmittelbarer Nähe

Langenzersdorf überzeugt durch seine hohe Lebensqualität – ein Ort, an dem sich urbanes Leben und Natur harmonisch verbinden.

 

Baurecht
Vertragslaufzeit bis 2105, 60 jähriger Kündigungsverzicht seitens des Stifts Klosterneuburg 

Monatlicher Baurechtszins von nur € 192,- an das Chorherrenstift Klosterneuburg zu entrichten.

 

Abwicklung
Treuhänderin ist Mag. Marlene Krüger, die Vertragsabwicklung kostet 1,5% zzgl. 20% MwSt. und beinhaltet Kaufvertrag, Geldwäscheprüfung und Treuhandschaft.

Pfandrechtliche Sicherstellungen für die finanzierende Bank werden gesondert verrechnet, sofern diese notwendig sind.

 

Sonstiges
Die Anschlusskosten (Wasser, Kanal, Strom) i.H.v. € 7.980,- sind separat zu bezahlen.

"Belagsfertig" bedeutet, dass die Wand-, Decken- und Bodenbeläge sowie Armaturen noch auf die vom Bauträger vorbereiteten Untergründe aufgetragen werden müssen. Die belagsfertige Variante läßt den Käufern den größtmöglichen Spielraum bei der individuellen Wahl der Ausgestaltung der Belagsflächen bei gleichzeitiger Reduktion der Nebenkosten des Kaufes. 

Haus 7 wird in belagsfertigem Zustand angeboten und verfügt über ca. 120 m² Wohnfläche, 4 Zimmern und Nebenräumen auf 2 Geschoßen.

Raumaufteilung im Erdgeschoß / Wohnbereich: Vorraum, Technikraum, Speis, großzügiger Wohn-Essbereich mit Küche und Ausgang auf die Terrasse, 1 WC mit Anschlussvorbereitung für ein Handwaschbecken und eine Dusche

Raumaufteilung im Obergeschoß/ Ruhebereich: Flur mit zentral begehbaren Zimmern, davon 2 Kinder/Schlaf/Homeoffice/Zimmer, 1 Master- Bedroom mit Schrankraum, 1 großes  Badezimmer (Vorbereitung für Waschtisch, Badewanne, Dusche & WC)

Terrassen/Gartenflächen: ca. 190 m² 

Stellplätze: 2 vorgeschriebene Stellplätze sind im Kaufpreis inkludiert und zugeordnet

Hinweis gemäß Energieausweisvorlagegesetz: Ein Energieausweis wurde vom Eigentümer bzw. Verkäufer, nach unserer Aufklärung über die generell geltende Vorlagepflicht, sowie Aufforderung zu seiner Erstellung noch nicht vorgelegt. Daher gilt zumindest eine dem Alter und der Art des Gebäudes entsprechende Gesamtenergieeffizienz als vereinbart. Wir übernehmen keinerlei Gewähr oder Haftung für die tatsächliche Energieeffizienz der angebotenen Immobilie.

Der Vermittler ist als Doppelmakler tätig.

Infrastruktur / Entfernungen

Gesundheit
Arzt <1.000m
Apotheke <1.000m
Klinik <5.500m
Krankenhaus <1.750m

Kinder & Schulen
Schule <1.000m
Kindergarten <1.000m
Universität <3.250m
Höhere Schule <6.500m

Nahversorgung
Supermarkt <1.000m
Bäckerei <1.000m
Einkaufszentrum <3.000m

Sonstige
Bank <1.000m
Geldautomat <1.000m
Post <1.000m
Polizei <1.250m

Verkehr
Bus <250m
Straßenbahn <3.750m
U-Bahn <7.250m
Bahnhof <750m
Autobahnanschluss <2.000m

Angaben Entfernung Luftlinie / Quelle: OpenStreetMap
Beschreibung weiterlesen

Grundrisse

Lageplan

2103 Langenzersdorf | Korneuburg

Lade...
Mario Schmid

Mario Schmid
zertifizierter Maklerassistent

Ideal Real Immobilien GmbH

Lade...

Fotomix

Luftbild Außenansicht Außenansicht Wohnküche (Einrichtungsvorschlag) Schlafzimmer (Einrichtungsvorschlag) Bad (Einrichtungsvorschlag) Wohnbereich (Einrichtungsvorschlag)