NEU - PROVISIONSFREI ! Exklusive Eigentumswohnungen mit Freifläche , Erstbezug Nachhaltig

Wohnung zum Kauf in 2344 Maria Enzersdorf - Kaufpreis: 293.300 € / Objektnummer: 16766
Ausstattung: Boden Fahrstuhl Bad Klimaanlage Tiefgarage Parkplatz Fahrradraum Fußbodenheizung Loggia

Preisinformationen

Kaufpreis:
293.300 €
Betriebskosten netto:
93,53 € / Monat
Provision:
Provision bezahlt der Abgeber.

Fakten

Objektnummer:
16766
Objekttyp:
Wohnung
Loggia:
1
Keller Fläche:
3,04 m²
Wohnfläche:
41,9 m²
Loggia Fläche:
2,78 m²
Zimmer:
2
Badezimmer:
1
Toilette:
1
Stockwerk:
1
Baujahr:
2025
Neubau:
Ja
Zustand:
Erstbezug
Verfügbarkeit:
Verfügbar
Verfügbar ab:
sofort

Beschreibung

EXKLUSIVE NEUBAU-EIGENTUMSWOHNUNGEN MIT FREIFLÄCHEN – „DIE OASE“ IN MARIA ENZERSDORF

PROJEKTBESCHREIBUNG

Willkommen in „Die Oase“ in Maria Enzersdorf – einem exklusiven Neubauprojekt mit hochwertig ausgestatteten Eigentumswohnungen in ruhiger Grünlage südlich von Wien. Das Projekt verbindet modernes Wohnen, nachhaltige Bauweise und hervorragende Infrastruktur zu einem Wohnkonzept mit hoher Lebensqualität. 

Insgesamt umfasst das Projekt 26 Wohnungen, jede individuell geplant und mit großzügigen Freiflächen wie Terrassen, Loggien oder privaten Gärten. Die Architektur legt besonderen Wert auf lichtdurchflutete Räume, offene Grundrisse und eine hochwertige Materialauswahl. 

Die Wohnungen sind ideal für Singles, Paare oder Familien, die urbanen Komfort mit ruhigem Wohnen im Grünen verbinden möchten.

 

WOHNUNGSANGEBOT

*
1 bis 5 Zimmer Wohnungen

*
Gartenwohnungen mit privaten Grünflächen

*
Wohnungen mit Loggia oder großzügigen Terrassen

*
exklusive Penthouses mit Dachterrassen und Weitblick

*
individuell geplante Grundrisse – jede Einheit ein Unikat

Kaufpreise ab ca. € 293.300,- (je nach Größe und Lage der Wohnung). 

 

AUSSTATTUNG & HIGHLIGHTS

Die Wohnungen überzeugen durch hochwertige Ausstattung und nachhaltige Technik:

*
Luftwärmepumpe (Energieeffizienz A++)

*
Photovoltaikanlage und begrünte Dächer

*
Fußbodenheizung

*
hochwertige 3-fach verglaste Aluminiumfenster

*
edles Eichenparkett und großformatige Feinsteinzeugfliesen

*
hochwertige Bad- und Fliesenausstattung von Porcelanosa

*
Vorbereitung für Klimaanlage

*
großzügige Terrassen, Loggien oder Eigengärten

*
Edelstahlgeländer und hochwertige Holzfassade

*
Lift und direkter Zugang zur Garage

*
E-Mobilitäts-Lademöglichkeiten

Die Bauweise mit Holz- und Massivbauelementen sowie moderner Dämmung sorgt für niedrige Betriebskosten und ein angenehmes Raumklima. 

INTERESSE GEWECKT?

Für Fragen oder die Vereinbarung eines Besichtigungstermins steht Ihnen Frau Magalie Felsinger gerne zur Verfügung:

📞 0664 103 20 25
🌐 www.ringsmuth-immobilien.at [http://www.ringsmuth-immobilien.at/]

_Irrtümer und Änderungen vorbehalten._

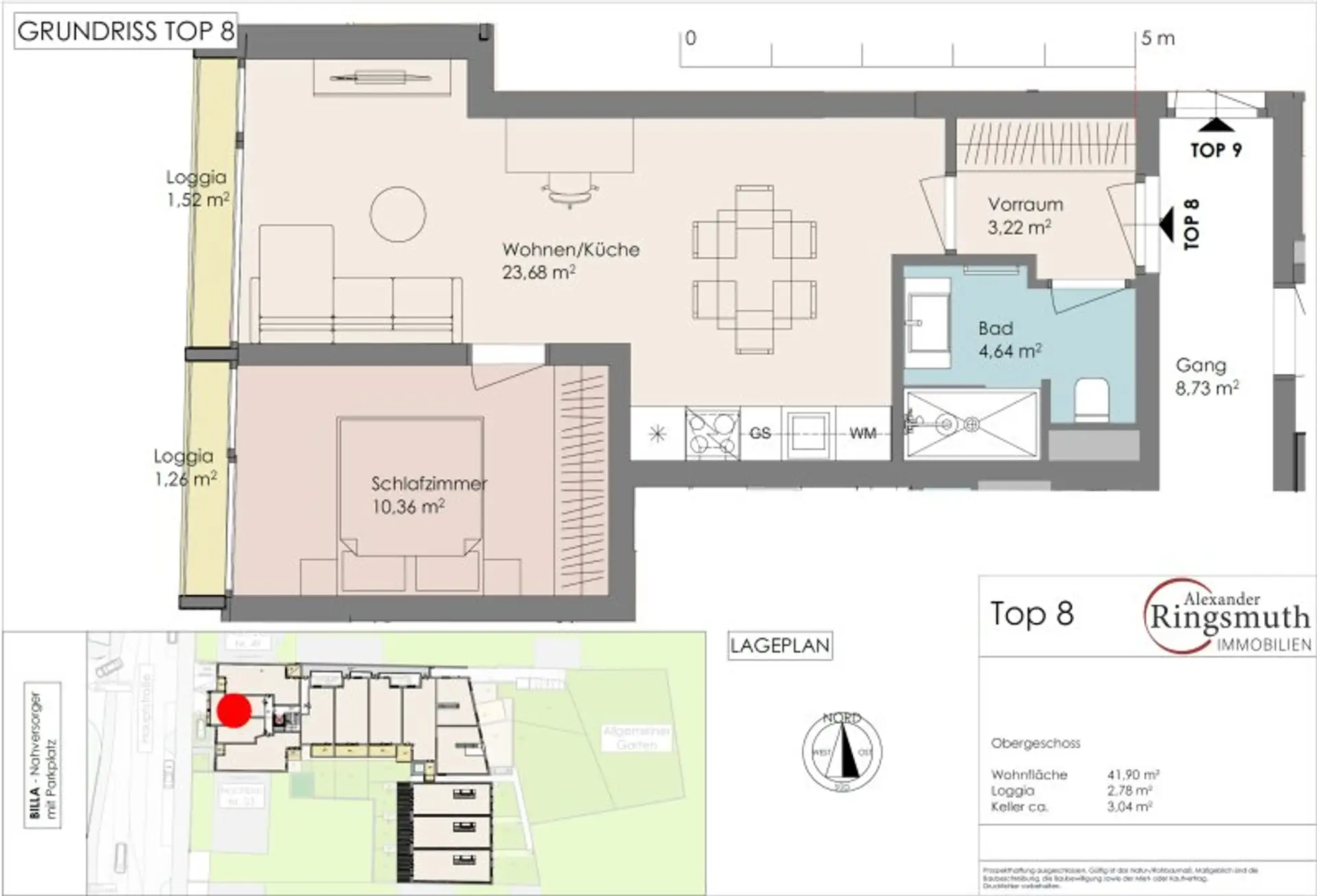
2-Zimmer-Wohnung im Obergeschoss – „Die Oase“ Maria Enzersdorf

In der modernen Wohnanlage „Die Oase“ in Maria Enzersdorf steht diese kompakte 2-Zimmer-Wohnung im Obergeschoss zum Verkauf. Sie überzeugt durch eine durchdachte Raumaufteilung, helle Wohnbereiche und eine kleine Loggia.

Eckdaten:

*
Wohnfläche: 41,90 m²

*
Wohnen/Küche 23,68 m²

*
Schlafzimmer 10,36 m²

*
Bad 4,64 m²

*
Vorraum 3,22 m²

*
Loggia: 2,78 m²

*
Kellerabteil: 3,04 m²

*
Zimmer: 2

Raumaufteilung und Wohngefühl
Der Wohn- und Essbereich bildet das Herzstück der Wohnung und bietet Zugang zur Loggia. Das Schlafzimmer kann flexibel genutzt werden. Große Fenster sorgen für ein helles und freundliches Wohnambiente.

Außenbereich
Die Loggia erweitert den Wohnraum nach außen und bietet eine kleine, geschützte Fläche für frische Luft und Entspannung.

Ausstattung

*
Fußbodenheizung

*
Hochwertige Materialien

*
Moderne Architektur

*
Energieeffiziente Bauweise

INTERESSE GEWECKT?

Für Fragen oder die Vereinbarung eines Besichtigungstermins steht Ihnen Frau Magalie Felsinger gerne zur Verfügung:

📞 0664 103 20 25
🌐 www.ringsmuth-immobilien.at [http://www.ringsmuth-immobilien.at/]

_Irrtümer und Änderungen vorbehalten._

Infrastruktur / Entfernungen

Gesundheit
Arzt <500m
Apotheke <500m
Klinik <1.000m
Krankenhaus <1.000m

Kinder & Schulen
Schule <500m
Kindergarten <500m
Höhere Schule <1.500m

Nahversorgung
Supermarkt <500m
Bäckerei <500m
Einkaufszentrum <1.000m

Sonstige
Bank <500m
Geldautomat <500m
Post <500m
Polizei <500m

Verkehr
Bus <500m
U-Bahn <5.500m
Straßenbahn <5.000m
Bahnhof <1.000m
Autobahnanschluss <3.000m

Angaben Entfernung Luftlinie / Quelle: OpenStreetMap
Beschreibung weiterlesen

Lage und Verkehrsanbindung

Das Projekt befindet sich in Maria Enzersdorf und bietet eine ideale Kombination aus Natur, Ruhe und urbaner Infrastruktur.
In unmittelbarer Umgebung finden Sie:
Nahversorger, Apotheke und Ärztezentrum
Kindergärten und Schulen
Busverbindungen nach Mödling, Perchtoldsdorf und Wien
das Landesklinikum Mödling
Für Freizeit und Erholung liegen Naturpark Föhrenberge, Weinberge sowie die Burg Liechtenstein nur wenige Minuten entfernt.
Die Anbindung an die A2, S1 und A21 ist ebenfalls schnell erreichbar und ermöglicht eine rasche Verbindung nach Wien und in die umliegenden Regionen.

Energieeffizienz

HWB:
46 kWh/(m²*a)
HWB Klasse:
B
fGEE:
0,73
fGEE Klasse:
A
Energieausweisart:
Energiebedarfs-ausweis
Gültig bis:
08.08.2034

Lageplan

2344 Maria Enzersdorf | Mödling

Lade...
Magalie Felsinger

Magalie Felsinger

Alexander Ringsmuth GmbH

Lade...

Fotomix

Bild 1 Bild 2 Bild 3 Bild 4 Bild 5