NEU - PROVISIONSFREI ! Exklusive Eigentumswohnungen mit Freifläche , Erstbezug Nachhaltig

Wohnung zum Kauf in 2344 Maria Enzersdorf - Kaufpreis: 453.400 € / Objektnummer: 16764
Ausstattung: Boden Fahrstuhl Tiefgarage Parkplatz Fahrradraum Fußbodenheizung Balkon Loggia

Preisinformationen

Kaufpreis:
453.400 €
Betriebskosten netto:
155,88 € / Monat
Provision:
Provision bezahlt der Abgeber.

Fakten

Objektnummer:
16764
Objekttyp:
Wohnung
Balkon:
1
Loggia:
1
Balkonfläche:
4,83 m²
Keller Fläche:
3,04 m²
Wohnfläche:
68,41 m²
Loggia Fläche:
2,43 m²
Zimmer:
3
Toilette:
1
Stockwerk:
1
Baujahr:
2025
Neubau:
Ja
Zustand:
Erstbezug
Verfügbarkeit:
Verfügbar
Verfügbar ab:
sofort

Beschreibung

EXKLUSIVE NEUBAU-EIGENTUMSWOHNUNGEN MIT FREIFLÄCHEN – „DIE OASE“ IN MARIA ENZERSDORF

PROJEKTBESCHREIBUNG

Willkommen in „Die Oase“ in Maria Enzersdorf – einem exklusiven Neubauprojekt mit hochwertig ausgestatteten Eigentumswohnungen in ruhiger Grünlage südlich von Wien. Das Projekt verbindet modernes Wohnen, nachhaltige Bauweise und hervorragende Infrastruktur zu einem Wohnkonzept mit hoher Lebensqualität. 

Insgesamt umfasst das Projekt 26 Wohnungen, jede individuell geplant und mit großzügigen Freiflächen wie Terrassen, Loggien oder privaten Gärten. Die Architektur legt besonderen Wert auf lichtdurchflutete Räume, offene Grundrisse und eine hochwertige Materialauswahl. 

Die Wohnungen sind ideal für Singles, Paare oder Familien, die urbanen Komfort mit ruhigem Wohnen im Grünen verbinden möchten.

 

WOHNUNGSANGEBOT

*
1 bis 5 Zimmer Wohnungen

*
Gartenwohnungen mit privaten Grünflächen

*
Wohnungen mit Loggia oder großzügigen Terrassen

*
exklusive Penthouses mit Dachterrassen und Weitblick

*
individuell geplante Grundrisse – jede Einheit ein Unikat

Kaufpreise ab ca. € 293.300,- (je nach Größe und Lage der Wohnung). 

 

AUSSTATTUNG & HIGHLIGHTS

Die Wohnungen überzeugen durch hochwertige Ausstattung und nachhaltige Technik:

*
Luftwärmepumpe (Energieeffizienz A++)

*
Photovoltaikanlage und begrünte Dächer

*
Fußbodenheizung

*
hochwertige 3-fach verglaste Aluminiumfenster

*
edles Eichenparkett und großformatige Feinsteinzeugfliesen

*
hochwertige Bad- und Fliesenausstattung von Porcelanosa

*
Vorbereitung für Klimaanlage

*
großzügige Terrassen, Loggien oder Eigengärten

*
Edelstahlgeländer und hochwertige Holzfassade

*
Lift und direkter Zugang zur Garage

*
E-Mobilitäts-Lademöglichkeiten

Die Bauweise mit Holz- und Massivbauelementen sowie moderner Dämmung sorgt für niedrige Betriebskosten und ein angenehmes Raumklima. 

INTERESSE GEWECKT?

Für Fragen oder die Vereinbarung eines Besichtigungstermins steht Ihnen Frau Magalie Felsinger gerne zur Verfügung:

📞 0664 103 20 25
🌐 www.ringsmuth-immobilien.at [http://www.ringsmuth-immobilien.at/]

_Irrtümer und Änderungen vorbehalten._

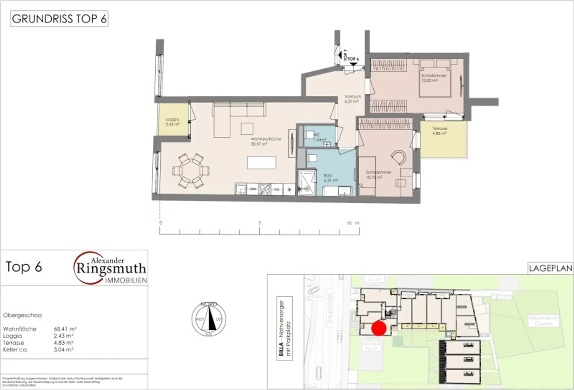
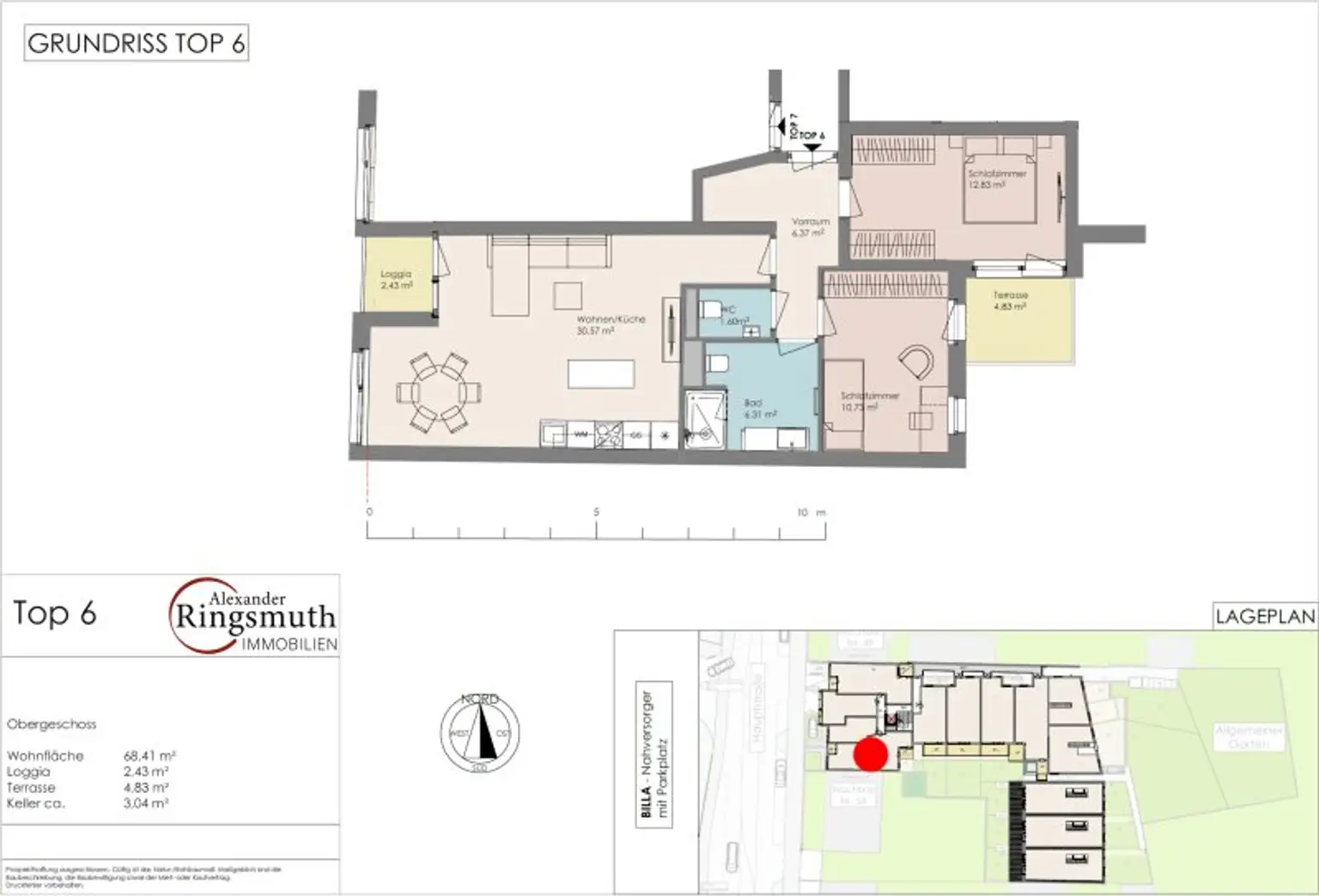
Attraktive 3-Zimmer-Wohnung im Obergeschoss 

Diese moderne 3-Zimmer-Wohnung im Obergeschoss der Wohnanlage „Die Oase“ in Maria Enzersdorf überzeugt durch eine durchdachte Raumaufteilung, helle Wohnräume und eine angenehme Wohnatmosphäre in naturnaher Lage.

Eckdaten:

*
Wohnfläche: 68,41 m²

*
Wohnen/Küche 30,57 m²

*
1 Schlafzimmer 12,83 m²

*
2 Schlafzimmer 10,73 m²

*
Vorraum 6,37 m²

*
Bad 6,31 m²

*
WC 1,60 m²

*
Loggia: 2,43 m²

*
Balkon: 4,83 m²

*
Kellerabteil: 3,04 m²

*
Zimmer: 3

Raumaufteilung und Wohngefühl
Der großzügige Wohn- und Essbereich bildet das Zentrum der Wohnung und bietet direkten Zugang zu Loggia und Balkon. Große Fensterflächen sorgen für viel Tageslicht und schaffen ein offenes, freundliches Ambiente.

Zwei weitere Zimmer bieten ausreichend Platz für individuelle Nutzung – ob als Schlafzimmer, Kinderzimmer oder Homeoffice.

Außenflächen
Loggia und Balkon erweitern den Wohnraum und bieten angenehme Rückzugsmöglichkeiten im Freien.

Ausstattung

*
Fußbodenheizung

*
Hochwertige Ausführung

*
Moderne Architektur

*
Energieeffiziente Bauweise

INTERESSE GEWECKT?

Für Fragen oder die Vereinbarung eines Besichtigungstermins steht Ihnen Frau Magalie Felsinger gerne zur Verfügung:

📞 0664 103 20 25
🌐 www.ringsmuth-immobilien.at [http://www.ringsmuth-immobilien.at/]

_Irrtümer und Änderungen vorbehalten._

 

Infrastruktur / Entfernungen

Gesundheit
Arzt <500m
Apotheke <500m
Klinik <1.000m
Krankenhaus <1.000m

Kinder & Schulen
Schule <500m
Kindergarten <500m
Höhere Schule <1.500m

Nahversorgung
Supermarkt <500m
Bäckerei <500m
Einkaufszentrum <1.000m

Sonstige
Bank <500m
Geldautomat <500m
Post <500m
Polizei <500m

Verkehr
Bus <500m
U-Bahn <5.500m
Straßenbahn <5.000m
Bahnhof <1.000m
Autobahnanschluss <3.000m

Angaben Entfernung Luftlinie / Quelle: OpenStreetMap
Beschreibung weiterlesen

Lage und Verkehrsanbindung

Das Projekt befindet sich in Maria Enzersdorf und bietet eine ideale Kombination aus Natur, Ruhe und urbaner Infrastruktur.
In unmittelbarer Umgebung finden Sie:
Nahversorger, Apotheke und Ärztezentrum
Kindergärten und Schulen
Busverbindungen nach Mödling, Perchtoldsdorf und Wien
das Landesklinikum Mödling
Für Freizeit und Erholung liegen Naturpark Föhrenberge, Weinberge sowie die Burg Liechtenstein nur wenige Minuten entfernt.
Die Anbindung an die A2, S1 und A21 ist ebenfalls schnell erreichbar und ermöglicht eine rasche Verbindung nach Wien und in die umliegenden Regionen.

Energieeffizienz

HWB:
46 kWh/(m²*a)
HWB Klasse:
B
fGEE:
0,73
fGEE Klasse:
A
Energieausweisart:
Energiebedarfs-ausweis
Gültig bis:
08.08.2034

Lageplan

2344 Maria Enzersdorf | Mödling

Lade...
Magalie Felsinger

Magalie Felsinger

Alexander Ringsmuth GmbH

Lade...

Fotomix

Bild 1 Bild 2 Bild 3 Bild 4 Bild 5 Bild 6 Bild 7