NEU - PROVISIONSFREI | Unterlaa Gardens - Wohnen, wo Wien erblüht

Wohnung zum Kauf in 1100 Wien - Kaufpreis: 598.000 € / Objektnummer: 1240/239317
Ausstattung: Garage Tiefgarage Parkplatz Außenparkplatz Fahrradraum Abstellraum Terrasse Garten

Preisinformationen

Kaufpreis:
598.000 €
Vermittlungsprovision:
Ja
Provision:
Provision bezahlt der Abgeber

Fakten

Objektnummer:
1240/239317
Objekttyp:
Wohnung
Terrasse:
1
Keller Fläche:
2,83 m²
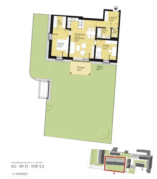
Wohnfläche:
72,46 m²
Nutzfläche:
72,46 m²
Gesamtfläche:
92,75 m²
Gartenfläche:
180,39 m²
Zimmer:
3
Neubau:
Ja
Zustand:
Erstbezug
Verfügbarkeit:
Verfügbar
Verfügbar ab:
Ende 2028

Beschreibung

UNTERLAA GARDENS

WOHNEN, WO WIEN ERBLÜHT

 

Das Projekt nahe Oberlaa umfasst die Errichtung von 16 Reihenhäuser und 20 Eigentumswohnungen. Die Reihenhäuser zeichnen sich durch großzügige Wohnflächen, private Freiflächen und zeitgemäße Architektur aus. Die Wohnungen sind variabel gestaltet und bieten unterschiedlichste Wohnungsgrößen für Singles, Paare oder Familien.

Alle Wohnungen werden schlüsselfertig übergeben, d.h. alle Sanitäranlagen, Fliesen und Parkettböden sind im Kaufpreis inkludiert. Details über die Ausstattung der Wohnungen entnehmen Sie gerne der Leistungsbeschreibung im Booklet.

27 PKW-Stellplätze stehen in der hauseigenen Tiefgarage bereit und bieten eine bequeme und sichere Parkmöglichkeit. Außerdem haben Sie die Möglichkeit, eine von 5 zusätzlichen Einlagerungsräumen zu erwerben - Preis auf Anfrage.

Die Lage punktet mit einer attraktiven Mischung aus urbanem Leben und naturnahen Wohnen - hervorragende Anbindung an öffentliche Verkehrsmittel, Einkaufsmöglichkeiten, Schulen und Freizeitmöglichkeiten sind nur ein paar der Vorteile.

 

 

SPAREN SIE 3,6% | PROVISIONSFREI KAUFEN

Ihr Vorteil beim Erwerb einer Haring Group Immobilie:

- Provisionsfrei! Alle Eigentumsobjekte werden ohne Provision (3,6% inkl. MwSt.) angeboten!

Wir weisen darauf hin, dass zwischen dem Vermittler und dem zu vermittelnden Dritten ein familiäres oder wirtschaftliches Naheverhältnis besteht.

Der Vermittler ist als Doppelmakler tätig.

Infrastruktur / Entfernungen

Gesundheit
Arzt <1.550m
Apotheke <1.475m
Klinik <4.525m
Krankenhaus <6.600m

Kinder & Schulen
Schule <975m
Kindergarten <1.025m
Universität <3.875m
Höhere Schule <6.300m

Nahversorgung
Supermarkt <1.400m
Bäckerei <1.450m
Einkaufszentrum <3.300m

Sonstige
Geldautomat <3.050m
Bank <1.375m
Post <1.475m
Polizei <1.500m

Verkehr
Bus <50m
U-Bahn <1.500m
Straßenbahn <3.150m
Bahnhof <1.500m
Autobahnanschluss <1.400m

Angaben Entfernung Luftlinie / Quelle: OpenStreetMap
Beschreibung weiterlesen

Energieeffizienz

HWB:
38,7 kWh/(m²*a)
HWB Klasse:
B
fGEE:
0,79
fGEE Klasse:
A
Energieausweisart:
Energiebedarfs-ausweis
Gültig bis:
25.03.2030

Grundrisse

Lageplan

1100 Wien | Wien 10., Favoriten

Lade...
Haring Immobilien Treuhand GmbH

Haring Immobilien Treuhand GmbH

Haring Group Bauträger GmbH

Lade...

Fotomix

Bild 1 Bild 2 Bild 3 Bild 4