NEU - Quality Living am malerischen Gallitzinberg.

Wohnung zum Kauf in 1160 Wien - Kaufpreis: 688.200 € / Objektnummer: 12535
Ausstattung: Boden Tiefgarage Parkplatz Fahrradraum Fußbodenheizung
Außenvisualisierung
Außenvisualisierung
Innenvisualisierung Wohnraum
Innenvisualisierung Wohnraum
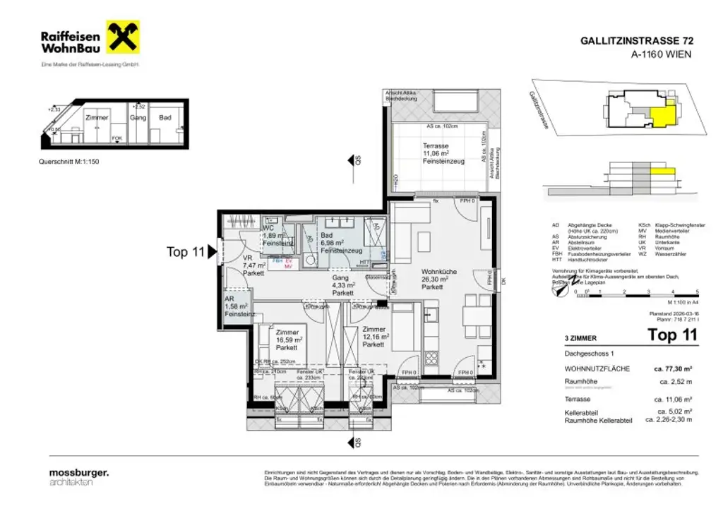
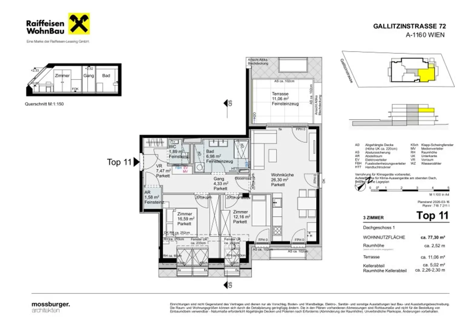
Verkaufsplan Top 11

Preisinformationen

Kaufpreis:
688.200 €
Provision:
Provision bezahlt der Abgeber.

Fakten

Objektnummer:
12535
Objekttyp:
Wohnung
Keller Fläche:
4,77 m²
Wohnfläche:
77,3 m²
Zimmer:
3
Badezimmer:
1
Toilette:
1
Stockwerk:
3
Baujahr:
2025
Neubau:
Ja
Zustand:
Erstbezug
Verfügbarkeit:
Verfügbar

Beschreibung

1160 Wien, Gallitzinstraße 72 I Quality Living am malerischen Gallitzinberg I Wohnen in herrlicher Grünruhelage | 15 Wohnungen zwischen ca. 51 und 120 m² | freifinanzierte Eigentumswohnungen | großzügige Freiflächen | hochwertige Ausstattung | Visualisierung:  © JamJam | wohnen.einfach.machen. | www.raiffeisen-wohnbau.at 

Infrastruktur / Entfernungen

Gesundheit
Arzt <1.125m
Apotheke <1.200m
Klinik <700m
Krankenhaus <875m

Kinder & Schulen
Schule <1.050m
Kindergarten <775m
Universität <750m
Höhere Schule <2.200m

Nahversorgung
Supermarkt <1.125m
Bäckerei <1.100m
Einkaufszentrum <1.275m

Sonstige
Geldautomat <1.175m
Bank <1.175m
Post <1.250m
Polizei <1.150m

Verkehr
Bus <50m
U-Bahn <1.575m
Straßenbahn <1.100m
Bahnhof <1.550m
Autobahnanschluss <5.400m

Angaben Entfernung Luftlinie / Quelle: OpenStreetMap
Beschreibung weiterlesen

Energieeffizienz

HWB:
28 kWh/(m²*a)
HWB Klasse:
B
fGEE:
0,67
fGEE Klasse:
A+
Energieausweisart:
Energiebedarfs-ausweis
Gültig bis:
02.02.2031

Dokumente

Grundriss

Lageplan

1160 Wien | Wien 16., Ottakring

Lade...
Irene Kueß

Irene Kueß

Raiffeisen Wohnbau

Lade...

Fotomix

Außenvisualisierung Außenvisualisierung Innenvisualisierung Wohnraum Innenvisualisierung Wohnraum