NEU - "Bestlage direkt am See!"

Grundstück zum Kauf in 2483 Ebreichsdorf - Kaufpreis: 398.000 € / Objektnummer: 28575
1
2
3
4
5
6
7
8
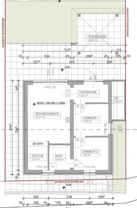
Plan
25 Jahre REMAX DCI
GENERALI Versicherung

Preisinformationen

Kaufpreis:
398.000 €
Provision:
3.00 %

Fakten

Objektnummer:
28575
Objekttyp:
Grundstück
Nutzfläche:
47 m²
Grundstücksfläche:
249 m²
Verfügbarkeit:
Verfügbar

Beschreibung

"Erfüllen Sie sich Ihren Wohntraum direkt am Wasser!"

Objektbeschreibung
Zum Verkauf steht ein Grundstück mit direktem Seezugang und einem sanierungsbedürftigen bzw. abbruchreifen Haus (Baujahr 1969). Die ruhige Lage am Wasser und die vorhandenen Bewilligungen für Haupt- und Nebengebäude bieten ideale Voraussetzungen für Renovierung oder Neubau.

Key Facts
Grundstück: 249 m² Bewilligung/Fertigstellung Haupt- & Nebengebäude
Wohnnutzfläche: 44

Highlights
Direkter Seezugang für Baden, Schwimmen & Erholung
Großzügiger Gartenbereich (191 m²), blickgeschützt und vielseitig nutzbar
Nur wenige Gehminuten zur Bushaltestelle, Bahnhof in ca. 1,2 km Entfernung
Sehr gute Verkehrsanbindung über die A3
Helle, gut nutzbare Raumaufteilung im Bestandsgebäude

Die Immobilie im Detail Die Wohnnutzfläche von 44m² eignet sich ideal für Paare, Singles oder kleine Familien. Durch den Altbestand besteht die Möglichkeit eines umfassenden Umbaus oder eines Neubauprojekt. Die Bebauungsmöglichkeiten werden gerade ermittelt.

Kaufpreis:: € 398.000,-

Der Vermittler ist als Doppelmakler tätig!
Beschreibung weiterlesen

Lageplan

2483 Ebreichsdorf | Baden

Lade...
Rudolf Ley

Rudolf Ley

RE/MAX Mödling

Lade...

Fotomix

1 2 3 4 5 6 7 8 Plan 25 Jahre REMAX DCI GENERALI Versicherung