NEU - "Neue 2-Terrassen- 2-Zimmer-Wohnung mit Parkplatz - U2 Aspernstrasse"

Wohnung zum Kauf in 1220 Wien - Kaufpreis: 349.000 € / Objektnummer: 28594
Ausstattung: Rollstuhlgerecht Fahrstuhl Kabel/Satelliten-TV Klimaanlage Garage Parkplatz Zentralheizung Balkon Terrasse
1 Terrassen-Balkon-Wohnung 1220 Aspern
2 Wohnküche 1220
3 Badezimmer 1220
4 Schlafzimmer 1220
5 Grünblick Terrasse 1220
6 Wohnzimmer 1220
7 Terrassentür 1220
8 Schlafzimmer 1220
9 WC WM 1220
10 Dusche 1220
11 Vorraum 1220
12 Balkon Grünblick 1220
13 Schlafzimmer Balkontür 1220
14 Wohnzimmer 1220
15 Terrasseneingang 1220
16 Terrassengrünblick 1220
17 Ausblick Terrasse Süd-Westen 1220
18 Außenansicht 1220
19 Stiegenhaus 1220
20 Aufzug 1220
21 Garage 1220
22 Balkon 2.OG Außenansicht 1220
23 Hausansicht 1220
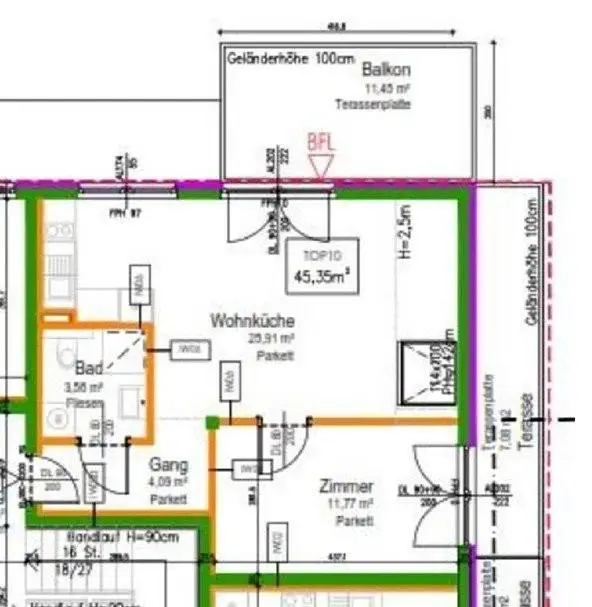
24 Plan ETW 1220
25 Jahre REMAX DCI
GENERALI Versicherung

Preisinformationen

Kaufpreis:
349.000 €
Provision:
3.00 %

Fakten

Objektnummer:
28594
Objekttyp:
Wohnung
Balkon:
1
Terrasse:
1
Wohnfläche:
45 m²
Zimmer:
2
Badezimmer:
1
Toilette:
1
Stockwerk:
1
Baujahr:
ca. 2024
Zustand:
Gepflegt
Verfügbarkeit:
Verfügbar

Beschreibung

"Sunset-Single-Hit! Neue 2-Zimmer-Terrassen-Balkonwohnung in Aspern"

Diese einmalige Gelegenheit dürfen Sie sich nicht entgehen lassen! Die nagelneue 2-Zimmer-Wohnung mit 11 m² Balkon und 7 m² Terrasse im 1. Dachgeschoss ist hochwertig mit Eichenparketten und Feinsteinzeug im Bad, elektrischen Außenjalousien und Klima-Anlage ausgestattet und Erstbezug, weil hier noch niemand gewohnt hat, obwohl schon einmal verkauft - mit Parkplatz in der Tiefgarage - in einer erst 2024 fertig gestellten Wohnhausanlage in Aspern - nur 500 m entfernt von der U2-Station Aspern mit Einkaufsmöglichkeiten und Restaurants, Geschäften, Ärzten u.v.m.

Man kommt die Einfahrt bequem mit dem Auto von der Seitengasse in die Tiefgarage und parkt auf einem eigenem Parkplatz, der mit 25.000,- € bewertet wurde. Mit dem Lift fährt man in den 2. Stock und betritt die Wohnung mit Sicherheitstüre vom Gang aus.
Vom Vorzimmer gelangt man in die helle und freundliche Wohnküche mit direktem Zugang zum Balkon mit Blick nach Westen, wo man nach einem anstrengenden Tag relaxen und den Sonnenuntergang beobachten kann.
Eine Essgarnitur und eine bequeme Couch sowie Sideboard für Flatscreen und mehr passen locker ins Wohnzimmer und ist bereit für ein nettes Paar oder eine einzelne Person - auch für Senioren geeignet, weil barrierefrei!
Das Schlafzimmer nebenan ist ebenfalls mit Eichenparkett ausgestattet und hat einen Zugang zur Terrasse mit Blick ins Grüne direkt in eine mächtige Baumkrone, wo man im Sommer Abkühlung im Schatten der Koniferen findet.
Vom Vorzimmer aus sind alle Räume getrennt begehbar. Das Badezimmer ist mit Feinsteinzeug verfliest und hat eine Walk-in-Dusche, Handtuchtrockner und Waschbecken sowie einen Waschmaschinenanschluss und ist mit einem WC ausgestattet.
Die Wohnung wird nach Vereinbarung vergeben. Geheizt wird mit moderner Luft-Wärme-Pumpe und die günstigen mon. Kosten von 208,10 € (Betriebskosten inkl. Rücklagen und inklusive Heizung, Kalt- und Warmwasser) sprechen für sich! Die Klima-Anlage sorgt für Kühle an heißen Sommertagen. Die Fenster sind dreifach-verglast und mit automatischen Rolläden versehen.
Ein eigenes Kellerabteil bietet zusätzlichen Stauraum.

Mit der U2-Aspernstrasse sowie div. Bussen ist man perfekt angebunden ebenso mit dem Auto in 5 Min. auf der A23 und 7 Min auf der A22 und in 10 Min. in Kaisermühlen und bei der UNO. Das Einkaufszentrum bei der U2-Station mit Geschäften des tägl. Bedarfs, Supermärkten, Restaurants, Ärzten etc. machen die Lage so attraktiv - ebenso wie die unweit entfernte Lobau und die neue Donau mit allen Sport- und Freizeitmöglichkeiten wie Spazieren, Radfahren, Joggen, Tennis, Fußball, Wassersport und vieles mehr!

Der Vermittler ist als Doppelmakler tätig!
Angaben gemäß gesetzlichem Erfordernis:
Heizwärmebedarf: 23.0 kWh/(m²a)
Klasse Heizwärmebedarf: A
Faktor Gesamtenergieeffizienz: 0.63
Klasse Faktor Gesamtenergieeffizienz: A

Beschreibung weiterlesen

Energieeffizienz

HWB:
23 kWh/(m²*a)
HWB Klasse:
A
fGEE:
0,63
fGEE Klasse:
A
Energieausweisart:
Energiebedarfs-ausweis

Lageplan

1220 Wien | Wien 22., Donaustadt

Lade...
Roswitha Babitsch

Roswitha Babitsch

RE/MAX Wien-Donaustadt

Lade...

Fotomix

1 Terrassen-Balkon-Wohnung 1220 Aspern 2 Wohnküche 1220 3 Badezimmer 1220 4 Schlafzimmer 1220 5 Grünblick Terrasse 1220 6 Wohnzimmer 1220 7 Terrassentür 1220 8 Schlafzimmer 1220 9 WC WM 1220 10 Dusche 1220 11 Vorraum 1220 12 Balkon Grünblick 1220 13 Schlafzimmer Balkontür 1220 14 Wohnzimmer 1220 15 Terrasseneingang 1220 16 Terrassengrünblick 1220 17 Ausblick Terrasse Süd-Westen 1220 18 Außenansicht 1220 19 Stiegenhaus 1220 20 Aufzug 1220 21 Garage 1220 22 Balkon 2.OG Außenansicht 1220 23 Hausansicht 1220 24 Plan ETW 1220 25 Jahre REMAX DCI GENERALI Versicherung