NEU - RARITÄTAltbau-Ikone in Bestlage: Top-saniert, elegant ausgestattet - 2 BalkoneBeim Augartenpark & Nähe TUFörderung

Wohnung zum Kauf in 8010 Graz - Kaufpreis: 375.000 € / Objektnummer: O2100167094
Ausstattung: Boden Fahrstuhl Wohnküche / offene Küche Bad Kabel/Satelliten-TV Abstellraum Fernwärme Balkon

Preisinformationen

Kaufpreis:
375.000 €
Provision:
3,6 % inkl. 20% MwSt.

Fakten

Objektnummer:
O2100167094
Objekttyp:
Wohnung
Balkon:
2
Balkonfläche:
8,68 m²
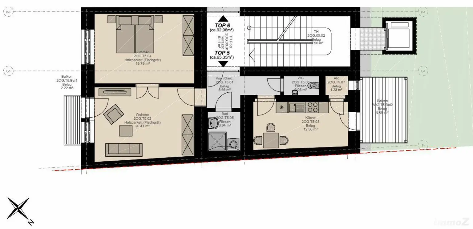
Wohnfläche:
63,35 m²
Gesamtfläche:
63,35 m²
Zimmer:
3
Badezimmer:
1
Toilette:
1
Stockwerk:
1
Baujahr:
1911
Altbau:
Ja
Letzte Sanierung:
2026
Zustand:
Neuwertig
Verfügbarkeit:
Verfügbar
Verfügbar ab:
nach Vereinbarung

Beschreibung

Willkommen in einem Zuhause, das mehr ist als eine Wohnung - es ist eine seltene Kombination aus historischem Charme, modernem Luxus und einer Lage, die in Graz-Zentrum ihresgleichen sucht.
Diese Altbau-Rarität entsteht aktuell im Zuge einer umfassenden Generalsanierung und wird in wenigen Monaten zu den schönsten Wohnungen zählen, die man im Bezirk überhaupt finden kann.
Die ruhige Seitengasse, direkt neben dem Augartenpark, vermittelt eine besondere Wohnatmosphäre: urban, aber entspannt - zentral, aber geschützt.
Die Raumhöhe von ca. 3m verleiht jedem Bereich Großzügigkeit, Eleganz und eine Leichtigkeit, die nur in Gebäuden dieser Epoche zu finden ist.
Die originalen Altbau-Flügeltüren werden erhalten bzw. hochwertig erneuert und bilden das stilistische Herzstück der Wohnung. Ihre klassische Formensprache, ihre Höhe und Eleganz sorgen dafür, dass jeder Raum eine repräsentative Wirkung bekommt.
Hochwertige Parkett- bzw. Dielenböden vollenden die Luxusausstrahlung dieser Immobilie!

Highlights auf einen Blick:

• Wohnfläche: 63,35 m² – perfekt geschnitten, zeitlos elegant
• Luftige Raumhöhe von ca. 3 m
Ein Raumgefühl, das man nur im echten Altbau bekommt – großzügig, repräsentativ, edel.
• Zwei Balkone
  • West-Balkon mit ca. 8,68 m² Nutzfläche – Sonnenuntergänge inklusive
  • Wirtschaftsbalkon mit ca. 2,22 m² – ideal für Pflanzen, Lager, Outdoor-Nützliches
• Zwei getrennt begehbare Zimmer
  • Zimmer 1: ca. 19,79 m²
  • Zimmer 2: ca. 20,41 m²
    Beide Räume mit idealer Größe, perfekter Möblierbarkeit und einzigartiger Altbauausstrahlung – betont durch elegante Flügeltüren, die den Stil dieser Rarität harmonisch unterstreichen.
• Separate Wohnküche (ca. 12,56 m²)
  • Großzügiger Raum mit Platz für Esstisch
  • Zugang zum Abstellraum
  • Direkter Zugang zum Balkon – perfekter Übergang zwischen Innen & Außen
• Edle Parkett- & Dielenböden
Feinste Materialien, die Altbauflair und Modernität perfekt verbinden.
• Bäder mit großflächigen, modernen Fliesen
Hochwertig, zeitlos, perfekt abgestimmt.
• Alle Leitungen neu
Elektrik, Sanitär, Heizung – alles wird modernisiert.
Das bedeutet: Jahrzehntelange Sicherheit, Komfort und Wertbeständigkeit.
• Auf individuelle Wünsche kann Rücksicht genommen werden
Wer früh genug entscheidet, hat jetzt noch die Möglichkeit, Details nach eigenen Vorstellungen zu gestalten.
Eine Freiheit, die bei Altbauwohnungen fast nie möglich ist.

 Lage – und zwar eine, die man nicht toppen kann
Ruhige Seitengasse unmittelbar beim Augartenpark
Perfekte Infrastruktur und urbane Lebensqualität
Technische UNI, Nahversorgung, Gastronomie, Straßenbahn, Radwege – alles in Gehweite
Eine Lage, die in Graz dauerhaft zu den begehrtesten zählt
Wer hier wohnt, weiß: der Augarten ist nicht irgendein Park – er ist ein Lebensgefühl.

Kaufpreis € 375.000,- zzgl. 109.000,- Förderung (40% nicht rückzahlbar unter Einhaltung der Förderrichtlinien)= € 446.000,- 


Resümee
***Diese Wohnung ist eine seltene Altbau-Edition, die mit 3-Meter-Raumhöhe, Flügeltüren, edlen Parketten und zwei Balkonen eine Einzigartigkeit verkörpert, die man am Grazer Markt kaum mehr findet.
Die Kombination aus kompletter Generalsanierung, traumhafter Lage neben dem Augartenpark und perfekter Raumaufteilung macht sie zu einer Gelegenheit, die man nur einmal angeboten bekommt.***
Beschreibung weiterlesen

Lage und Verkehrsanbindung

Ein Wohnort, der alles verbindet, was Graz lebenswert macht.
Die Wohnung befindet sich in einer der begehrtesten Lagen des Grazer Zentrums - nur wenige Schritte vom Augartenpark und in unmittelbarer Nähe zur Technischen Universität und die Innenstadt liegt quasi vor der Haustüre!
Die Umgebung verbindet ruhige, elegante Gründerzeit-Atmosphäre mit erstklassiger urbaner Infrastruktur.
Eine exklusive Wohnadresse für alle, die höchste Lebensqualität mit akademischer Nähe und grüner Erholung kombinieren möchten!

Energieeffizienz

Endenergiebedarf:
45 kWh/(m²*a)
HWB:
45 kWh/(m²*a)
HWB Klasse:
B
Energieausweisart:
Energiebedarfs-ausweis

Dokumente

Grundriss

Heidi Gutmann

Heidi Gutmann
staatl. geprüfte Immobilienmakler

bestpoint Immobilien GmbH

Lade...