Repräsentative Büro- oder Praxisfläche in Bestlage | 1170 Wien

Immobilie zur Miete in 1170 Wien - Gesamtmiete: 1.883,44 € / Objektnummer: 3107
Ausstattung: Boden Kabel/Satelliten-TV Etagenheizung
Ansicht Haus 1
2 Hauseingang
9 Zimmer 1
11 Zimmer 3
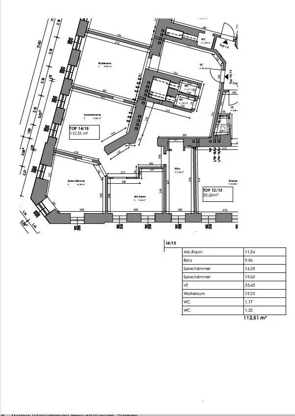
Plan_Wattgasse PNG

Preisinformationen

Gesamtmiete:
1.883,44 € / Monat
Gesamtmiete (exkl. USt.):
1.569,53 € / Monat
Betriebskosten netto:
269,53 € / Monat
Umsatzsteuer:
313,91 €
Kaution:
5.000,00 €

Fakten

Objektnummer:
3107
Nutzfläche:
112,51 m²
Bürofläche:
112,51 m²
Zimmer:
4
Toilette:
2
Baujahr:
ca. 1900
Altbau:
Ja
Zustand:
Gepflegt
Verfügbarkeit:
Verfügbar

Beschreibung

Zur Vermietung gelangt eine hochwertige, großzügig geschnittene Büro- bzw. Praxisfläche in ausgezeichneter Lage des 17. Wiener Gemeindebezirks. Die Einheit befindet sich im 1. Stock mit Lift eines gepflegten Hauses und überzeugt durch eine repräsentative Raumaufteilung, helle Räume sowie klassische Altbauqualitäten.

Die fünf separat begehbaren Räume ermöglichen eine flexible Nutzung und eignen sich ideal für Bürobetriebe, Ordinationen, Therapieeinrichtungen, Kanzleien oder Dienstleistungsunternehmen. Der funktionale Grundriss erlaubt sowohl Einzelbüros als auch Team- oder Behandlungsräume.



Ausstattung & Details
• Gesamtfläche: ca. 113 m²
• Räume: 5
• Stockwerk: 1. Liftstock
• Boden: hochwertiger Parkettboden in allen Räumen
• Zustand: frisch ausgemalt
• Heizung: Gasetagenheizung
• Lift: vorhanden
• Nutzung: Büro oder Praxis
• Raum mit einer Teeküche

Lage & Infrastruktur

Die Immobilie befindet sich in absoluter Bestlage von Hernals, unmittelbar an der Hernalser Hauptstraße. Diese Lage bietet eine hervorragende Kombination aus Sichtbarkeit, Erreichbarkeit und urbaner Infrastruktur.

Zahlreiche Nahversorger, Gastronomiebetriebe, Apotheken und Dienstleister befinden sich in unmittelbarer Umgebung und gewährleisten eine ausgezeichnete Versorgung für Mitarbeiter und Klienten.



Verkehrsanbindung
• Optimale öffentliche Verkehrsanbindung
• Rasche Verbindung in die Wiener Innenstadt
• Straßenbahn- und Buslinien in Gehweite
• Sehr gute Erreichbarkeit für Kunden und Patienten



Mietkonditionen
• Mietdauer: 5 Jahre befristet
• Option: Verlängerungsmöglichkeit
• Unbefristete Anmietung: auf Anfrage möglich
Angaben gemäß gesetzlichem Erfordernis:
Miete 1300 zzgl 20% USt.
Betriebskosten 269,53 zzgl 20% USt.
Umsatzsteuer 313,91
---------------------------------
Gesamtbetrag 1883,44
Beschreibung weiterlesen

Energieeffizienz

HWB Klasse:
D
fGEE:
2,13
fGEE Klasse:
D
Energieausweisart:
Energiebedarfs-ausweis

Lageplan

1170 Wien | Wien 17., Hernals

Lade...
Andreas Winter

Andreas Winter

RE/MAX 4You in Wien-Hernals

Lade...

Fotomix

Ansicht Haus 1 2 Hauseingang 9 Zimmer 1 11 Zimmer 3 Plan_Wattgasse PNG