NEU - Repräsentatives Büro Top G3 - Neubauprojekt SCHÖN | DORF | BLICK

Büro zum Kauf in 4840 Vöcklabruck - Kaufpreis: 348.972 € / Objektnummer: 286
Ausstattung: Fahrstuhl Fußbodenheizung

Preisinformationen

Kaufpreis:
348.972 €
Kaufpreis/m²
3.953,46 €
Vermittlungsprovision:
Ja
Provision:
3% des Kaufpreises zzgl. 20% USt.

Fakten

Objektnummer:
286
Objekttyp:
Büro
Nutzfläche:
88,27 m²
Stockwerk:
2
Baujahr:
2025
Neubau:
Ja
Zustand:
Erstbezug
Verfügbarkeit:
Verfügbar
Verfügbar ab:
01.07.2027

Beschreibung

In der Dr.-Anton-Bruckner-Straße in Vöcklabruck entsteht mit dem SCHÖN | DORF | BLICK ein modernes Neubauprojekt, das Wohnkomfort, Funktionalität und Lebensqualität perfekt vereint. Zwei stilvolle Baukörper beherbergen insgesamt 31 Eigentumswohnungen mit Wohnflächen zwischen 37 und 116 m² sowie drei attraktive Gewerbeeinheiten mit 88 bis 108 m² Nutzfläche. Durchdacht geplant, hochwertig ausgestattet und in ruhiger, zugleich zentraler Lage, bietet SCHÖN | DORF | BLICK den idealen Ort zum Leben und Arbeiten.

Das Projekt umfasst zwei Gebäude mit klarer, zeitloser Architektur, eine großzügige Tiefgarage mit 35 Stellplätzen sowie sechs zusätzliche Freistellplätze. Der Bau hat bereits begonnen, die Fertigstellung ist für Sommer 2027 vorgesehen. Während die Wohnungen schlüsselfertig übergeben werden, werden die Gewerbeeinheiten im hochwertigen Edelrohbau ausgeführt – optimal für individuelle Gestaltungsmöglichkeiten.

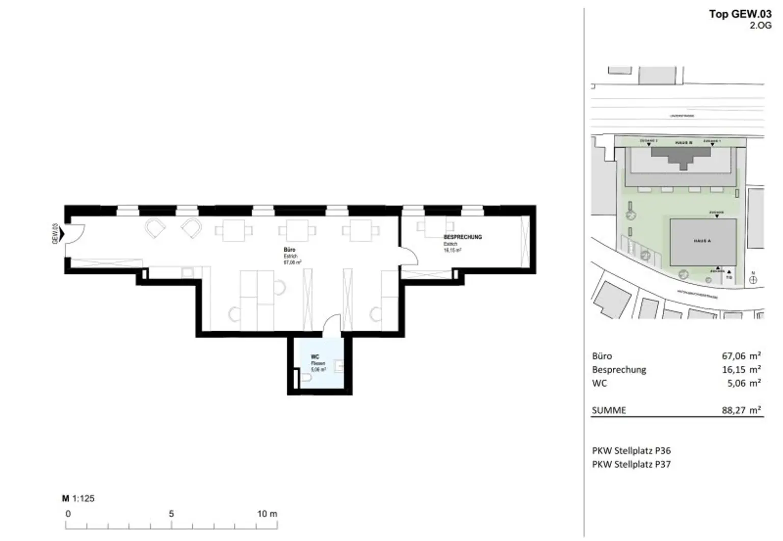
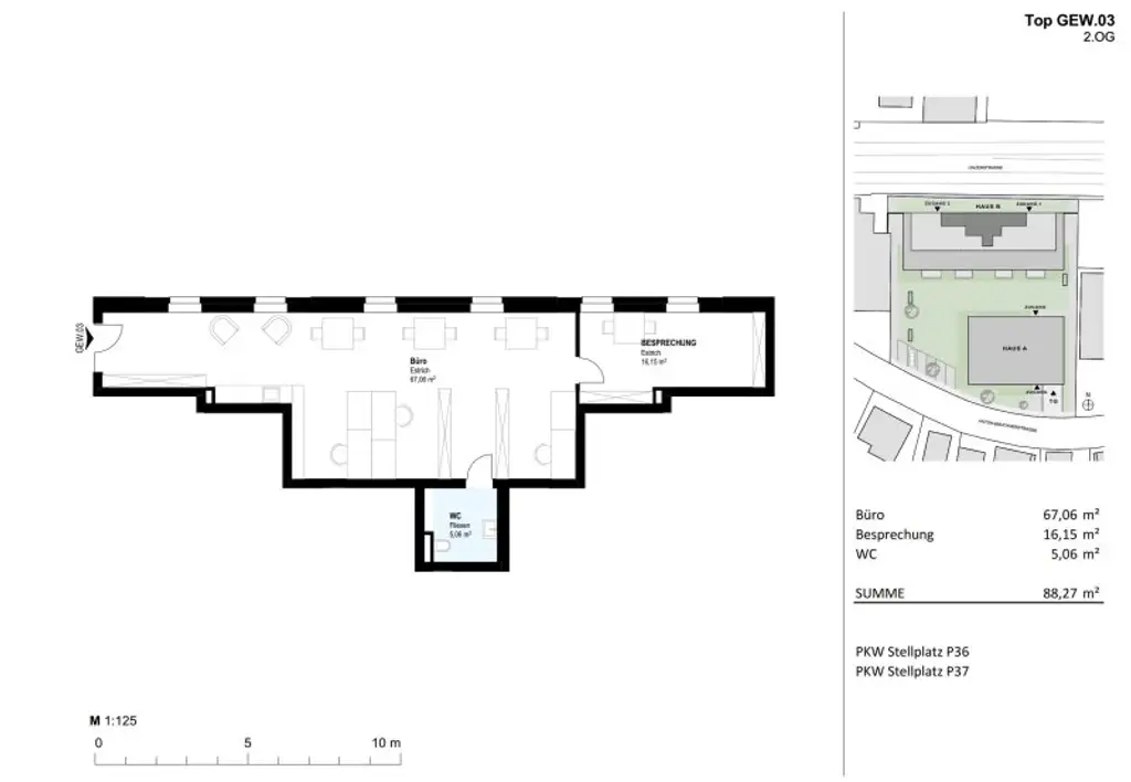
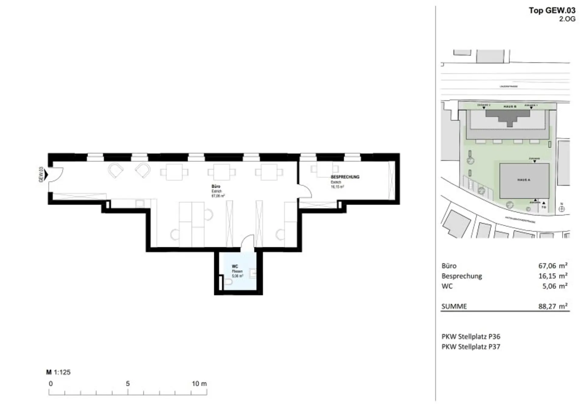
Moderne Gewerbefläche in Bestlage von Vöcklabruck – ideal für Büro, Praxis oder Studio. In hochfrequentierter Lage direkt an der Linzer Bundesstraße entsteht eine attraktive Gewerbefläche mit rund 88 m² Nutzfläche, die durch beste Sichtbarkeit und hohe Werbewirksamkeit überzeugt. Die Einheit im zweiten Obergeschoss bietet ideale Voraussetzungen für Büros, Praxen oder Studios, die Wert auf ein modernes Umfeld und eine repräsentative Adresse legen. Die Ausführung im Edelrohbau ermöglicht eine flexible, individuelle Gestaltung nach Ihren Bedürfnissen. Dank der hervorragenden Verkehrsanbindung und der Kundenparkplätze direkt vor dem Gebäude profitieren Sie und Ihre Besucher von optimaler Erreichbarkeit und Komfort.

Gewerbe Top G3 / 2.OG
Nutzfläche: ca. 88 m²
Ausführung: Edelrohbau 
1 Kellerabteil
2 KFZ Freistellplätze P36+P37

Gewerbe Top G3                      € 348.971,96 
KFZ Freistellplätze P36+P37    € 18.691.59
Gesamtkaufpreis                     € 367.663,55

Der Erwerb der KFZ Stellplätze ist verpflichtend.

Die Kaufpreise verstehen sich als Nettopreise zzgl. 20 % USt.

Beim Neubauprojekt SCHÖN | DORF | BLICK investieren Sie in eine wertstabile, zukunftssichere Immobilie in einer prosperierenden Region Oberösterreichs. Ob zur Eigennutzung oder als Kapitalanlage – das Projekt steht für nachhaltiges Wohneigentum in gefragter Lage. Die attraktive Kombination aus Lage, Bauqualität und moderner Architektur garantiert langfristige Wertentwicklung und stabile Renditechancen. Dank der starken Nachfrage nach Wohn- und Gewerbeflächen in Vöcklabruck profitieren Anleger und Eigennutzer gleichermaßen – zusätzlich bietet die Immobilie Schutz vor Inflation durch ihren soliden Sachwertcharakter.

 

Bei Interesse freuen wir uns auf Ihre Anfrage.

Ihr SPERER Immobilien Team

Stefan Pichler | 0676 4630535 | s.pichler@sperer-group.com

Wir weisen darauf hin, dass zwischen dem Vermittler und dem zu vermittelnden Dritten ein familiäres oder wirtschaftliches Naheverhältnis besteht.

Der Vermittler ist als Doppelmakler tätig.

Infrastruktur / Entfernungen

Gesundheit
Arzt <550m
Apotheke <475m
Krankenhaus <1.400m

Kinder & Schulen
Schule <275m
Kindergarten <500m
Höhere Schule <575m

Nahversorgung
Supermarkt <125m
Bäckerei <575m
Einkaufszentrum <875m

Sonstige
Bank <400m
Geldautomat <400m
Polizei <575m
Post <925m

Verkehr
Bus <200m
Bahnhof <925m
Autobahnanschluss <5.200m

Angaben Entfernung Luftlinie / Quelle: OpenStreetMap
Beschreibung weiterlesen

Lage und Verkehrsanbindung

Die Bezirkshauptstadt Vöcklabruck vereint die Vorzüge einer modernen Stadt mit der Ruhe und Natur des Salzkammerguts und bietet als wirtschaftlich starke Bezirksstadt alles, was modernes Leben ausmacht! Einkaufsmöglichkeiten, Schulen, Kindergärten, Ärzte und Freizeitangebote befinden sich in unmittelbarer Nähe. Die Dr.-Anton-Bruckner-Straße punktet durch ihre zentrale Lage – hier profitieren Sie von bester Erreichbarkeit und hoher Lebensqualität. Dank der Nähe zur A1 Westautobahn, dem Bahnhof Vöcklabruck sowie zur Vöckla-Au genießen Bewohner eine perfekte Balance aus Mobilität, Natur und urbanem Komfort.

Energieeffizienz

HWB:
31,1 kWh/(m²*a)
HWB Klasse:
B
fGEE:
0,67
fGEE Klasse:
A+
Energieausweisart:
Energiebedarfs-ausweis
Gültig bis:
11.02.2032

Dokumente

Grundriss

Lageplan

4840 Vöcklabruck | Vöcklabruck

Lade...
Stefan Pichler

Stefan Pichler
Projektleitung | Verkauf

SPERER Immobilien GmbH

Lade...

Fotomix

Bild 1 Bild 2 Bild 3 Bild 4 Bild 5 Bild 6 Bild 7 Bild 8 Bild 9 Bild 10 Bild 11 Bild 12