Ring-Cafe Wels - Nachmietersuche - kurzfristig befristeter Mietvertrag auf 18 Monate !

Gastgewerbe zur Miete in 4600 Wels - Gesamtmiete: 2.300,00 € / Objektnummer: 712
Ausstattung: Barrierefrei

Preisinformationen

Gesamtmiete:
2.300,00 € / Monat
Kaution:
1.500,00 €

Fakten

Objektnummer:
712
Objekttyp:
Gastgewerbe
Nutzfläche:
93,5 m²
Verfügbarkeit:
Verfügbar

Beschreibung

Eckdaten Ring-Cafe Wels

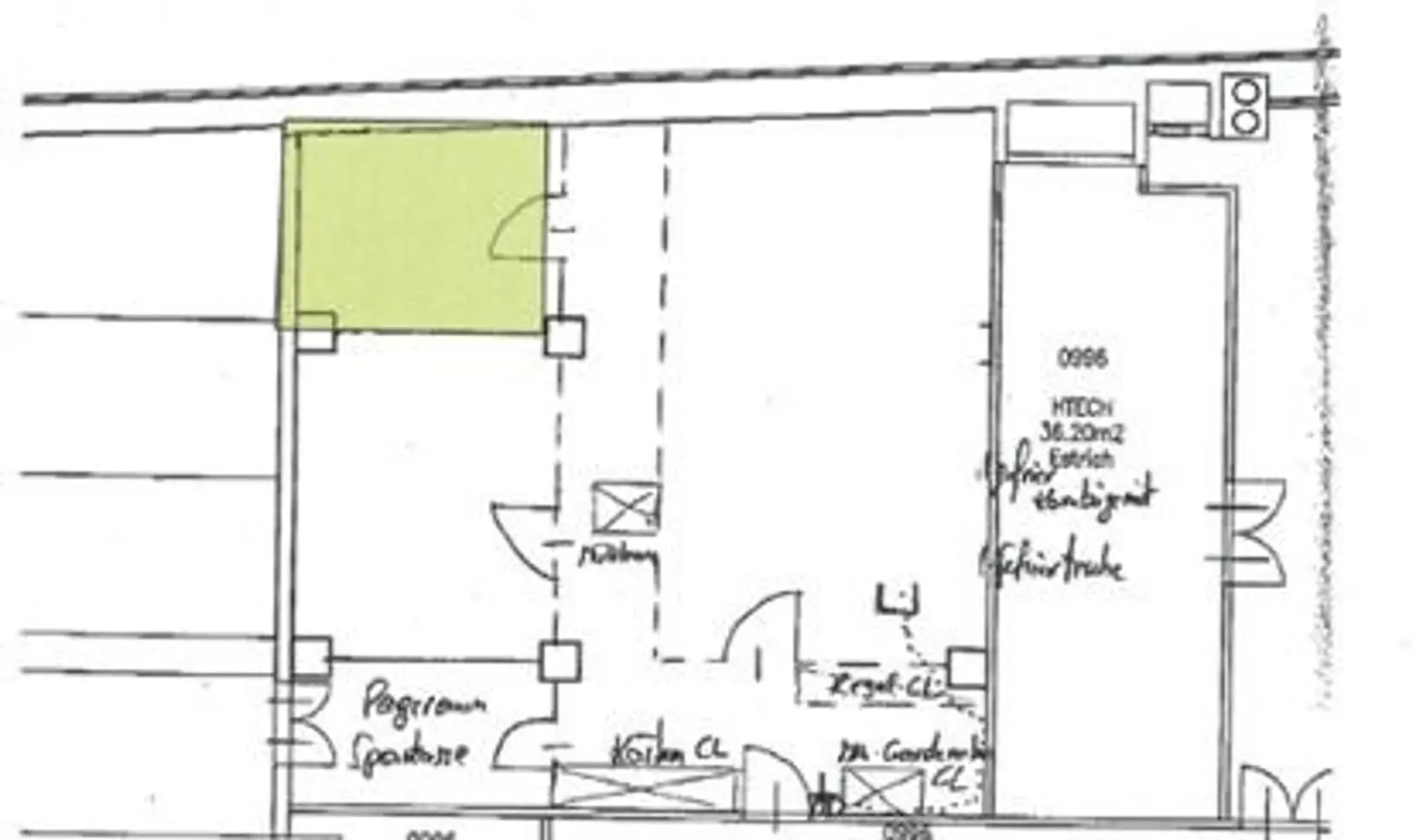
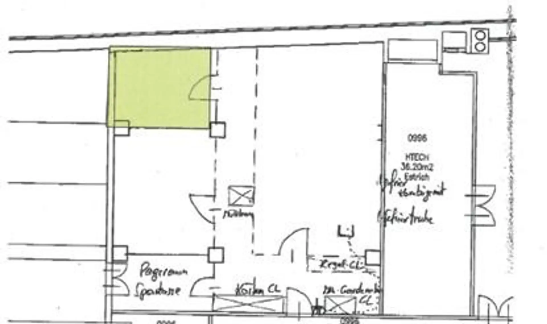
• ca. 83,5 m² Geschäftsraum und ca. 10 m² Kellerabteil
• Miete € 2.000,00 inkl USt
• Betriebskosten € 300,00 incl.
• Befristet auf 18 Monate
• Keine Parkplätze vorhanden
• Ausschließlich zur Führung eines Cafe-Espresso / Gastronomiebetriebs
• Gastronomiebetrieb täglich in der Zeit von 07:00 bis 22:00 Uhr (max. 24:00 Uhr. Betriebspflicht in Öffnungszeiten der SPK – ausgenommen Weihnachtsfeiertag und ein zweiwöchiger Betriebsurlaub im Zeitraum Juli bzw. August.
• Schanigarten nur mit Zustimmung der SPK
• Kaution € 1.500,00
• Tierhaltung nicht erlaubt

Übergabezustand, wie Bestand vor Ort.
Die nachstehend angeführten Fotos sind lediglich Beispiele aus Vornutzungen und stellen nicht den Ist-Zustand dar.

Provisionsfrei für den Mieter.

Nähere Details auf Anfrage über den Wirtschaftsservice Wels unter 07242 677 22 40 bzw.office@wels.at oder heinz.jellmair@wels.at
Angaben gemäß gesetzlichem Erfordernis:
Miete 2000
Betriebskosten 300
Umsatzsteuer 0
---------------------------------
Gesamtbetrag 2300
Beschreibung weiterlesen

Lageplan

4600 Wels | Wels (Stadt)

Lade...
Heinz Jellmair

Heinz Jellmair

Wirtschaftsservice Wels - Wels Marketing und Touristik GmbH

Lade...

Fotomix

20241219_083751 20241219_083745 Grundriss Lagefläche Keller 20241219_082028 20241219_081841 20241219_081906 20241219_081934 20241219_082009 20241219_082032 20241219_082106 20241219_083807