NEU - Rohdachboden mit Baubewilligung im Zentrum von Stockerau!

Wohnung zum Kauf in 2000 Stockerau - Kaufpreis: 139.000 € / Objektnummer: 1876/17280
Ausstattung:

Preisinformationen

Kaufpreis:
139.000 €

Fakten

Objektnummer:
1876/17280
Objekttyp:
Wohnung
Wohnfläche:
245 m²
Baujahr:
1800
Altbau:
Ja
Zustand:
Erstbezug
Verfügbarkeit:
Verfügbar

Beschreibung

Objektbeschreibung:

Wir freuen uns, Ihnen einen einzigartigen Rohdachboden im Zentrum von Stockerau, provisionsfrei, anzubieten. Dieses besondere Objekt bietet Ihnen die Möglichkeit, zwei exklusive Wohnungen zu schaffen – eine großzügige 161 m² Wohnung sowie eine charmante 84 m² Wohnung. Beide Einheiten zeichnen sich durch eine durchdachte Raumaufteilung und die Möglichkeit zur individuellen Gestaltung aus.

Architektonisches Highlight:

Das Gebäude besticht durch seine barocke Fassade, die dem Objekt einen besonderen Charakter verleiht. Der einzigartige Flair des alten Dachstuhls ist in den südseitigen Wohnungen sichtbar und sorgt für ein behagliches Wohnambiente. Die hohen Decken und die großen Fenster ermöglichen eine optimale Lichtausnutzung und schaffen eine einladende Atmosphäre.

Grünblick und Ruhe:

Ein weiteres Highlight dieses Objekts ist der herrliche Grünblick in den Garten der Liegenschaft. Hier genießen Sie eine ruhige Oase mitten im Stadtzentrum, die zum Entspannen und Verweilen einlädt. Ideal für Paare, Familien oder als Investitionsobjekt für die Vermietung.

Kfz-Stellplätze:

Zusätzlich stehen im Hof des Gebäudes Kfz-Stellplätze zum Ankauf zur Verfügung. Dies erhöht den Komfort für zukünftige Bewohner und ist ein wertvoller Vorteil in einer zentralen Lage.

Lage:

Der Rohdachboden befindet sich in einer hervorragenden Lage im Zentrum von Stockerau. Einkaufsmöglichkeiten, Schulen, Restaurants und öffentliche Verkehrsanbindungen sind in unmittelbarer Nähe und ermöglichen eine hohe Lebensqualität.

Fazit:

Nutzen Sie die Gelegenheit, diesen baubewilligten Rohdachboden in ein attraktives Wohnprojekt zu verwandeln. Ob für die eigene Nutzung oder als Investition – hier erwarten Sie zahlreiche Möglichkeiten!

Für weitere Informationen und zur Vereinbarung eines Besichtigungstermins steht Ihnen gerne Christoph Koch, unter 0650/779 15 59 zur Verfügung.

English version:

 

Property Description:

We are pleased to offer you a unique raw attic in the center of Stockerau. This special property gives you the opportunity to create two exclusive apartments – a spacious 153 m² apartment and a charming 81 m² apartment. Both units feature a thoughtful layout and the possibility for individual design.

Architectural Highlight:

The building impresses with its baroque facade, giving the property a distinctive character. The unique charm of the old roof structure is visible in the south-facing apartments, creating a cozy living atmosphere. The high ceilings and large windows allow for optimal light utilization and create an inviting atmosphere.

Green View and Tranquility:

Another highlight of this property is the wonderful green view into the garden of the property. Here you can enjoy a quiet oasis in the city center, inviting you to relax and linger. Ideal for couples, families, or as an investment property for rental.

Parking Spaces:

Additionally, parking spaces are available for purchase in the courtyard of the building. This increases the comfort for future residents and is a valuable advantage in a central location.

Location:

The raw attic is located in an excellent location in the center of Stockerau. Shopping opportunities, schools, restaurants, and public transport connections are in close proximity, ensuring a high quality of life.

Conclusion:

Take the opportunity to transform this approved raw attic into an attractive residential project. Whether for personal use or as an investment – numerous possibilities await you!

For more information and to arrange a viewing appointment, please contact Christoph Koch at 0650/779 15 59.

Wir weisen darauf hin, dass zwischen dem Vermittler und dem zu vermittelnden Dritten ein familiäres oder wirtschaftliches Naheverhältnis besteht.

Der Vermittler ist als Doppelmakler tätig.

Infrastruktur / Entfernungen

Gesundheit
Arzt <500m
Apotheke <500m
Klinik <8.500m
Krankenhaus <500m

Kinder & Schulen
Kindergarten <1.000m
Schule <500m
Universität <9.000m

Nahversorgung
Supermarkt <500m
Bäckerei <500m

Sonstige
Bank <500m
Geldautomat <500m
Post <500m
Polizei <500m

Verkehr
Bus <500m
Autobahnanschluss <500m
Bahnhof <500m
Flughafen <3.500m

Angaben Entfernung Luftlinie / Quelle: OpenStreetMap
Beschreibung weiterlesen

Lage und Verkehrsanbindung

Diese charmante Dachgeschosswohnungen in 2000 Stockerau, besticht durch ihre hervorragende Lage. In unmittelbarer Nähe finden Sie alles, was das Herz begehrt: Ärzte, Apotheken, ein Krankenhaus, Kindergarten und Schulen sorgen für eine ideale Familienfreundlichkeit. Supermärkte, Bäckereien und Banken sind nur einen kurzen Spaziergang entfernt. Zudem sind Bus und Bahnhof schnell erreichbar, während der Autobahnanschluss eine optimale Anbindung an die Umgebung garantiert. Genießen Sie urbanes Wohnen in bester Erreichbarkeit!

Energieeffizienz

HWB:
122,2 kWh/(m²*a)
HWB Klasse:
D
fGEE:
1,32
fGEE Klasse:
C
Energieausweisart:
Energiebedarfs-ausweis
Gültig bis:
19.09.2032

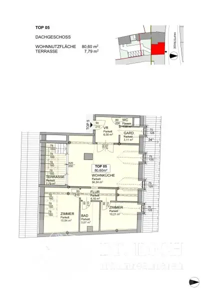
Grundrisse

Lageplan

2000 Stockerau | Korneuburg

Lade...
Christoph Koch

Christoph Koch

Dr. Koch & Co. Ges.m.b.H.

Lade...

Fotomix

Bild 1 Bild 2 Bild 3 Bild 4 Bild 5 Bild 6