NEU - Rohdachboden mit genehmigtem Einreichplan, sofort zum loslegen bei XXX-Lutz

Wohnung zum Kauf in 8020 Graz - Kaufpreis: 232.900 € / Objektnummer: O2100166864
EXTERIOR VIEW_1 - Photo_final
EXTERIOR VIEW_2 - Photo_Innenhof_final
IMG_6828
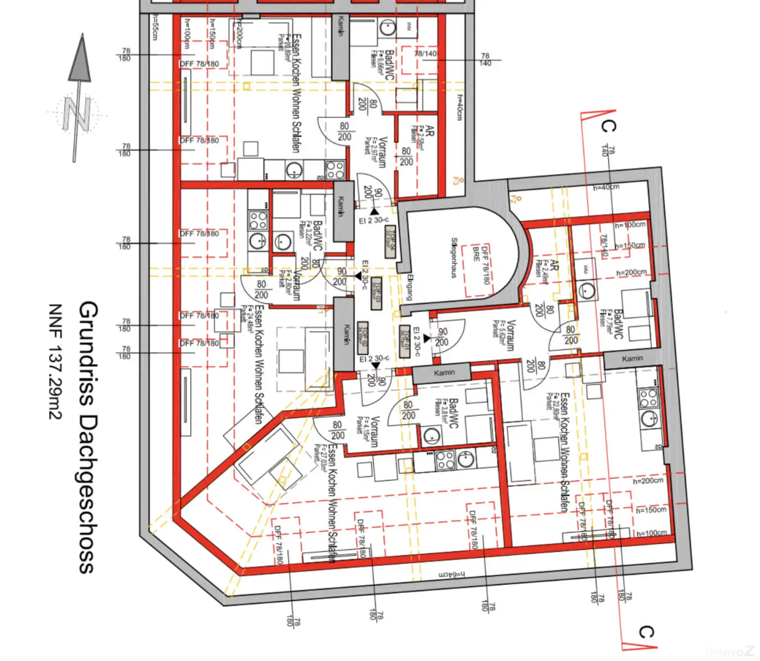
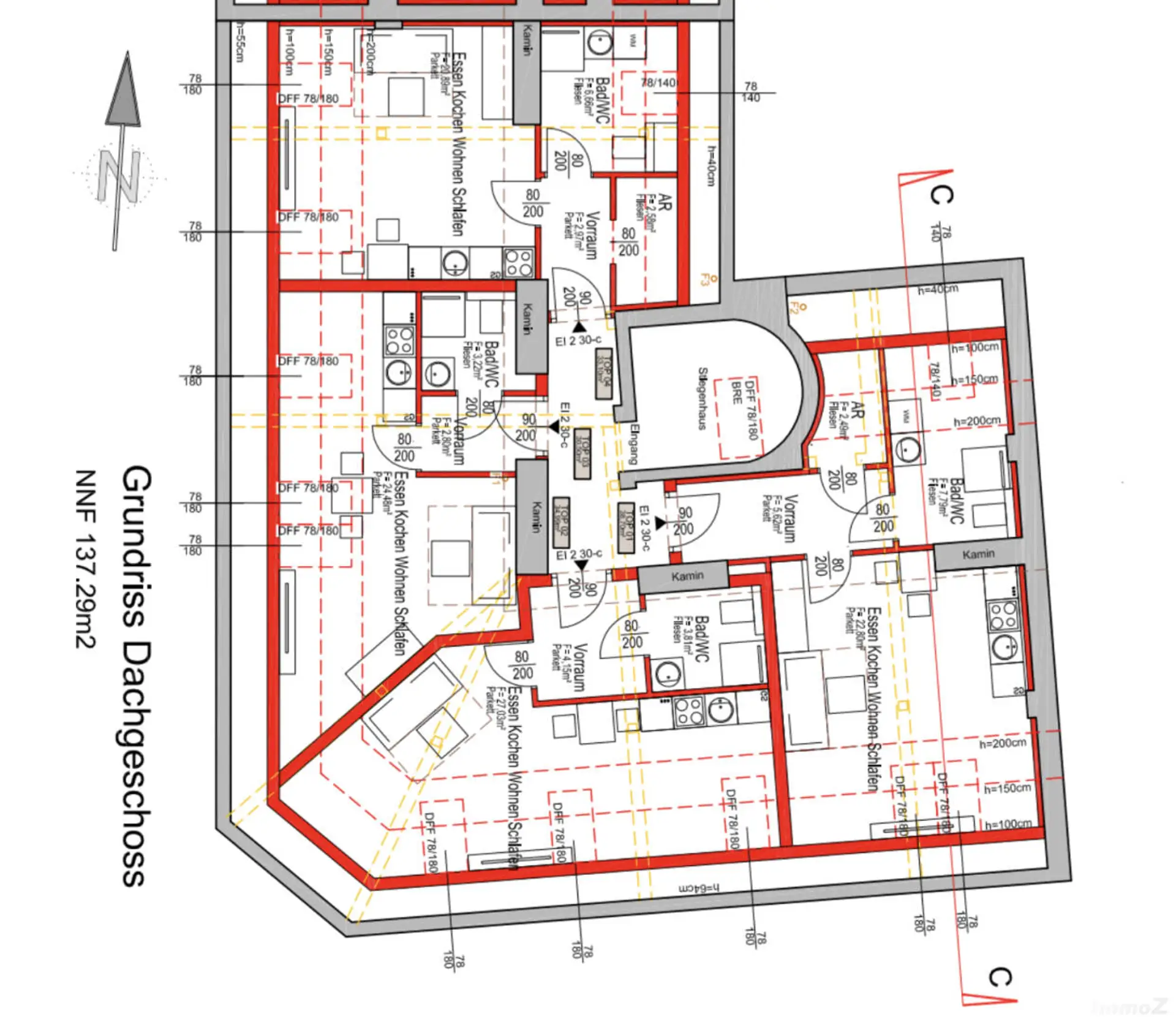
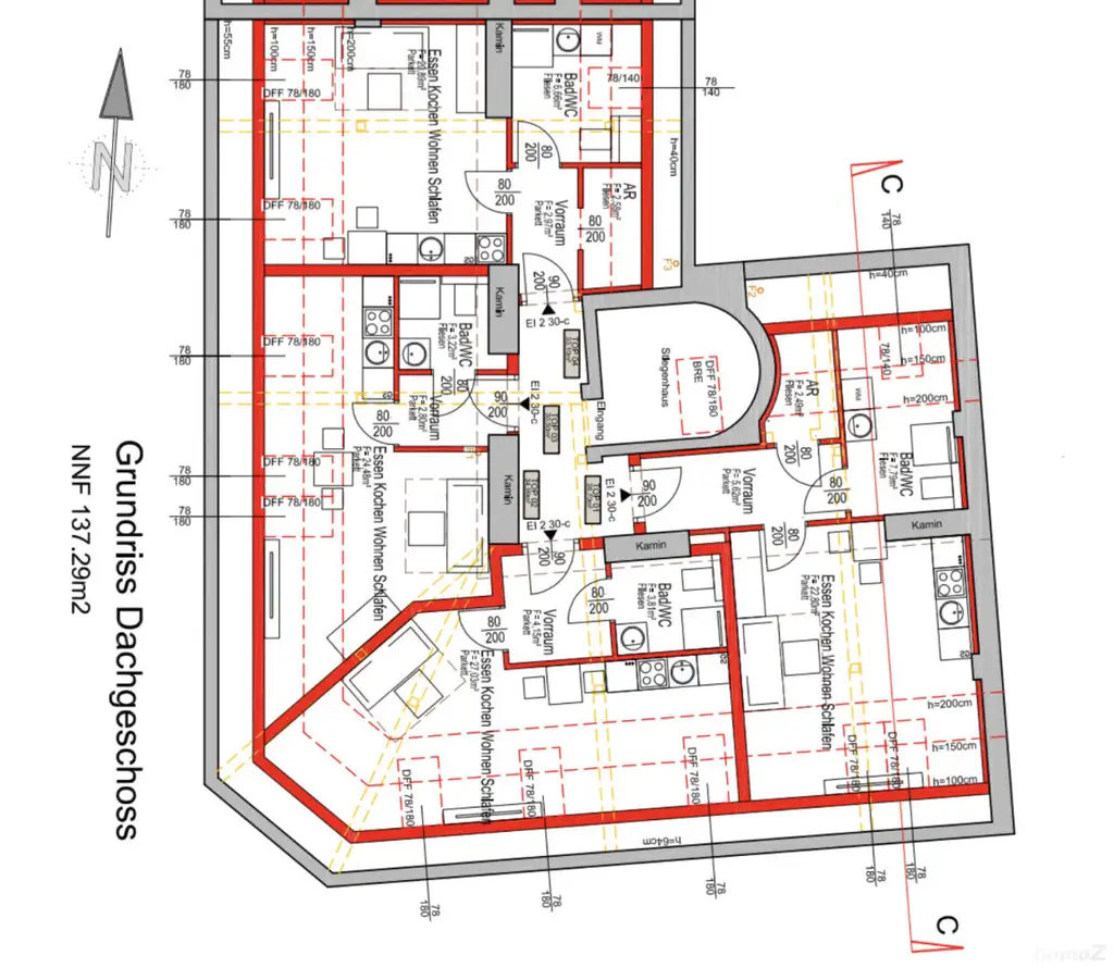
Grundriss Haus 11

Preisinformationen

Kaufpreis:
232.900 €
Preisinfos:
Verhandlungsbasis
Provision:
3 % zzgl. 20% MwSt.

Fakten

Objektnummer:
O2100166864
Objekttyp:
Wohnung
Wohnfläche:
137,29 m²
Gesamtfläche:
137,29 m²
Zustand:
Entkernt>
Verfügbarkeit:
Verfügbar

Beschreibung

Wir bieten Ihnen hier einen Rohdachboden inkl. genehmigter Einreichplanung zum Verkauf an. 

Dieser liegt in guter Lage zur Vermietung und kann sofort ausgebaut werden und bspw. vermietet oder verkauft werden als einzelne Wohnungen. 

4 Wohnung mit den Größen 38,7; 34,99; 30,50; 33,1 können errichtet werden und es kein Lift vorgeschrieben. 

OPTIONAL: Auch das Nachbarhaus hat bereits einen genehmigten Rohdachboden welcher nur mehr darauf wartet ausgebaut zu werden. 97,59 m2 nach Ausbau lt. Plan, 2 Wohnungen mit 58,24 + 39,35 m2, Ebenso kein Lift vorgeschrieben. => 165.900 €
Beschreibung weiterlesen
Patrick Großschädl

Patrick Großschädl

Papst Immobilien GmbH

Lade...

Fotomix

EXTERIOR VIEW_1 - Photo_final EXTERIOR VIEW_2 - Photo_Innenhof_final IMG_6828 Grundriss Haus 11