NEU - Ruhelage am Waldrand in 1140 Wien – modernes Einfamilienhaus mit Gestaltungsspielraum & schlüsselfertiger Übergabe

Haus zum Kauf in 1140 Wien - Kaufpreis: 1.270.000 € / Objektnummer: 5276
Ausstattung: Wohnküche / offene Küche Gäste-WC Garage Parkplatz Abstellraum Fußbodenheizung Balkon Terrasse Garten

Preisinformationen

Kaufpreis:
1.270.000 €

Fakten

Objektnummer:
5276
Objekttyp:
Haus
Balkon:
2
Terrasse:
2
Balkonfläche:
8,51 m²
Wohnfläche:
182,12 m²
Grundstücksfläche:
427 m²
Gartenfläche:
150 m²
Zimmer:
5
Badezimmer:
3
Toilette:
3
Neubau:
Ja
Verfügbarkeit:
Verfügbar

Beschreibung

_Im Falle der Notwendigkeit einer Fremdfinanzierung Ihrer Wunschimmobilie ermittelt unser Wohnbau-Finanzierungsexperte gerne die optimale Finanzierungslösung und findet das passende Zins- und Konditionsangebot für Sie. Er vergleicht die aktuellen Angebote aller relevanten Banken und Bausparkassen. Der Angebotsvergleich kann aus einem Portfolio von über 120 Banken erfolgen. Das Erstgespräch ist für Sie kostenfrei und unverbindlich, gerne auch bei Ihnen vor Ort. So sparen Sie Ihre wertvolle Zeit und erhalten eine professionelle und unabhängige Finanzierungslösung vom Spezialisten. Sprechen Sie uns wegen eines Termins gerne an!_

 

Zum Verkauf gelangt ein modernes Einfamilienhaus im 14. Wiener Gemeindebezirk!

Am Ende einer ruhigen Straße im begehrten 14. Bezirk gelegen, präsentiert sich dieses Einfamilienhaus in absoluter Grünruhelage mit Blick auf den angrenzenden Wald. Eine ideale Kombination für alle, die Ruhe und Natur schätzen und gleichzeitig die Nähe zur Stadt nutzen möchten.

Das Haus verfügt über eine Wohnnutzfläche von ca. 182 m² sowie zusätzliche großzügige Außenflächen mit Terrassen und Balkonen. Die durchdachte Planung über mehrere Ebenen schafft ein offenes und modernes Wohngefühl mit viel Licht und vielseitigen Nutzungsmöglichkeiten.

Erdgeschoss:

* Großzügige Wohnküche mit ca. 32 m² und direktem Zugang zur Terrasse
* Wintergarten als zusätzlicher Wohnbereich
* Weiteres Zimmer, ideal als Büro oder Gästezimmer
* Badezimmer mit WC
* Vorraum und Nebenräume

Obergeschoss:

* Zwei Schlafzimmer
* Schrankraum
* Badezimmer mit WC
* Zugang zu einer weiteren Terrasse

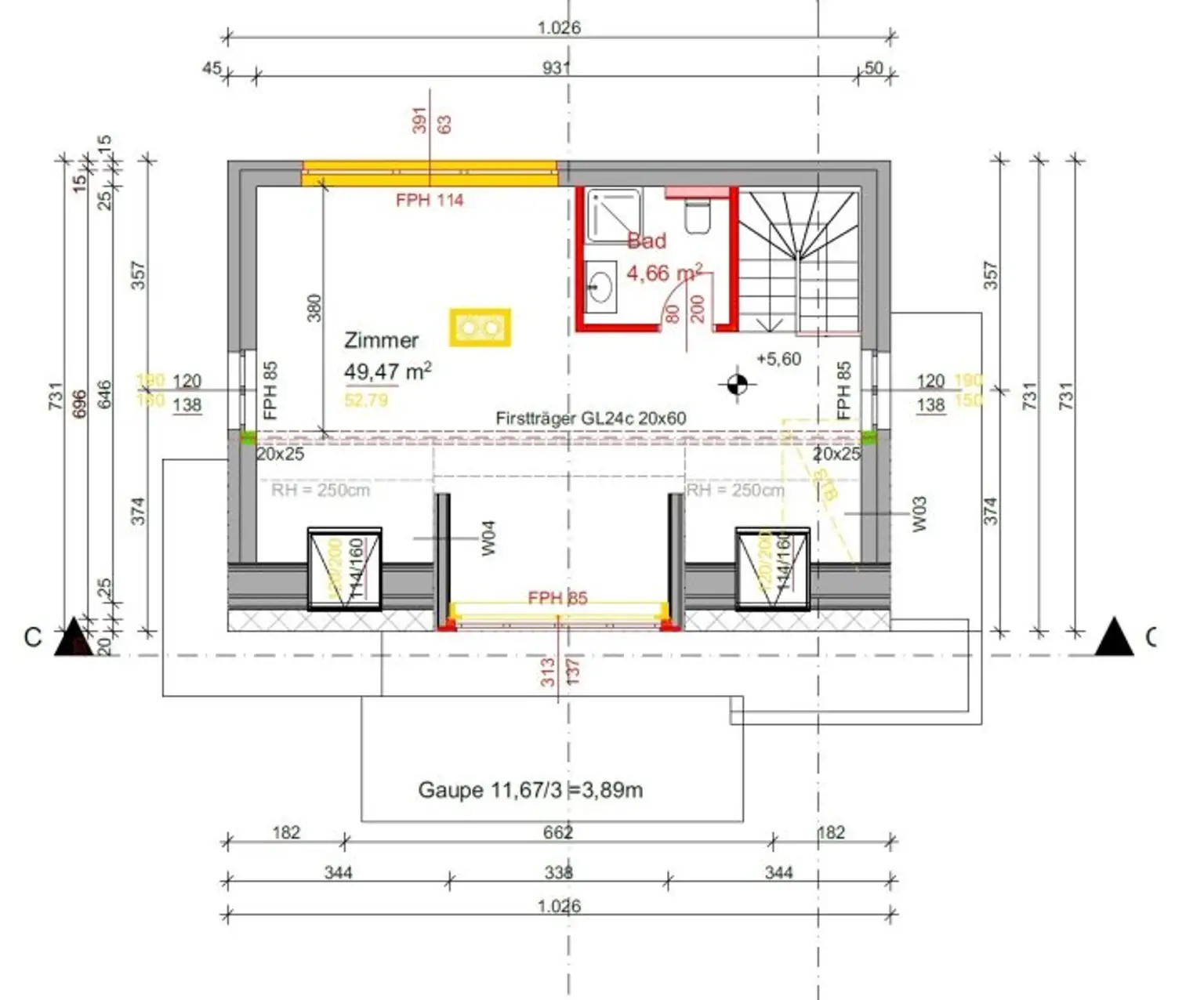
Dachgeschoss:

* Großzügiges Studio- bzw. Masterzimmer mit ca. 49 m²
* Eigenes Badezimmer mit WC

Zusätzlich stehen ein Garage sowie eine Gartenebene zur Verfügung, die vielseitig genutzt werden können, beispielsweise als Stauraum, Hobbybereich oder Technikfläche.

Das Haus befindet sich aktuell im belagsfertigen Zustand und wird schlüsselfertig übergeben. Käufer haben somit die Möglichkeit, die finale Ausstattung individuell mitzugestalten und an ihre persönlichen Wünsche anzupassen.

Der angegebene Kaufpreis versteht sich inklusive schlüsselfertiger Herstellung mit einer hochwertigen, mittelpreisigen Ausstattung. Individuelle Sonderwünsche können selbstverständlich berücksichtigt werden.

Die Lage am Ende einer Sackgasse bietet ein hohes Maß an Ruhe und Privatsphäre. Der direkte Bezug zur Natur sowie der Blick ins Grüne schaffen eine besondere Wohnqualität. Gleichzeitig ist eine gute Anbindung an die Wiener Innenstadt gegeben, wodurch sich naturnahes Wohnen optimal mit urbaner Infrastruktur verbinden lässt. Die nahegelegen Busstation bringt Sie schnell zur U4 Station Hütteldorf.

Gerne lassen wir Ihnen bei ernsthaftem Interesse - vor Kaufanbotlegung - weitere vertraulichen Dokumente zu dieser Liegenschaft zukommen, welche nicht veröffentlicht werden dürfen.

Für Besichtigungsmöglichkeiten und nähere Informationen stehen wir Ihnen gerne zur Verfügung.

Stephan Wallner
national - Tel: 0664 5228831 [tel:06645228831]
international - Tel: +43 664 5228831 [tel:+436645228831]
e-mail: wallner@lifestyle-properties.at

Der Vermittler ist als Doppelmakler tätig.

 

 

Infrastruktur / Entfernungen

Gesundheit
Arzt <2.000m
Apotheke <2.000m
Klinik <2.500m
Krankenhaus <2.000m

Kinder & Schulen
Schule <1.500m
Kindergarten <500m
Universität <1.000m
Höhere Schule <5.000m

Nahversorgung
Supermarkt <500m
Bäckerei <2.000m
Einkaufszentrum <3.000m

Sonstige
Geldautomat <2.000m
Bank <2.000m
Post <3.000m
Polizei <2.000m

Verkehr
Bus <500m
U-Bahn <2.500m
Straßenbahn <2.000m
Bahnhof <2.000m
Autobahnanschluss <3.000m

Angaben Entfernung Luftlinie / Quelle: OpenStreetMap
Beschreibung weiterlesen

Energieeffizienz

HWB:
36,6 kWh/(m²*a)
HWB Klasse:
B
fGEE:
0,7
fGEE Klasse:
A
Energieausweisart:
Energiebedarfs-ausweis

Grundrisse

Lageplan

1140 Wien | Wien 14., Penzing

Lade...
Stephan Wallner

Stephan Wallner
Real Estate Agent

IM Lifestyle Properties GmbH

Lade...

Fotomix

Bild 1 Bild 2 Bild 3 Bild 4 Bild 5 Bild 6 Bild 7 Bild 8 Bild 9 Bild 10 Bild 11 Bild 12 Bild 13 Bild 14 Bild 15 Bild 16 Bild 17 Bild 18 Bild 19 Bild 20 Bild 21 Bild 22 Bild 23 Bild 24 Bild 25 Bild 26 Bild 27 Bild 28 Bild 29 Bild 30 Bild 31 Bild 32 Bild 33 Bild 34 Bild 35 Bild 36 Bild 37 Bild 38 Bild 39 Bild 40 Bild 41 Bild 42 Bild 43