Sanierungsbedürftige Altbauwohnung mit guter Raumstruktur

Wohnung zum Kauf in 1090 Wien - Kaufpreis: 235.000 € / Objektnummer: 101/18653
Ausstattung: Etagenheizung
2
1
3
4
5
6
7
8
öblichgasse 9_70dpi
Löblhgasse 9_70dpi
Löblichgae 9_70dpi
Löble 9_70dpi
Löblichgass 9_70dpi
Löblichgasse 9_
Löblichgasse 9_70dpi
Lse 9_70dpi
asse 9_70dpi
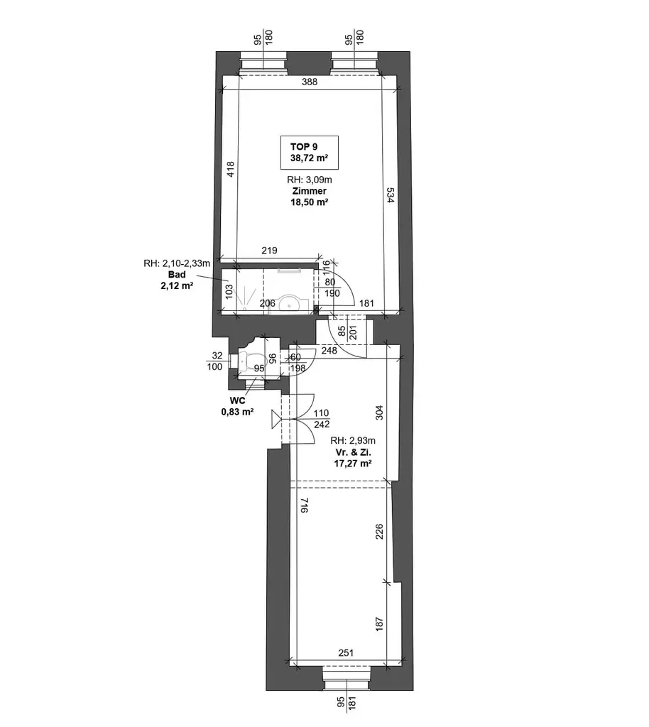
Plan Top 9

Preisinformationen

Kaufpreis:
235.000 €
Kaufpreis/m²
6.069,21 €
Betriebskosten netto:
108,65 € / Monat
Vermittlungsprovision:
Ja
Provision:
3%

Fakten

Objektnummer:
101/18653
Objekttyp:
Wohnung
Wohnfläche:
38,72 m²
Zimmer:
1
Badezimmer:
1
Toilette:
1
Stockwerk:
3
Altbau:
Ja
Verfügbarkeit:
Verfügbar

Beschreibung

Diese im 3. Obergeschoss gelegene Altbauwohnung überzeugt durch ihre kompakte und funktionale Raumaufteilung mit einem großzügigen Zimmer, einem weiteren Wohnbereich mit Vorraumcharakter, separatem Bad sowie getrenntem WC. Die Raumhöhe im Hauptzimmer von rund drei Metern unterstreicht den klassischen Altbaucharakter. Die Wohnung befindet sich in sanierungsbedürftigem Zustand. Insbesondere Bad, WC, Oberflächen sowie technische Installationen sind erneuerungsbedürftig. Eine umfassende Modernisierung ist einzuplanen, um die Einheit auf einen zeitgemäßen Wohnstandard zu bringen. Aufgrund der klaren Struktur bietet das Objekt eine solide Grundlage für eine Neugestaltung nach individuellen Vorstellungen. Eine typische Altbauwohnung mit Entwicklungspotenzial in gefragter Lage des 9. Bezirks. Ihre Highlights auf einen Blick: - Stilvolles Gründerzeithaus mit Altbaucharakter - Teilweise saniert – teilweise mit Entwicklungspotenzial - Top-Lage im 9. Bezirk - U-Bahn und Nahversorgung in unmittelbarer Nähe Lage Die Liegenschaft in der Löblichgasse 9 befindet sich in ausgezeichneter Lage des 9. Wiener Gemeindebezirks (Alsergrund), einem der gefragtesten innerstädtischen Wohnbezirke Wiens. Die Umgebung ist geprägt von repräsentativen Altbauten, gepflegten Wohnhäusern und einer gewachsenen städtischen Infrastruktur. Die Nahversorgung ist umfassend gesichert: Supermärkte, Bäckereien, Apotheken sowie diverse Fachgeschäfte befinden sich in fußläufiger Distanz. Darüber hinaus bietet die nahegelegene Nußdorfer Straße eine Vielzahl an Gastronomiebetrieben, Cafés und Dienstleistungsangeboten. Durch die Nähe zur Innenstadt profitieren Bewohner von einem urbanen Umfeld mit hoher Lebensqualität. Die öffentliche Verkehrsanbindung ist sehr gut. Mehrere Straßenbahnlinien (u. a. 37, 38, 40, 41, 42) sowie Busverbindungen sind rasch erreichbar und gewährleisten eine schnelle Anbindung an das Stadtzentrum sowie an weitere Bezirke. Die U-Bahn-Stationen der Linien U6 (Währinger Straße/Volksoper bzw. Nußdorfer Straße) befinden sich in komfortabler Reichweite. Erholungs- und Freizeitmöglichkeiten sind ebenfalls gegeben: Der nahegelegene Liechtensteinpark sowie der Donaukanal bieten Grünflächen und Möglichkeiten zur Freizeitgestaltung im Freien. Bildungseinrichtungen, darunter Universitäten, Schulen und Kindergärten, befinden sich im direkten Umfeld, was die Lage zusätzlich attraktiv macht. Ansprechpartner Frau Doris Kurzweil || +43 699 17 55 66 16 || dk@jpi.at Herr Iman Ajdari || +43 699 17 55 66 68 || ia@jpi.at Wir weisen darauf hin, dass wir mit dem Abgeber in ständiger Geschäftsbeziehung stehen und schon aus diesem Grund ein wirtschaftliches Naheverhältnis vorliegt.
Beschreibung weiterlesen

Lage und Verkehrsanbindung

Währinger Straße

Energieeffizienz

HWB:
216,5 kWh/(m²*a)
HWB Klasse:
F
fGEE:
2,94
fGEE Klasse:
E

Grundriss

Doris Kurzweil

Doris Kurzweil

JP Immobilien

Lade...

Fotomix

2 1 3 4 5 6 7 8 öblichgasse 9_70dpi Löblhgasse 9_70dpi Löblichgae 9_70dpi Löble 9_70dpi Löblichgass 9_70dpi Löblichgasse 9_ Löblichgasse 9_70dpi Lse 9_70dpi asse 9_70dpi