NEU - Sanierungsprojekt: 3-Zi-Wohnung, 80m², 1030 Wien, Top Lage, 357.000 € Kaufpreis!

Wohnung zum Kauf in 1030 Wien - Kaufpreis: 357.000 € / Objektnummer: 13989
Ausstattung: Bad Etagenheizung

Preisinformationen

Kaufpreis:
357.000 €
Betriebskosten netto:
196,00 € / Monat
Vermittlungsprovision:
Ja
Provision:
3% des Kaufpreises zzgl. 20% USt.

Fakten

Objektnummer:
13989
Objekttyp:
Wohnung
Wohnfläche:
80,6 m²
Zimmer:
3
Badezimmer:
1
Toilette:
1
Baujahr:
1871
Neubau:
Ja
Zustand:
Sanierungsbedürftig
Verfügbarkeit:
Verfügbar

Beschreibung

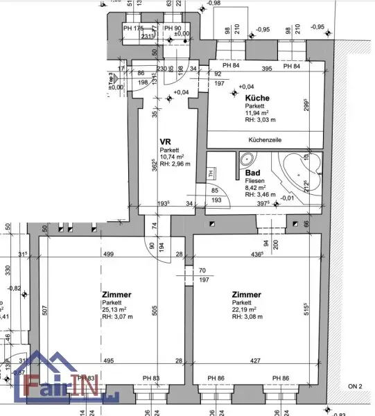
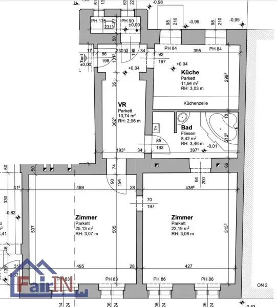
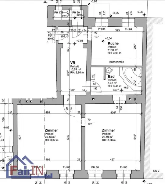
Willkommen in Ihrem neuen Zuhause im charmanten 3. Bezirk Wiens – eine Gelegenheit, die Sie nicht verpassen sollten! Diese großzügige 3-Zimmer-Wohnung mit einer Wohnfläche von 80,6 m² bietet Ihnen in bester Lage viel Potenzial und Raum zur persönlichen Gestaltung.

Der Kaufpreis von 357.000,00 € macht diese Immobilie zu einer attraktiven Investition in eine begehrte Wiener Gegend. Die Wohnung befindet sich in einem sanierungsbedürftigen Zustand – hier haben Sie die Möglichkeit, Ihre eigenen Wohnträume zu verwirklichen und das Objekt ganz nach Ihrem Geschmack und Ihren Bedürfnissen zu gestalten.

Die Massivbauweise aus Ziegel sorgt für ein solides und angenehmes Wohnklima. Die Gas-Etagenheizung garantiert eine effiziente und unabhängige Wärmeversorgung. Ein Highlight ist das Badezimmer mit Badewanne, das Ihnen Entspannung und Wohlfühlmomente verspricht. Die Räume sind flexibel veränderbar, sodass Sie die Raumaufteilung ganz nach Ihren Vorstellungen anpassen können.

Die Verkehrsanbindung ist mehr als ideal: In unmittelbarer Nähe finden Sie Bus, U-Bahn, Straßenbahn sowie einen Bahnhof, die Sie schnell und unkompliziert mit dem gesamten Stadtgebiet und darüber hinaus verbinden. So sind Sie jederzeit mobil und erreichen Ihre Ziele stressfrei.

Auch das Umfeld lässt keine Wünsche offen: Ärzte, Apotheken, Kliniken und Krankenhäuser sind bequem erreichbar und sorgen für ein sicheres Gefühl im Alltag. Für Familien und Studierende bieten sich zahlreiche Bildungsmöglichkeiten wie Schulen, Kindergärten, Universitäten und höhere Schulen in der Nähe an. Einkaufsmöglichkeiten wie Supermärkte, Bäckereien und Einkaufszentren sind ebenfalls fußläufig erreichbar und erleichtern den täglichen Einkauf.

Nutzen Sie diese einmalige Chance, eine Wohnung mit großem Potenzial mitten in Wien zu erwerben, die Sie nach Ihren Vorstellungen sanieren und zu Ihrem persönlichen Wohntraum machen können. Ob als neues Zuhause oder als wertvolle Kapitalanlage – diese Immobilie bietet Ihnen zahlreiche Möglichkeiten in einer der beliebtesten Gegenden Wiens.

Zögern Sie nicht und vereinbaren Sie noch heute einen Besichtigungstermin. Entdecken Sie selbst, wie viel Charme und Wert diese Wohnung in 1030 Wien für Sie bereithält! Ihr neues Zuhause wartet auf Sie.

Infrastruktur / Entfernungen

Gesundheit
Arzt <500m
Apotheke <500m
Klinik <1.000m
Krankenhaus <500m

Kinder & Schulen
Schule <500m
Kindergarten <500m
Universität <500m
Höhere Schule <500m

Nahversorgung
Supermarkt <500m
Bäckerei <500m
Einkaufszentrum <1.000m

Sonstige
Geldautomat <500m
Bank <500m
Post <500m
Polizei <1.000m

Verkehr
Bus <500m
U-Bahn <1.000m
Straßenbahn <500m
Bahnhof <500m
Autobahnanschluss <2.000m

Angaben Entfernung Luftlinie / Quelle: OpenStreetMap
Beschreibung weiterlesen

Lage und Verkehrsanbindung

Diese Wohnung im 3. Bezirk von Wien besticht durch ihre zentrale Lage. In unmittelbarer Nähe finden Sie Ärzte, Apotheken, Kliniken sowie ein Krankenhaus. Schulen, Kindergärten, Universitäten und höhere Schulen sind bequem erreichbar. Einkaufsmöglichkeiten wie Supermärkte, Bäckereien und ein Einkaufszentrum liegen ebenso nahe. Banken, Post, Polizei sowie zahlreiche öffentliche Verkehrsmittel wie Bus, U-Bahn, Straßenbahn und Bahnhof garantieren optimale Anbindung und Lebensqualität.

Energieeffizienz

HWB:
153,1 kWh/(m²*a)
HWB Klasse:
E
fGEE:
2,95
fGEE Klasse:
E
Energieausweisart:
Energiebedarfs-ausweis

Grundriss

Lageplan

1030 Wien | Wien 3., Landstraße

Lade...
Klaudija Krstic

Klaudija Krstic
Immobilienberater/in

FAIRIN OG

Lade...

Fotomix

Bild 1 Bild 2 Bild 3 Bild 4 Bild 5 Bild 6