NEU - Schöne 2 Zimmerwohnung in Margareten

Wohnung zum Kauf in 1050 Wien - Kaufpreis: 319.000 € / Objektnummer: 101/17256
Ausstattung: Boden
IMG_5427
IMG_5424
IMG_5426
IMG_5421
IMG_5422
IMG_5423
IMG_5418
IMG_5420
IMG_5415
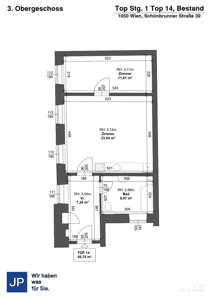
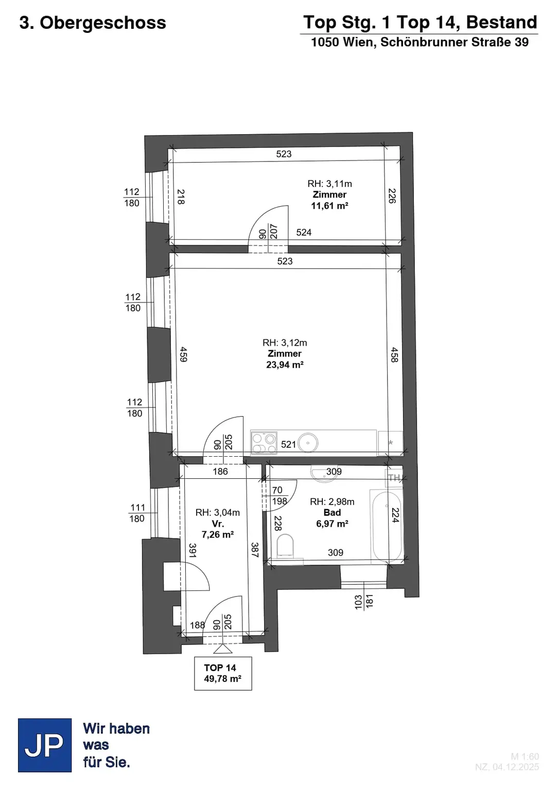
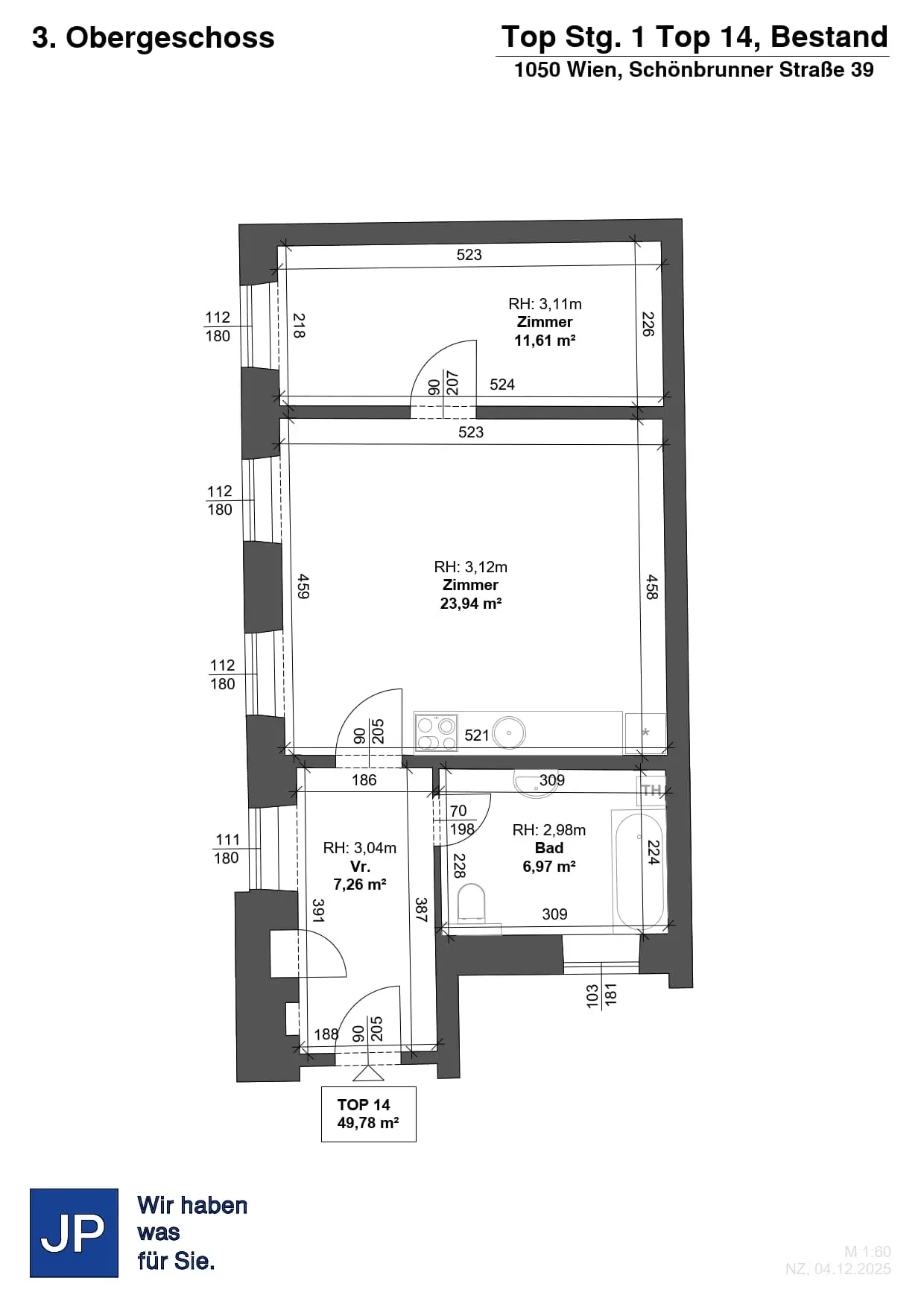
Plan Top 14

Preisinformationen

Kaufpreis:
319.000 €
Kaufpreis/m²
6.483,74 €
Vermittlungsprovision:
Ja
Provision:
3 %

Fakten

Objektnummer:
101/17256
Objekttyp:
Wohnung
Wohnfläche:
49,2 m²
Zimmer:
2
Badezimmer:
1
Toilette:
1
Stockwerk:
3
Altbau:
Ja
Verfügbarkeit:
Verfügbar

Beschreibung

Verkauft wird eine 2 Zimmerwohnung in der Schönbrunner Straße. Die sich im dritten Obergeschoss (ohne Lift) befindende Wohnung verfügt über knapp 46 m² Wohnfläche und teilt sich wie folgt auf: • Vorraum • zwei Zimmer (Wohnzimmer und Schlafzimmer) • vollausgestattete Küche • Badezimmer mit Badewanne und zeitloser Verfliesung Lage Die Liegenschaft liegt am Rande des Freihausviertels im 4. Wiener Gemeindebezirks zwischen Margaretenstraße und Rechte Wienzeile. Nahversorger, sowie zahlreiche Restaurants, Bars und Cafés befinden sich in unmittelbarer Nähe. Auch der Naschmarkt mit seinen vielfältigen kulinarischen Angeboten ist nur wenige Gehminuten entfernt. Die öffentliche Anbindung ist durch die Autobushaltestelle 59A, welche sich schräg gegenüber befindet, sowie die U4 Station "Kettenbrückengasse" bestens gegeben. Ansprechpartner Frau Doris Kurzweil || +43 699 17 55 66 16 || dk@jpi.at Wir weisen darauf hin, dass wir mit dem Abgeber in ständiger Geschäftsbeziehung stehen und schon aus diesem Grund ein wirtschaftliches Naheverhältnis vorliegt.
Beschreibung weiterlesen

Lage und Verkehrsanbindung

Naschmarkt

Energieeffizienz

HWB:
128,1 kWh/(m²*a)
HWB Klasse:
D
fGEE:
1,78
fGEE Klasse:
D

Grundriss

Doris Kurzweil

Doris Kurzweil

JP Immobilien

Anrufen
Lade...

Fotomix

IMG_5427 IMG_5424 IMG_5426 IMG_5421 IMG_5422 IMG_5423 IMG_5418 IMG_5420 IMG_5415